Hotel de vanzare la cateva minute de Podul Mogosoaia

2.353.000 €

Mânăstirea, Județul Dâmbovița

Sup. teren:
3.700 mp
Loc. parc.:
7
An constr.:
2007
  • • Comision 0%
  • • Exclusivitate
  • • Locație exactă

Descriere spațiu comercial

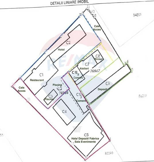
Se oferă spre vânzare un complex hotelier funcțional, ideal pentru investiții HoReCa, turism, evenimente sau proiecte medicale și sociale. Proprietatea poate fi exploatată imediat ca hotel și restaurant sau transformată pentru: camin de bătrâni, spital privat, clinică medicală, centru de recuperare sau alte proiecte similare. Hotel dispune de 25 camere cu o suprafața construită de 2.040 mp Regim de înălțime: S + Parter + 3 Etaje 25 camere confortabile pentru oaspeți, fiecare cu grup sanitar propriu Recepție și zone comune funcționale Ideal pentru cazare turistică, corporate sau proiecte medicale Restaurant Individual de – 715 mp Restaurant hotel de - 125 mp Sală generoasă, potrivită pentru orice eveniment, cu 3 grupuri sanitare. Spații auxiliare pentru bucătărie, bar sau depozitare Poate funcționa independent și aduce venituri suplimentare Trei piscine exterioare: Piscină mică de 23 mp, perfectă pentru copii sau relaxare Piscină de 115 mp, potrivită pentru adulți și activități recreative Piscină semiolimpică de 338 mp cu o adancime de peste 2 metri Suprafața totală a terenului este de 3.700 mp  Avantaje și potențial: Ansamblu complet funcțional, gata de exploatare Flexibilitate: hotel, restaurant, evenimente private, spa, clinică sau centru de recuperare Poate fi transformat ușor într-un camin de bătrâni, spital privat sau clinică medicală Potențial ridicat de venituri multiple Acces facil și poziționare strategică la cateva minute de București. Pentru mai multe detalii sau pentru programarea unei vizionări vă rog să mă contactați. La nevoie, putem oferi sprijin în alegerea creditului, cu ajutorul unui broker specializat.
Citește mai mult Citește mai puțin
7 Parcări
ID anunț: XFR41400R Copiat! 274473989 Copiat!
Actualizat în: 09 Februarie 2026

Utilități

Comision
0%

Puncte de interes

Școală
school
Centru de arte martiale
Școli aprox. 971 m
school
Scoala Generala nr.1 Buftea
Școli aprox. 1144 m
Recreere
supermarket
Lidl
Supermarket aprox. 1185 m
park
Domeniul Stirbey
Parcuri aprox. 1939 m

Detalii de contact

Re/Max Gold

Mihaela Barbieru Sales Associate

Re/Max Gold
PRO

Abonează-te la newsletter să fii primul care primește cele mai noi recomandări de proprietăți și sfaturi de la experți.

CONTACT

Creează alertă

Salvează căutarea ca să primești pe email ultimele anunțuri publicate

Spații comerciale cu 4+ camere de vânzare în Mânăstirea, Județul Dâmbovița