Apartament duplex penthouse cu 5 camere | 191mp terasa | vedere libera

840.000 € + TVA

Aviației, București

Nr. cam.:
5
Sup. utilă:
236,25 mp
Etaj:
8 / 9
An constr.:
2009 (Finalizată)
  • • Locație aproximativă

Descriere apartament

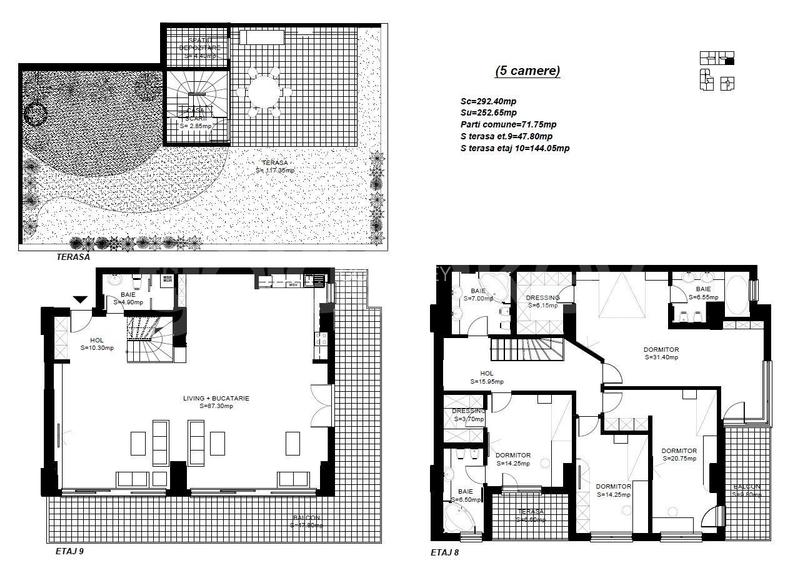
Situat in zona Aviatiei, cu o vedere panoramica asupra zonei, acest apartament penthouse duplex cu 5 camere se afla la etajele 8+9 ale unui imobil S+P+9 finalizat in 2009. Are o suprafata totala de 450mp, 236.25mp utili si 191mp terase. Etajul 9 este compus din living generos cu iesire pe terasa, bucatarie deschisa si echipata, grup sanitar si acces pe o terasa de 144mp cu gradina. La etajul 8 este un dormitor matrimonial cu baie proprie si dressing, dormitor secundar cu baie proprie si dressing, 2 dormitoare care impart 1 baie si terasa. Sunt disponibile 2 locuri de parcare in garajul subteran si boxa, toate la pretul de 50.000 euro + tva. Apartamentul este partial mobilat si este potrivit pentru rezidenta unei familii numeroase.
Citește mai mult Citește mai puțin
Confort lux Decomandat Mobilat Parțial 2 Balcoane Curte comună Aer condiționat Calorifere Centrală imobil 2 Garaje

Detalii apartament

ID anunț: X1UR102M7 Copiat! 274874162 Copiat!
Actualizat în: 09 Februarie 2026
Suprafață construită: 450 mp
Nr. bucătării: 1
Nr. băi: 4
Structură rezistență: Beton
Tip imobil: Bloc de apartamente
Regim înălțime: S+P+9E
Nr. terase: 2

Utilități

Destinație
Rezidențial
Pereți
Faianță Vopsea lavabilă
Podele
Gresie Parchet
Rulouri/Obloane
PVC
Ușă intrare
Metal
Uși interior
Lemn
Izolații termice
Exterior
Ferestre cu geam termopan
PVC
Contorizare
Apometre Contor căldură
Bucătărie
Mobilată Utilată
Electrocasnice
Aragaz Frigider Hotă Mașină de spălat rufe Mașină de spălat vase TV
Diverse
Scară interioară Telecomandă poartă garaj
Alte spații utile
WC Serviciu Terasă
Dotări imobil
Acoperiș Interfon Lift Videointerfon
Utilități
Curent Apă Canalizare CATV Gaze Telefon
Acces internet
Cablu
Servicii imobil
Pază Supraveghere video
Amenajare străzi
Iluminat stradal Mijloace de transport în comun Asfaltate

Vecinătăți:

Parcul Herastrau, Parcul Bordei, Lacul Floreasca, Statia de Metrou Aurel Vlaicu

Disponibilitate proprietate:

Imediat

Puncte de interes

Mijloace transport
metro-station
Metrorex. Stația Aurel Vlaicu (M2)(1987)
Stații metrou aprox. 495 m
metro-station
Aurel Vlaicu (M2)
Stații metrou aprox. 505 m
bus-station
Carutasilor / Pasajul Aviatiei statie 301, 112
Stații autobuz aprox. 511 m
tram-station
Maguricea
Stații tramvai aprox. 555 m
Școală
kindergarten
Grădinița Pentru Hipoacuzici NR. 65
Gradinițe aprox. 92 m
school
Scoala generala nr.12
Școli aprox. 189 m
kindergarten
Gradinita Miniterra
Gradinițe aprox. 312 m
university
Școala Superioară de Aviație Civilă - S.S.Av.C.
Universități aprox. 1983 m
Recreere
supermarket
Carrefour Market
Supermarket aprox. 284 m
park
Cimitirul Eroilor Rusi
Parcuri aprox. 299 m
sports-ground
Teren de Tenis
Terenuri sport aprox. 631 m
public-square
Piata Montreal
Piețe publice aprox. 1912 m

Proprietăți recomandate

Detalii de contact

Abonează-te la newsletter să fii primul care primește cele mai noi recomandări de proprietăți și sfaturi de la experți.

CONTACT

Creează alertă

Salvează căutarea ca să primești pe email ultimele anunțuri publicate

Penthouses cu 4+ camere de vânzare în zona Aviației, Sector 1