Spatiu depozitare sau productie 600mp - platforma industriala - zona Gara de Est

4.600 € / lună
7.67 € / mp / lună

Gara de Est, București

Sup. utilă / mp. utili:
600 mp
Tip prop.:
Centru comercial
Niv.:
1
  • • Locație aproximativă

Descriere spațiu comercial

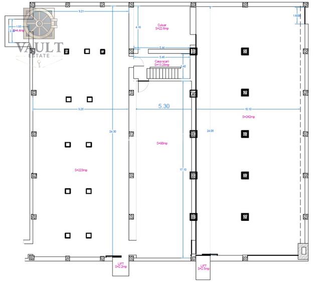
COD PROPRIETATE: P39204 Spatiu depozitare premium – Bucuresti, Sector 2 (platforma industriala) Oferim spre inchiriere spatiu de depozitare la subsol, compartimentat in 3 zone functionale, cu lifturi dedicate pentru marfa, ideal pentru logistica, distributie, stocare sau activitati conexe. Specificatii tehnice: • Inaltime pana la grinda: 2,5 m • Inaltime pana la tavan: 3,2 m Cladirea este amplasata intr-o platforma industriala moderna, care include: • depozite cu temperatura controlata si ambientala • spatii de productie • birouri • piata de gros agroalimentara Avantaje cheie: • acces rapid la principalele artere si puncte de interes din Sector 2 • infrastructura industriala completa • potrivit pentru o gama larga de activitati comerciale si logistice Aceasta proprietate reprezinta o optiune strategica pentru companiile care cauta eficienta operationala si pozitionare excelenta in Bucuresti. Nr grupuri sanitare: 1 Suprafata construita: 610 mp Nr incaperi: 3 Utilitati - Utilitati generale (Curent,Curent trifazic,Apa,Canalizare) Finisaje - Iluminat (Lampi) Dotari - Contorizare (Apometre) pret inchiriere: 4600 moneda inchiriere: EUR Disponibilitate proprietate: imediat
Citește mai mult Citește mai puțin

Detalii spațiu comercial

ID anunț: XDTA140O4 Copiat! 275055446 Copiat!
Actualizat în: 23 Februarie 2026
Suprafață utilă: 600 mp
Regim înălțime: P+1E
Structură rezistență: Beton

Utilități

Contorizare
Apometre
Mobilat
Nemobilat
Utilități
Curent Apă Canalizare Curent trifazic
Comision
standard

Vecinătăți:

Gara de Est, Bucur Obor, Pantelimon

Subspații disponibile

Chirie / u.m. / lună:
7.67 EUR/mp (total: 4600 EUR/lună), Comision: standard
Suprafață disponibilă:
600
Disponibilitate spațiu:
închiriat

Puncte de interes

Mijloace transport
bus-station
Baicului
Stații autobuz aprox. 335 m
tram-station
Cimitirul Armenesc
Stații tramvai aprox. 349 m
trolleybus-station
Statia Baicului, linia 69,85
Stații troleibuz aprox. 688 m
train-station
Gara Obor Bucuresti-EST
Stații tren aprox. 828 m
Școală
kindergarten
Praslea cel Voinic
Gradinițe aprox. 150 m
kindergarten
Gradinita nr. 201
Gradinițe aprox. 263 m
school
Scoala Nr. 46
Școli aprox. 341 m
university
Universitatea Nationala de Arta Teatrala si Cinematografica
Universități aprox. 916 m
Recreere
park
"Nichita Stanescu" Park (en)
Parcuri aprox. 128 m
supermarket
Mega Image Iancului
Supermarket aprox. 156 m
public-square
Piata Iancului
Piețe publice aprox. 602 m
sports-ground
Teren de fotbal
Terenuri sport aprox. 665 m

Proprietăți recomandate

Detalii de contact

VAULT ESTATE

Daniel Pantea

VAULT ESTATE
PRO

Abonează-te la newsletter să fii primul care primește cele mai noi recomandări de proprietăți și sfaturi de la experți.

CONTACT

Creează alertă

Salvează căutarea ca să primești pe email ultimele anunțuri publicate

Spații comerciale de închiriat în zona Gara de Est, Sector 2