|Spatiu de inchiriat Militari, Metrou Gorjului|

2.800 € / lună
8 € / mp / lună

P-ța Gorjului, București

Sup. utilă / mp. utili:
350 mp
Tip prop.:
Centru comercial
Niv.:
3
An constr.:
2000 (Există)
  • • Exclusivitate
  • • Locație exactă
  • • Vizionare prin apel video

Descriere spațiu comercial

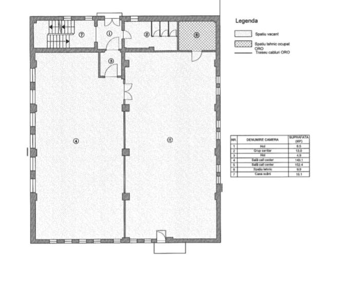
SVa prezentam spre inchiriere un spatiu comercial , situat la doar cativa pasi de Statia de Metrou Gorjului Suprafata generoasa totala700 mpu impartit in 350mpu per nivel situat în zona Militari, Spațiul beneficiază de compartimentare interioară flexibilă, putând fi adaptat pentru diverse activități birouri, depozit, showroom sau producție. Pret inchiriere 700 mp- 8E plus TVA - mp - Pret valabil pentru inchirierea totala Pret inchiriere 350 mp -10E plus TVA - mp- Pret valabil pentru inchirierea partiala ( un etaj ) Spatiul se preteaza atat pentru activitati comerciale cat si pentru activitati de tip Office ( sala fitness, sala karate, clinica medicala ,stomatologie, imagistica, It, contabilitate, call center,notariat,birou avocatura arhitectura,depozitare, productie) Înălțime: 4 m Grupuri sanitare per fiecare etaj Parcare interioară inclusă Încălzire si racire prin ventilatie tavan(ventilocovectoare) Avantaje: - Acces facil către mijloacele de transport în comun - Zonă cu vad comercial și infrastructură completă - Ideal pentru firme care doresc un spațiu amplu și bine poziționat
Citește mai mult Citește mai puțin
4 Parcări Căldură Modernizat

Detalii spațiu comercial

ID anunț: XCJA04006 Copiat! 271370946 Copiat!
Actualizat în: 10 Februarie 2026
Regim înălțime: 1S+D+P+3E
Stadiu construcție: Există

Utilități

Utilități
Alte metode electrice Curent Canalizare Apă

Certificat energetic:

Clasa energetică: A

Subspații disponibile

Se oferă spre închiriere un spațiu generos de 350 mp2 dar se poate duce daca se doreste pana la 700 mp2 situat în zona Militari, la doar câteva minute de mers pe jos de Metrou Gorjului. Spațiul beneficiază de compartimentare interioară flexibilă, putând fi adaptat pentru diverse activități – birouri, depozit, showroom sau producție. Pret inchiriere 700 mp2-9E plus TVA per mp2 Pret inchiriere 350 mp2-11E plus TVA per mp2(asta daca doriti doar jumatate din spatiu) Spatiul se preteaza pentru activitati comerciale cat si office Sala fitness, sala karate, clinica medicala( stomatologie, imagistica,) It, contabilitate, call center,notariat,birou avocatura\arhitectura,depozitare, productie Caracteristici: Suprafață: 350 mp2 dar se poate duce pana la 700 mp2 dispus pe 2 nivele(etaj 1-350mp2|etaj2-350 mp2) Zonă: Militari – Metrou Gorjului Compartimentare: flexibilă Înălțime: 4 m Grupuri sanitare proprii Parcare interioară inclusă Încălzire si racire prin ventilatie tavan(ventilocovectoare) Avantaje: Acces facil către mijloacele de transport în comun Zonă cu vad comercial și infrastructură completă Ideal pentru firme care doresc un spațiu amplu și bine poziționat Va asteptam cu mare drag!

Chirie / u.m. / lună:
8 EUR/mp (total: 2800 EUR/lună) + alte cheltuieli
Înălțime spațiu (m):
4
Suprafață disponibilă:
350
Disponibilitate spațiu:
imediat
Etaj:
Etaj 1 / 3
Posibilitate parcare:
Da

Puncte de interes

Mijloace transport
bus-station
Gorjului
Stații autobuz aprox. 26 m
metro-station
Metrorex. Statia Gorjului (M3).
Stații metrou aprox. 57 m
trolleybus-station
statia Piața Gorjului: 61, 62
Stații troleibuz aprox. 74 m
tram-station
Statia Romancierilor, linia 8,25,47
Stații tramvai aprox. 905 m
Școală
school
Școala Generală nr. 174 "Constantin Brâncuși"
Școli aprox. 355 m
school
Gradinita Blue Fairy
Școli aprox. 356 m
kindergarten
Dumbrava Minunilor
Gradinițe aprox. 538 m
university
Colegiu Penticostal
Universități aprox. 1177 m
Recreere
restaurant
Shaorma
Restaurant aprox. 24 m
supermarket
Carrefour Market - Piata Gorjului
Supermarket aprox. 123 m
park
Loc de joaca
Parcuri aprox. 174 m
sports-ground
Baza Sportiva Givova
Terenuri sport aprox. 684 m

Proprietăți recomandate

Detalii de contact

VUVI HOME

Pascu Robert Marius Director General

3.83(4 review-uri)

VUVI HOME
PRO

Abonează-te la newsletter să fii primul care primește cele mai noi recomandări de proprietăți și sfaturi de la experți.

CONTACT

Creează alertă

Salvează căutarea ca să primești pe email ultimele anunțuri publicate

Spații comerciale de închiriat în zona P-ța Gorjului, Sector 6