4

Spațiu comercial de 350 mp de închiriat – Locație premium - Piata Unirii

3.199 € + TVA / lună
9.14 € + TVA / mp / lună

Ultracentral, Timișoara

Sup. utilă / mp. utili:
350 mp
Tip prop.:
Casă/Vilă
Niv.:
1
  • • Comision 0%
  • • Locație exactă

Descriere spațiu comercial

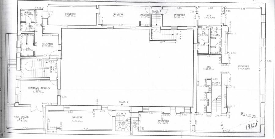
IM Imobiliare vă propune spre închiriere un spațiu comercial generos, cu o suprafață totală de 350 mp, situat într-una dintre cele mai prestigioase și circulate zone ale orașului – în imediata vecinătate a Domului Catolic din Piața Unirii. Amplasat la demisolul unui imobil istoric, spațiul beneficiază de vizibilitate excelentă, acces facil și un cadru arhitectural deosebit. Este ideal pentru activități comerciale variate: showroom-uri, galerii de artă, centre de wellness, clinici, restaurante, cafenele, magazine de specialitate sau spații de co-working. Caracteristici cheie: Suprafață totală: 350 mp Configurat în două SAD-uri (unități funcționale separate) Compartimentare eficientă: 7 încăperi + spații anexe (birouri, depozite, grupuri sanitare etc.) 4 puncte de acces, care permit flexibilitate în organizarea activității Curte interioară spațioasă – ideală pentru amenajare terasă, zonă de relaxare sau spațiu evenimente Datorită poziționării ultracentrale și a caracterului versatil, acest spațiu reprezintă o oportunitate rară pentru dezvoltarea unei afaceri într-un cadru cu adevărat remarcabil. Disponibil imediat. Pentru detalii și programări vizionări, contactați-ne!
Citește mai mult Citește mai puțin
Aer condiționat Căldură

Detalii spațiu comercial

ID anunț: X7PS0405U Copiat! 268133697 Copiat!
Actualizat în: 13 August 2025
Regim înălțime: D+P+1E+M

Utilități

Utilități
Apă Canalizare Curent Gaze

Subspații disponibile

Chirie / u.m. / lună:
9.14 EUR/mp (total: 3199 EUR/lună) + TVA, Comision 0% cumpărător
Suprafață disponibilă:
350
Disponibilitate spațiu:
imediat
Etaj:
Demisol / 1

Puncte de interes

Mijloace transport
trolleybus-station
Statie Oituz T11, T17
Stații troleibuz aprox. 124 m
bus-station
Oituz
Stații autobuz aprox. 126 m
tram-station
Hotel Continental
Stații tramvai aprox. 257 m
train-station
Gara de Est
Stații tren aprox. 1423 m
Școală
kindergarten
Gradinita Program Prelungit Nr. 6
Gradinițe aprox. 68 m
school
Nikolaus Lenau clasele I-IV
Școli aprox. 171 m
university
Facultatea de Arte Plastice
Universități aprox. 201 m
kindergarten
Gradinita Program Prelungit Nr. 33
Gradinițe aprox. 215 m
Recreere
park
Parc UPC
Parcuri aprox. 77 m
public-square
Piata Tepes Voda
Piețe publice aprox. 85 m
supermarket
Bega Shopping Center
Supermarket aprox. 290 m
mall
Kappa Centrul Comercial
Mall aprox. 1154 m

Proprietăți similare

Spațiu comercial, de 43 mp, în Ultracentral
3.501 € / lună
Timișoara, Ultracentral
43 mp utili
Spațiu stradal
1936
Spațiu industrial, 550 mp în Nord
3.000 € / lună
Timișoara, Nord
746,71 mp utili
Logistică
1975
Spațiu industrial, 502 mp în Șagului
2.950 € / lună
Timișoara, Șagului
502 mp utili
Logistică

Detalii de contact

IM Imobiliare

Dan Popescu consultant imobiliar

IM Imobiliare
PRO

Abonează-te la newsletter să fii primul care primește cele mai noi recomandări de proprietăți și sfaturi de la experți.

CONTACT

Creează alertă

Salvează căutarea ca să primești pe email ultimele anunțuri publicate

Spații comerciale de închiriat în zona Ultracentral, Timișoara