SOLEIA Valea Lupului, trafic intens, spatiu comercial 477 m.p. de inchiriat

7.155 € + TVA / lună
15 € + TVA / mp / lună

Valea Lupului, Județul Iași

Sup. utilă / mp. utili:
477 mp
Tip prop.:
Bloc de apartamente
Niv.:
4
An constr.:
2024 (Există)
  • • Locație exactă

Descriere spațiu comercial

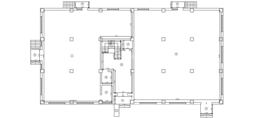
Va propunem spre inchiriere un spatiu comercial, pozitionat excelent in Valea Lupului, pe strada Nufarului, complex SOLEIA, statie de autobuz fix in fata Imobilul are o suprafata utila de 477 mp, doar pe plan parter, dispune de centrala termica proprie, multiple cai de acces ( personal, clienti si aprovizionare marfa ), suprafete open space ce pot fi reconfigurate, grupuri sanitare, aprox 25 locuri de parcare LA PRIMA INCHIRIERE ! ! SE POATE COMPARTIMENTA doar in 2 spatii mai mici, unul de 211mp, celalalt de 267 mp Proprietatea se preteaza pt diverse activitati comeciale, in special pt supermarket, laborator analize medicale, cabinete medici, etc. Unele modificari/ amenajari se pot discuta Se inchiriaza doar pe termen lung. Pret negociabil in functie de perioada contractuala, investitii, domeniul de activitate. Se percepe garantie si comision agentie 50% din contravaloarea chiriei pe 1 luna. PRET : 18 EURO/ MP + TVA Pentru detalii si vizionari ne puteti contacta la nr Catalin Nastase
Citește mai mult Citește mai puțin
25 Parcări Căldură Modernizat

Detalii spațiu comercial

ID anunț: X9PD0401H Copiat! 269102528 Copiat!
Actualizat în: 26 Noiembrie 2025
Regim înălțime: P+4E
Stadiu construcție: Există

Utilități

Utilități
Gaze Curent Canalizare Apă

Subspații disponibile

Chirie / u.m. / lună:
15 EUR/mp (total: 7155 EUR/lună) + TVA
Suprafață disponibilă:
477
Disponibilitate spațiu:
imediat
Etaj:
Parter / 4

Puncte de interes

Mijloace transport
bus-station
Statia "Troita", linia 20
Stații autobuz aprox. 229 m
bus-station
Statia "Daewoo", linia 20
Stații autobuz aprox. 436 m
bus-station
Statia "Antibiotice", linia 20
Stații autobuz aprox. 1000 m
bus-station
Rond Politie
Stații autobuz aprox. 1014 m
Școală
school
Scoala
Școli aprox. 482 m
school
Scoala Noua
Școli aprox. 539 m
Recreere
restaurant
Stef
Restaurant aprox. 241 m
sports-ground
Teren sportiv
Terenuri sport aprox. 297 m
supermarket
Praktiker Era
Supermarket aprox. 1049 m
supermarket
Carrefour Era
Supermarket aprox. 1350 m

Proprietăți recomandate

Detalii de contact

Abonează-te la newsletter să fii primul care primește cele mai noi recomandări de proprietăți și sfaturi de la experți.

CONTACT

Creează alertă

Salvează căutarea ca să primești pe email ultimele anunțuri publicate

Spații comerciale de închiriat în Valea Lupului, Județul Iași