Vrei să-ți duci afacerea într-un loc cu expunere maximă, trafic intens și potențial uriaș? Atunci acest spațiu comercial de 93 mp (suprafata totala) din zona Tractorul – Coresi este exact ce cauți!
Poziționat strategic, într-o zonă în plină dezvoltare, la doar câțiva pași de mall-ul Coresi, cu acces facil pietonal și auto, acest spațiu oferă toate avantajele pentru un business de succes.
Ideal pentru: showroom, salon, cabinet medical, birou, magazin, coffee shop sau orice alt concept care are nevoie de vizibilitate și un flux constant de clienți.
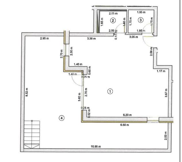
Compartimentare:
-Spatiu comercial: 39,4 mp
-Grup sanitar: 3,4 mp
-Depozitare: 3,4 mp
-Suprafata utila: 46 mp
-Curte engleza: 46,5 mp
-Suprafata totala: 93 mp
Alte beneficii:
-Lumină naturală din plin
-Finisaje moderne
-Locuri de parcare în apropiere
Nu rata oportunitatea de a activa într-unul dintre cele mai căutate cartiere din Brașov!
Sediul central - Timișoara
Bulevardul Victor Babeș nr. 2, 300230, Timișoara, România
Tel: +40.374.40.44.98 / Fax: +40.256.401.179
Email: suport@imobiliare.ro
Luni - Vineri 08:00 - 20:00
Punct de lucru - București: Iride Business Park, Bld. Dimitrie
Pompeiu 9-9A, Clădirea B2B,
020335, Sector 2, București, România
CONTACT
Sediul central - Timișoara
Bulevardul Victor Babeș nr. 2, 300230, Timișoara, România
Tel: +40.374.40.44.98 / Fax: +40.256.401.179
Email: suport@imobiliare.ro
Luni - Vineri 08:00 - 20:00
Punct de lucru - București: Iride Business Park, Bld. Dimitrie
Pompeiu 9-9A, Clădirea B2B,
020335, Sector 2, București, România
Sună acum și cere detalii sau programează o vizionare.
Cere detalii prin email
*
*
*
*
Stații autobuz
Stații tren
Școli
Universități
Gradinițe
Supermarket
Parcări
Terenuri sport
Parcuri
Piețe publice
Spital
Farmacie
Cafenea
Restaurant
Bar
Pub
Bancă
13 Decembrie
aprox.
442 m
Cineplex Coresi
aprox.
557 m
Liceul Tractorul
aprox.
685 m
Statia "Liceul tractorul", linia 2,7,8,9,30
aprox.
724 m
Liceul Tractorul
aprox.
725 m
Coresi
aprox.
729 m
Tractorul
aprox.
808 m
Statia "Tractorul", linia 7,8,30,2,9
aprox.
815 m
Statia "Tractor Proiect", linia 2,7,8,9,30
aprox.
836 m
Tractor Proiect
aprox.
836 m
Gara Brasov
aprox.
857 m
Statia "Spital Tractorul", linia 29,9,36
aprox.
881 m
Statia "Biserica Tractorul", linia 2,36,30,8 si 29
aprox.
888 m
Spital Tractorul
aprox.
889 m
Biserica Tractorul
aprox.
919 m
Statia CFR Brasov
aprox.
916 m
Gara Brasov Călători CFR
aprox.
941 m
Colegiul Tehnic "Mircea Cristea"
aprox.
617 m
Colegiul Tehnic Mircea Cristea
aprox.
708 m
Liceul Teoretic "Nicolae Titulescu"
aprox.
800 m
Scoala generala nr.13
aprox.
1158 m
Scoala numarul 17
aprox.
1177 m
Gradinita 28
aprox.
1231 m
Sala Sport Scoala Generala Nr. 19
aprox.
1267 m
Școala Generală nr. 27
aprox.
1527 m
Scoala Generala Nr. 27
aprox.
1529 m
Scoala Generala nr 30
aprox.
1599 m
Colegiul Tehnic "Sfintii Voievozi Romani"
aprox.
1612 m
Armoniei , 8 - 10
aprox.
1687 m
Scoala Generala Nr. 11
aprox.
1722 m
Liceul Dr. Ioan Mesota
aprox.
1800 m
Colegiul National "Dr Ioan Mesota"
aprox.
1803 m
Facultatea de Constructii
aprox.
644 m
Facultatea de Constructii - Universitatea Transilvania - Corpul J
aprox.
655 m
Gradinita
aprox.
772 m
Gradinita 34
aprox.
779 m
Gradinita cu program normal nr. 32 (fosta nr. 19)
aprox.
952 m
Gradinita cu program normal Nr.32
aprox.
952 m
Gradinita cu program normal nr. 17 SG (fosta nr. 14)
aprox.
1089 m
Gradinita cu program prelungit nr. 33 (fosta nr. 45)
aprox.
1094 m
Gradinita 28
aprox.
1231 m
Gradinita cu program prelungit nr. 11A (fosta nr. 65)
aprox.
1348 m
Gradinita cu program prelungit nr. 31 (fosta nr. 30)
aprox.
1456 m
Gradinita cu program prelungit nr. 10 (fosta nr. 49)
aprox.
1658 m
Gradinita cu program normal nr. 35 (fosta nr. 69)
aprox.
1666 m
Gradinita 15
aprox.
1667 m
Gradinita Branduselor
aprox.
1686 m
Gradinita cu program saptamanal nr. 9 (fosta nr. 34)
aprox.
1715 m
Gradinita cu program normal nr. 11 SG (fosta nr. 48)
aprox.
1719 m
Auchan
aprox.
465 m
Coresi Shopping Resort
aprox.
550 m
Lidl
aprox.
782 m
Lidl
aprox.
1003 m
Unirea Shopping Center
aprox.
1083 m
Rapid Garii
aprox.
1101 m
Profi
aprox.
1158 m
Carrefour
aprox.
1331 m
Carrefour Express
aprox.
1641 m
Profi
aprox.
1654 m
Penny Market
aprox.
1664 m
Carrefour Market
aprox.
1733 m
Rapid Dacia
aprox.
1753 m
Profi
aprox.
1868 m
Carrefour Express
aprox.
1869 m
Parcare
aprox.
491 m
Parcare
aprox.
639 m
Parcare
aprox.
682 m
Parcare
aprox.
684 m
Parcare
aprox.
785 m
Parcare
aprox.
798 m
Parcare pentru clienti
aprox.
841 m
Parcare
aprox.
955 m
Parcare privata
aprox.
968 m
Parcare
aprox.
974 m
Parcare
aprox.
978 m
Parcare
aprox.
984 m
Parcare
aprox.
989 m
Parcare cu plata
aprox.
992 m
Parcare
aprox.
998 m
Teren sportiv
aprox.
627 m
Loc de Joaca
aprox.
703 m
Teren sportiv
aprox.
842 m
Loc de Joaca
aprox.
867 m
Teren minifotbal
aprox.
869 m
Teren sportiv
aprox.
966 m
Teren sportiv
aprox.
968 m
Teren sportiv
aprox.
969 m
Teren sportiv
aprox.
973 m
Teren sportiv
aprox.
974 m
Teren sportiv
aprox.
984 m
Teren sportiv
aprox.
985 m
Teren sportiv
aprox.
987 m
Teren sportiv
aprox.
989 m
Teren sportiv
aprox.
992 m
Parcul Tractorul
aprox.
730 m
Parc
aprox.
740 m
Parcul Tractorul
aprox.
772 m
Zonă verde
aprox.
907 m
Parcul CFR
aprox.
1025 m
Parc
aprox.
1118 m
Parc
aprox.
1131 m
Parc
aprox.
1181 m
Parc
aprox.
1283 m
Parc
aprox.
1308 m
Loc de joaca pentru copii
aprox.
1342 m
Loc de Joaca
aprox.
1448 m
Parc
aprox.
1449 m
Parc
aprox.
1487 m
Backyard (en)
aprox.
1545 m
Square & Monument (en)
aprox.
1037 m
Clinica MedLife Turnului
aprox.
663 m
Spitalul Medlife Brasov
aprox.
670 m
Clinica Medlife
aprox.
804 m
Spitalul Tractorul
aprox.
959 m
Musetel
aprox.
1113 m
Malva
aprox.
1718 m
Farmacie
aprox.
1976 m
Farmacie
aprox.
1986 m
Starbucks
aprox.
682 m
Danik Kaffee
aprox.
1033 m
La Placinte
aprox.
986 m
Kronwell
aprox.
1004 m
Unirea
aprox.
1073 m
Restaurant Fox
aprox.
1320 m
Pizza Iolo
aprox.
1431 m
Pizza Hot
aprox.
1498 m
Restaurant Rotmans
aprox.
1532 m
Restaurant Trattoria
aprox.
1624 m
Pizza Nela Bruni
aprox.
1656 m
Restaurant ''Casa Oatului''
aprox.
1691 m
SaladBox
aprox.
1701 m
Romantic
aprox.
1706 m
Papaia
aprox.
1786 m
Hotel Oasis
aprox.
1813 m
Hotel Brasov
aprox.
1817 m
Karma Lounge
aprox.
1105 m
Pub Vlahuta
aprox.
1765 m
Melody
aprox.
1189 m
Temple Pub & Grill
aprox.
1901 m
Social Pub
aprox.
1961 m
CEC Bank
aprox.
1088 m
BCR
aprox.
1149 m
Banca BCR
aprox.
1149 m
ING Office Brasov Victoriei
aprox.
1264 m
Bancpost
aprox.
1274 m
BRD
aprox.
1354 m
Volksbank
aprox.
1416 m
BCR
aprox.
1436 m
Exim
aprox.
1470 m
Banca ING
aprox.
1568 m
CEC Bank
aprox.
1609 m
CEC Bank building (en)
aprox.
1618 m
Raiffeisen Bank
aprox.
1737 m
BRD Sucursala Brasov
aprox.
1738 m
BRD
aprox.
1743 m
Cartierul Tractorul este bine deservit la capitolul transport public, fiind străbătut de mai multe linii de autobuz cu care locuitorii pot ajunge foarte ușor în alte zone ale orașului. Concret, este vorba de autobuzul 2, care circulă pe ruta Livada Poștei - Rulmentul, autobuzul 9, care leagă Rulmentul de Stadionul Municipal, autobuzul 7, care pleacă tot din Rulmentul și are capăt de linie la Roman, autobuzul 8, care circulă în direcția Rulmentul - Saturn, autobuzul 410, care leagă Subcetate de Rulmentul, autobuzul 411, care circulă pe ruta Rulmentul - Sânpetru Residence, autobuzul 412, care pornește din Rulmentul și are capăt de linie la Morii Sânpetru, autobuzul 36, care leagă Livada Poștei de Independenței, autobuzul 15, circulă pe ruta Avantgarden - Triaj, autobuzul 29, care pleacă din Bartolomeu Nord și are capăt de linie la Gara Brașov, și autobuzul 53, care circulă în direcția Panselelor - Facultatea de Construcții. De menționat la acest capitol ar mai fi faptul că în cartierul Tractorul se află și Gara Brașov, iar în apropiere este amplasată și autogara.
Cartierul Tractorul stă bine și din punct de vedere educațional. Astfel, dacă iei decizia de a te muta în această zonă, poți să-ți înscrii copilul la Școala Gimnazială Nr. 30, situată pe str. 1 Decembrie 1918, sau la Școala Gimnazială Nr. 13, aflată pe str. Olteț. Tot pe aceeași stradă se află și Grădinița Nr. 33, la care poți apela dacă ai copii de vârstă mică. De asemenea, găsești în această zonă și două colegii. Este vorba de Colegiul "Nicolae Titulescu", aflat pe str. 13 Decembrie, și de Colegiul Tehnic "Mircea Cristea", situat pe str. Turnului. Tot între granițele acestui cartier își desfășoară activitatea și o școală internațională privată, pe str. 13 Decembrie, precum și Universitatea "Spiru Haret", care este tot una particulară, aflată pe str. Turnului.
Ai o mulțime de alternative pentru a face cumpărături în cartierul Tractorul. Între granițele acestei zone se află Coresi Shopping Resort, cel mai mare mall din Transilvania, în care găsești o varietate de magazine, localuri și un restaurant. În cadrul acestui centru comercial funcționează și un supermarket Auchan. Dacă vrei să cumperi direct de la producători locali, în cartier funcționează și Piața Tractorul, pe str. Olteț. Totodată, mai găsești un supermarket Penny, pe str. Aluminiului, două magazine MegaImage, pe str. Olteț și pe str. 13 Decembrie, precum și un supermarket Lidl, pe str. Turnului. De asemenea, foarte aproape de Tractorul, în cartierul vecin Centrul Nou, se află un alt centru comercial important, Unirea Shopping Center Brașov, cu magazine fashion, restaurante, supermarket și sală de fitness.
Având în vedere că Tractorul este unul dintre cele mai populate cartiere din orașul Brașov, găsirea unui loc de parcare de către șoferi nu se poate realiza cu ușurință. Zona este în plină dezvoltare, așa că Primăria Brașov a început să amenajeze noi locuri de parcare.
Cartierul Tractorul nu duce lipsă nici de modalități de recreere. De menționat la acest capitol ar fi faptul că aici găsești un parc sportiv, fostul parc Tractorul, care se întinde pe o suprafață de peste 40 de hectare. Este ideal pentru persoanele care doresc să se plimbe sau să citească în mijlocul naturii. În interiorul acestui parc se află și Patinoarul Brașov, sunt amenajate piste pentru role, terenuri de fotbal și baschet și este montată aparatură pentru fitness. De asemenea, în acest parc poate fi admirată o frumoasă fântână arteziană. Totodată, în acest cartier găsești și câteva locuri de joacă pentru copii, iar pentru plimbări relaxante ai și alternativa malului râului Timișul Sec. În Tractorul sunt deschise și șase biserici.
Cartierul Tractorul este bine deservit și din punct de vedere medical. Aici funcționează un pavilion al Spitalului Clinic Județean de Urgență Brașov, pe str. Olteț. Totodată, în zonă își desfășoară activitatea mai multe cabinete și clinici medicale private. De menționat ar fi un centru de radioterapie și o clinică medicală, ambele pe str. Turnului. De asemenea, mai găsești două cabinete oftalmologice pe str. 13 Decembrie, un laborator medical pe str. Olteț și un medic de familie pe str. General Mociulschi. Mai mult, o clinică de ortopedie se află pe str. 1 Decembrie 1918 și un alt medic de familie găsești pe str. Bronzului.
Având în vedere că în cartierul Tractorul este deschis cel mai mare mall din Transilvania, aici găsești o mulțime de alternative în cazul în care dorești să iei masa în oraș. Mai precis, în cadrul Coresi Shopping Resort este amenajată o zonă de food court, cu numeroase restaurante, pizzerii și fast food-uri. Totodată, între granițele acestui cartier se află mai multe restaurante, printre care și unul cu specific italian, pe str. Ioan Popasu, precum și un fast food McDonalds, pe str. Turnului. Dacă ți-e poftă de un preparat dulce, pe str. Alexandru Ciurcu găsești și o cofetărie.
Datorită prezenței centrului comercial Coresi Shopping Resort în cartierul Tractorul, locuitorii beneficiază de mai multe oferte din punct de vedere bancar. Mai precis, în acest mall se află surcursale ale băncilor ING, Banca Transilvania și BCR, precum și un bancomat Garanti Bank. De asemenea, mai găsești în zona Tractorul un bancomat al Băncii Transilvania, pe str. Turnului și altul Raiffeisen Bank, pe str. 13 Decembrie, precum și patru sucursale bancare: una CEC Bank, pe str. Panait Cerna, ING, UniCredit Bank și BRD, pe str. Olteț, precum și Raiffeisen Bank și Banca Transilvania, pe str. 1 Decembrie 1918.
Înainte să pleci...
Ești sigur că ai văzut și aceste proprietăți?
116.000 €
Brașov, Tractorul
39 mp utili
Bloc de apartamente
110.000 €
Brașov, Tractorul
46 mp utili
Bloc de apartamente
9E
315.000 €
Brașov, Tractorul
62 mp utili
Bloc de apartamente
2017
129.900 €
Brașov, Central
82 mp utili
Casă/Vilă
1900
130.000 €
Brașov, Tractorul
47 mp utili
Casă/Vilă
160.000 €
Brașov, Județean
98,43 mp utili
Bloc de apartamente
4E
Creează alertă
Salvează căutarea ca să primești pe email ultimele anunțuri publicate
Spații comerciale de vânzare în zona Tractorul, Brașov
Cere detalii prin email
*
*
*
*
Detaliile tale de contact vor fi partajate cu Brahouse