Spatiu comercial plus terasa, Borhanci!
Va propunem spre vanzare un spatiu comercial situat intr-un ansamblu exclusivist, situat in cartierul Borhanci. Un spatiu pretabil pentru cabinete, saloane, birouri etc., activitati care nu necesita neaparat o vizibilitate stradala.
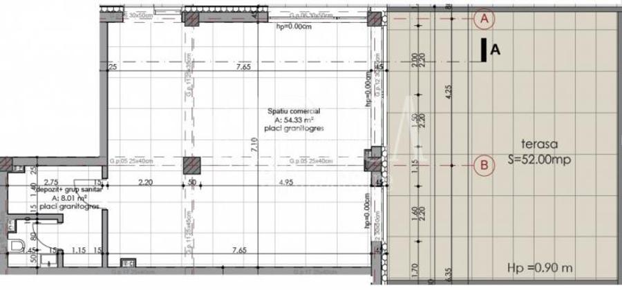
Spatiul propus se desfasoara pe o suprafata utila de 62.34 mp la care se adauga o terasa generoasa de 52 mp, avand urmatoarea dispunere:
- 1 open-space, configurabil dupa preferinte;
- 1 spatiu pentru depozitare;
- 1 grup sanitar.
Proprietatea se vinde la stadiul de semifinisat.
Se vinde impreuna cu loc de parcare, la pretul de 15000 euro + TVA.
Vanzarea se face de pe persoana juridica, astfel se aplica TVA conform legislatiei in vigoare.
Pentru a programa o vizionare si pentru o consultanta imobiliara de calitate, va stam cu drag la dispozitie,
Echipa Napoca Imobiliare!
ID oferta: 152181
Nr terase: 1
Nr grupuri sanitare: 1
Suprafata terase: 52 mp
Nr garaje: 1
Nr incaperi: 2
Utilitati - Sistem incalzire (Centrala proprie); Acces internet (Cablu,Fibra optica,Wireless); Utilitati generale (Curent,Curent trifazic,Apa,Canalizare,Gaz,CATV,Telefon)
Finisaje - Ferestre cu geam termopan (PVC)
pretvanzare: 185000
monedavanzare: EUR
monedavanzaremp:
Disponibilitate proprietate: imediat
Sediul central - Timișoara
Bulevardul Victor Babeș nr. 2, 300230, Timișoara, România
Tel: +40.374.40.44.98 / Fax: +40.256.401.179
Email: suport@imobiliare.ro
Luni - Vineri 08:00 - 20:00
Punct de lucru - București: Iride Business Park, Bld. Dimitrie
Pompeiu 9-9A, Clădirea B2B,
020335, Sector 2, București, România
CONTACT
Sediul central - Timișoara
Bulevardul Victor Babeș nr. 2, 300230, Timișoara, România
Tel: +40.374.40.44.98 / Fax: +40.256.401.179
Email: suport@imobiliare.ro
Luni - Vineri 08:00 - 20:00
Punct de lucru - București: Iride Business Park, Bld. Dimitrie
Pompeiu 9-9A, Clădirea B2B,
020335, Sector 2, București, România
Sună acum și cere detalii sau programează o vizionare.
Cere detalii prin email
*
*
*
*
Stații autobuz
Universități
Școli
Gradinițe
Supermarket
Parcări
Parcuri
Terenuri sport
Farmacie
Spital
Restaurant
Bar
Bancă
Voievodul Gelu Est
aprox.
240 m
Voievodul Gelu Vest
aprox.
278 m
Violetelor
aprox.
436 m
Theodor Pallady
aprox.
436 m
Voievodul Menumorut Est
aprox.
799 m
Voievodul Menumorut Vest
aprox.
802 m
Borhanciului
aprox.
940 m
Antim Ivireanul
aprox.
952 m
Biserica Borhanci Vest
aprox.
1252 m
Biserica Borhanci Est
aprox.
1254 m
Borhanci Est
aprox.
1653 m
Borhanci Vest
aprox.
1723 m
Baisoara
aprox.
1743 m
Statia Baisoara, liniile 33, 34, 48
aprox.
1761 m
Stație Alverna, liniile 32, 32B (ultima stație)
aprox.
1836 m
Casa Agronomului (en)
aprox.
1734 m
Happy Kids Internaional school
aprox.
1763 m
Scoala Internationala Cluj - Transilvania College
aprox.
1771 m
Scoala Lucian Blaga
aprox.
1862 m
Liceul Teoretic "Lucian Blaga"
aprox.
1889 m
Grăd.Dumbrăvioara
aprox.
1798 m
Gradinita Poenita
aprox.
1995 m
Profi
aprox.
1946 m
puiul de gaesti
aprox.
1999 m
Parcare
aprox.
1509 m
Parcare
aprox.
1677 m
Parcare
aprox.
1697 m
Parcare
aprox.
1757 m
Parcare
aprox.
1777 m
Parcare
aprox.
1790 m
Parcare
aprox.
1825 m
Parcare
aprox.
1828 m
Parcare
aprox.
1863 m
Parcare
aprox.
1887 m
Parcare privata
aprox.
1905 m
Parcare
aprox.
1914 m
Parcare
aprox.
1915 m
Parcare
aprox.
1918 m
parcare
aprox.
1919 m
Parc
aprox.
1428 m
Parcul Detunata
aprox.
1636 m
Parc
aprox.
1654 m
Parc
aprox.
1762 m
Parc
aprox.
1768 m
Parc
aprox.
1816 m
Loc de joaca pentru copii
aprox.
1881 m
Parc
aprox.
1904 m
Parc
aprox.
1955 m
Parc
aprox.
1957 m
Parc
aprox.
1961 m
Teren sportiv
aprox.
1478 m
Teren sportiv
aprox.
1491 m
Teren sportiv
aprox.
1511 m
Teren sportiv
aprox.
1533 m
Teren sportiv
aprox.
1583 m
Teren sportiv
aprox.
1591 m
Teren sportiv
aprox.
1609 m
Teren sportiv
aprox.
1638 m
Teren sportiv
aprox.
1645 m
Teren sportiv
aprox.
1652 m
Teren sportiv
aprox.
1669 m
Teren sportiv
aprox.
1677 m
Teren sportiv
aprox.
1680 m
Teren sportiv
aprox.
1718 m
Teren sportiv
aprox.
1859 m
Remedia Beauty
aprox.
1589 m
Farmacia Catena
aprox.
1950 m
Farmacia Quercia
aprox.
1990 m
Dispensar Gheorghieni
aprox.
1947 m
Alimentatie publica
aprox.
1952 m
Infinity Games
aprox.
1963 m
BRD
aprox.
2000 m
Principala arteră de circulație din cartier este Strada Borhanciului, care străbate întreaga sa suprafață, de la nord-vest (la granița cu zona Gheorgheni), până la sud-est (la ieșirea din oraș). De menționat este și Strada Romul Ladea, care face, și ea, legătura cu Gheorgheniul. Fiind încă în dezvoltare, acest cartier este destul de deficitar la capitolul mijloace de transport în comun. De menționat în această privință este linia autobuzului 20, care face legătura cu Centrul (Piața Ștefan cel Mare), dar și linia M13, care ajunge atât în Centru, cât și în satul Gheorghieni.
Acest cartier încă tânăr al Clujului este, în mod mai mult sau mai puțin previzibil, destul de deficitar la capitolul educație. În ceea ce privește ciclul preșcolar, o grădiniță care există totuși în cartier este "Magic Land One" "“ amplasată pe Strada Antonina de Gerando, nr. 19, această unitate particulară de învățământ funcționează atât cu program normal, cât și cu program prelungit. Dacă vei decide să te muți în Borhanci, probabil că, în materie de școli și licee, va trebui să te bazezi pe oportunitățile oferite de cartierul învecinat Gheorgheni (Sporul, Becașiul și Bună Ziua fiind ele însele destul de deficitare la acest capitol). Printre unitățile de învățământ cele mai apropiate se numără, astfel, Școala Gimnazială "Constantin Brâncuși", dar și Liceul Teoretic "Lucian Blaga".
Date fiind localizarea sa periferică și stadiul încă incipient de dezvoltare, nu este de mirare că în Borhanci nu se găsește, deocamdată, niciun centru comercial de dimensiuni mari (fie mall, fie hipermarket). Pentru cumpărăturile de zi cu zi, locuitorii cartierului au, însă, la dispoziție, câteva magazine de dimensiuni mai mici, inclusiv un Profi City (pe Strada Borhanciului, nr. 76G). Ca și în alte privințe, această zonă a Clujului are, însă, de câștigat de pe urma vecinătății cu Gheorgheni, unde se găsește popularul Iulius Mall. Pe lângă magazinele de îmbrăcăminte, încălțăminte, electrocasnice etc. de aici, centrul comercial adăpostește și un hipermarket din rețeaua Auchan, perfect pentru cumpărăturile de weekend (sau nu numai).
Pentru majoritatea celor care locuiesc în Borhanci, mașina personală reprezintă, probabil, cel mai important mijloc de locomoție. Găsirea unui loc de parcare nu ar trebui să reprezinte o problemă, însă este recomandat ca un cumpărător de locuință nouă să se intereseze la dezvoltator cu privire la posibilitatea achiziției unui spațiu adiacent ansamblului din care aceasta face parte.
Deși poate fi considerat, datorită terenurilor libere, unul dintre cele mai "verzi" cartiere ale Clujului, Borhanciul nu beneficiază de niciun parc amenajat pentru locuitorii săi "“ deși părinții pot spera să găsească în zonă un loc de joacă pentru cei mici. Lipsa parcurilor este compensată, însă, parțial, de apropierea pădurii din nordul satului Gheorghieni, sub granița sudică a cartierului. La capitolul facilități sportive, Borhanciul este ceva mai "bogat": iubitorii de fotbal, spre exemplu, au la dispoziție un teren cu gazon sintetic, aproape de granița cu zona Gheorgheni. În plus, pe Strada Borhanci (nr. 76F), se află centrul de agrement TCI Social Club, ce se întinde pe o suprafață de 6.000 de metri pătrați și dispune de multiple facilități.
La fel ca și în alte domenii, Borhanciul este deficitar și la capitolul servicii medicale, indiferent că e vorba de instituții medicale de stat sau particulare. Un avantaj pentru proprietarii de animale este că aceștia pot spera, totuși, să găsească un cabinet veterinar. O instituție medicală amplasată chiar la granița cu zona Gheorgheni este Centrul de Recuperare Novoengrama, specializat în fizioterapie și kinetoterapie. Pe lângă cabinetele medicale particulare disponibile în Gheorgheni, de menționat este că la marginea vestică a acestui cartier învecinat, aproape de granița cu Centrul, se găsește Spitalul Militar de Urgență "Doctor Constantin Papilian".
Fiind un cartier aflat încă în dezvoltare, Borhanciul nu oferă foarte multe oportunități în materie de gastronomie. Cei care locuiesc aici se pot baza, însă, pe oportunitățile oferite de zona învecinată Gheorgheni. De menționat aici ar, spre exemplu, restaurantele "International Ballroom" (de pe Strada Băișoara, nr. 2A), "Rebreanu 3" (de pe Strada Liviu Rebreanu, nr. 3), dar și "Uzina de Mici" (de pe Strada Crizantemelor, nr. 24).
Borhanciul este deficitar și la capitolul bănci și ATM-uri, astfel că locuitorii săi pot miza pe oportunitățile disponibile în Gheorgheni. Astfel, aici poate fi găsit un sediu Banca Transilvania (pe Strada Nicolae Titulescu, nr. 163), dar și două sucursale BCR "“ una pe Strada Nicolae Titulescu, nr. 163, iar cealaltă, pe Bulevardul Nicolae Titulescu, nr. 4 (aproape de granița cu zona Andrei Mureșanu). Consultă harta și află unde sunt localizate și bănci sau ATM-uri în zona Borhanci:
Înainte să pleci...
Ești sigur că ai văzut și aceste proprietăți?
200.000 €
Cluj-Napoca, Borhanci
86 mp utili
Clădire de birouri
2018
185.000 €
Cluj-Napoca, Borhanci
62 mp utili
Bloc de apartamente
3E
219.000 €
Cluj-Napoca, Borhanci
90 mp utili
Bloc de apartamente
4E
270.000 €
Cluj-Napoca, Bună Ziua
96 mp utili
Bloc de apartamente
3E
229.000 €
Cluj-Napoca, Gheorgheni
90 mp utili
Bloc de apartamente
3E
231.000 €
Cluj-Napoca, Dâmbul Rotund
89 mp utili
Bloc de apartamente
6E
Creează alertă
Salvează căutarea ca să primești pe email ultimele anunțuri publicate
Spații comerciale de vânzare în zona Borhanci, Cluj-Napoca
Cere detalii prin email
*
*
*
*
Detaliile tale de contact vor fi partajate cu Napoca Imobiliare