Bijuterie istorica transformata in lux modern: Proprietate unica in Sanpetru

2.350.000 €

Sânpetru, Județul Brașov

Sup. utilă / mp. utili:
1.258 mp
Tip prop.:
Centru comercial
Niv.:
1
  • • Locație aproximativă

Descriere spațiu comercial

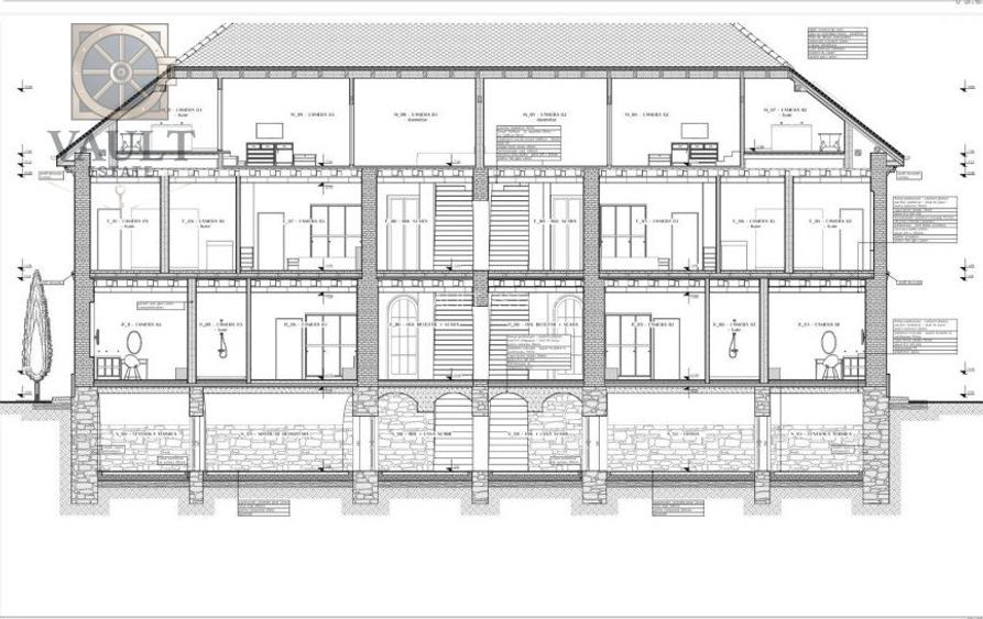
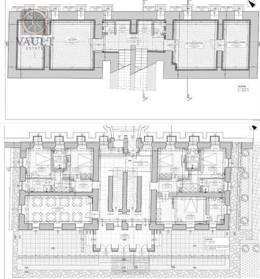
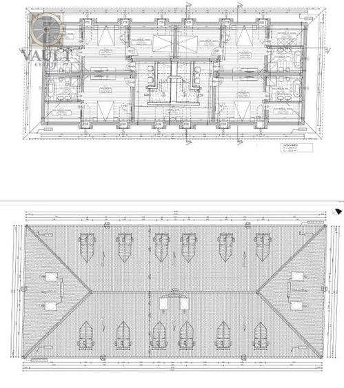
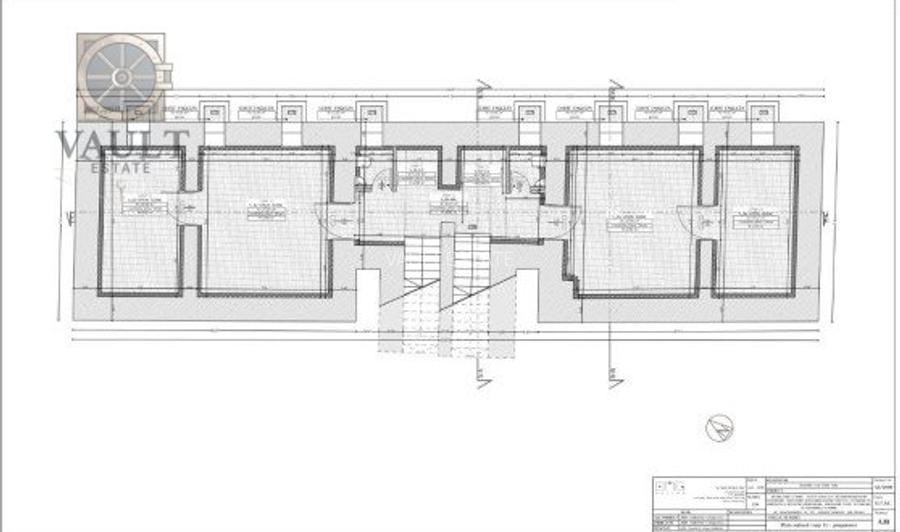
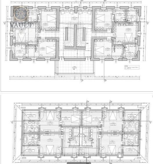
COD PROPRIETATE : P31348 Vault Estate va propune o proprietate deosebita, incarcata de istorie si cu un potential exceptional pentru dezvoltare. Situata in inima pitorestii localitati Sanpetru,in cea mai apropiata suburbie a Brasovului, in regiunea istorica Țara Barsei, aceasta cladire emblematica, cunoscuta drept Școala Evanghelica Saseasca, reprezinta o oportunitate rara pentru investitori, dezvoltatori sau pasionatii de patrimoniu istoric. O istorie profunda, un viitor stralucit Aceasta scoala, care de-a lungul secolelor a fost martorul educarii generatiilor de tineri din comunitatea saseasca, isi scrie astazi un nou capitol. Desi trecutul sau este adanc inradacinat in istoria localitatii – Sanpetru fiind atestat documentar inca din 1240, sub numele de Mons Sancti Petri – cladirea este astazi pe punctul de a se transforma intr-un hotel boutique exclusivist si centru de evenimente premium. Renovarile actuale respecta linia arhitecturala traditionala saseasca, pastrand detaliile care confera autenticitate locului, dar adaugand totodata toate elementele necesare confortului modern. Detalii despre proprietate : Proprietatea se intinde pe un teren generos de 2.474 mp si include doua cladiri principale, dispuse in forma de „L”, inconjurand o curte interioara superb amenajata peisagistic. Cladirea principala : Aceasta are o suprafata construita totala de 1.510 mp, dispusa pe 4 niveluri – subsol, parter, etaj si mansarda. Fiecare dintre acestea este proiectat pentru a gazdui functiuni specifice, imbinand utilitatea cu estetica: Subsolul: un spatiu ideal pentru o crama, unde vizitatorii pot experimenta degustari de vinuri alese intr-un decor autentic si intim. Parterul: zone de luat masa si spatii de socializare, cu o arhitectura eleganta, pastrand detalii originale precum tavanele inalte, arcadele sasesti si zidurile groase, caracteristice constructiilor din acea epoca. Etajul si mansarda: camere generoase, fiecare cu baie proprie si dressing, menite sa ofere oaspetilor un confort de neegalat. Designul interior este gandit sa imbine elementele traditionale, precum grinzile de lemn expuse, cu facilitati de lux. Cladirea secundara Aceasta este deja complet renovata, avand o suprafata construita de 408 mp distribuita pe doua niveluri. Cu finisaje premium si un design modern, cladirea poate fi utilizata imediat. Parterul: gazduieste o bucatarie spatioasa, complet echipata, si un salon ideal pentru organizarea de evenimente restranse, cine festive sau mese pentru grupuri mici. Etajul: include doua apartamente complet mobilate, fiecare gandit pentru a oferi intimitate si confort. Curtea interioara – un colt de rai peisagistic Curtea interioara a fost amenajata cu grija pentru a crea o atmosfera de poveste. Gazonul impecabil, aleile pietruite si vegetatia variata – de la pomi fructiferi la magnolii spectaculoase – contribuie la un peisaj care incanta privirile in orice anotimp. Primavara, magnoliile infloresc intr-un spectacol de culori, iar vara, verdele intens al copacilor ofera o oaza de racoare. Localizare privilegiata : Proprietatea este situata in centrul istoric al Sanpetrului, la doar cativa pasi de impresionanta Biserica Evanghelica Fortificata, construita in 1794 pe temelia unei biserici din secolul al XIII-lea. Aceasta biserica, impreuna cu intreaga zona, creeaza un context turistic deosebit, oferind vizitatorilor o incursiune in istoria si cultura sasilor transilvaneni. De asemenea, Dealul Lempes, o rezervatie naturala situata in apropiere, completeaza peisajul idilic. Privelistea de pe terenul proprietatii este una impresionanta, oferind un refugiu departe de agitatia urbana, dar cu acces facil catre Brasov, aflat la doar cativa kilometri distanta. Aceasta proprietate se remarca prin potentialul sau extraordinar, fiind ideala pentru: Hotel boutique: Camerele generoase, spatiile comune elegante si proximitatea fata de Brasov fac din aceasta proprietate o alegere excelenta pentru un refugiu turistic de lux. Centru de evenimente: Saloanele spatioase si curtea interioara fermecatoare sunt perfecte pentru organizarea de nunti, botezuri, petreceri private sau evenimente corporate. Spatiu mixt: Un hotel cu functiuni suplimentare, precum restaurant, crama, spa sau centru de conferinte, poate raspunde diverselor nevoi ale turistilor si localnicilor. Concluzie Fosta Școala Evanghelica Saseasca din Sanpetru nu este doar o cladire cu valoare istorica, ci si o oportunitate rara de a transforma un simbol al patrimoniului local intr-un proiect modern, cu relevanta turistica si culturala. Aceasta proprietate reprezinta mai mult decat o investitie – este sansa de a deveni parte dintr-o poveste care continua sa inspire generatii. Nr grupuri sanitare: 20 Suprafata construita: 1510 mp Nr incaperi: 20 Utilitati - Sistem incalzire (Centrala proprie,Calorifere); Climatizare (Aer conditionat); Utilitati generale (Curent,Apa,Canalizare,Gaz,CATV) Finisaje - Izolatii termice (Bloc izolat termic); Podele (Gresie,Marmura,Parchet); Iluminat (Lampi,Spoturi,Aplice,Exterior cladire); Ferestre cu geam termopan (PVC) Dotari - Contorizare (Apometre,Contor caldura,Contor gaz); Dotari imobil (Curte,Gradina) pret vanzare: 2350000 moneda vanzare: EUR Disponibilitate proprietate: imediat
Citește mai mult Citește mai puțin

Detalii spațiu comercial

ID anunț: XDTA140NS Copiat! 274993142 Copiat!
Actualizat în: 17 Februarie 2026
Suprafață utilă: 1258 mp
Regim înălțime: P+1E+M
Structură rezistență: Beton

Utilități

Contorizare
Apometre Contor căldură Contor gaz
Dotări imobil
Curte Grădină
Utilități
Curent Apă Canalizare Gaze CATV
Sistem încălzire
Centrală proprie Calorifere
Climatizare
Aer condiționat
Podele
Parchet Gresie Marmură
Izolații termice
Bloc izolat termic
Ferestre cu geam termopan
PVC
Comision
2.5%+TVA

Vecinătăți:

Aerodromul Sanpetru-Brasov , Rezervatia Naturala Lempes , Mega Image

Puncte de interes

Mijloace transport
airport
Aerodromul Sanpetru-Brasov
Aeroporturi aprox. 1745 m
Recreere
restaurant
Hotel Bielmann
Restaurant aprox. 918 m
sports-ground
Teren sportiv
Terenuri sport aprox. 960 m
park
Loc de joaca
Parcuri aprox. 1067 m
restaurant
Hotel restaurant STOP
Restaurant aprox. 1815 m

Proprietăți similare

Hotel/Pensiune, 2000 mp în Sânpetru
2.500.000 €
Județul Brașov, Sânpetru
2.000 mp utili
2005
Birou, în Blumăna
2.380.000 €
Brașov, Blumăna
Clădire de birouri
Hotel/Pensiune, 500 mp în Central
2.350.000 €
Brașov, Central
500 mp utili
3E
1995

Detalii de contact

VAULT ESTATE

Rares Leanca

5.00(4 review-uri)

VAULT ESTATE
PRO

Abonează-te la newsletter să fii primul care primește cele mai noi recomandări de proprietăți și sfaturi de la experți.

CONTACT

Creează alertă

Salvează căutarea ca să primești pe email ultimele anunțuri publicate

Spații comerciale de vânzare în Sânpetru, Județul Brașov