Spatiu industrial de inchiriat, 523 mp, Timisoara exterior NORD

2.500 € + TVA / lună
4.78 € + TVA / mp / lună

Aradului, Timișoara

Sup. prop / mp. prop.:
523 mp
Tip prop.:
Logistică
Niv.:
1
  • • Locație aproximativă
  • • Vizionare prin apel video

Descriere spațiu comercial

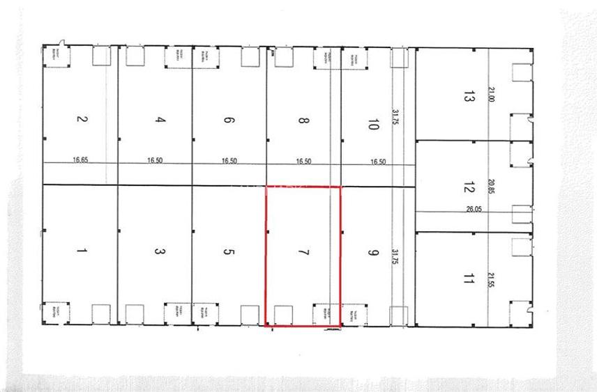
LANDMARK oferă spre inchiriere spații industriale într-un complex modern de hale, situat în zona Calea Aradului - Exterior Nord, cu acces facil la Centura Timișoarei și Autostrada A1. Construcția este nouă, realizată din plăci prefabricate din beton și compusă din multiple unități, cu suprafețe utile cuprinse între 523 mp și 800 mp. Fiecare unitate include o hală destinată producției sau depozitării, având o înălțime liberă sub grindă de 6,5 m, și o zonă de birouri desfășurată pe Parter + Mezanin, in suprafață utila de 60 mp. Spațiile beneficiază de facilități esențiale, cum ar fi: Acces pentru TIR Uși de tip Drive-In ( dimensiuni 4 x 4,6 ml ) Iluminat natural Racorduri pentru apă, canalizare, gaze și curent electric. Pretul chiriei este de 2500 Euro luna + TVA. ID intern 210634
Citește mai mult Citește mai puțin

Detalii spațiu comercial

ID anunț: X6CI140Q2 Copiat! 273842082 Copiat!
Actualizat în: 13 Februarie 2026
Stadiu construcție: Există
An construcție: 2024 (Există)
Structură rezistență: Beton
Regim înălțime: P+1E
Înălțime spațiu (m): 7

Utilități

Comision
80%

Proprietăți recomandate

Detalii de contact

LANDMARK imobiliare

Marius Luput Consultant Imobiliar

5.00(3 review-uri)

LANDMARK imobiliare
PRO

Abonează-te la newsletter să fii primul care primește cele mai noi recomandări de proprietăți și sfaturi de la experți.

CONTACT

Creează alertă

Salvează căutarea ca să primești pe email ultimele anunțuri publicate

Spații comerciale cu o cameră de închiriat în zona Aradului, Timișoara