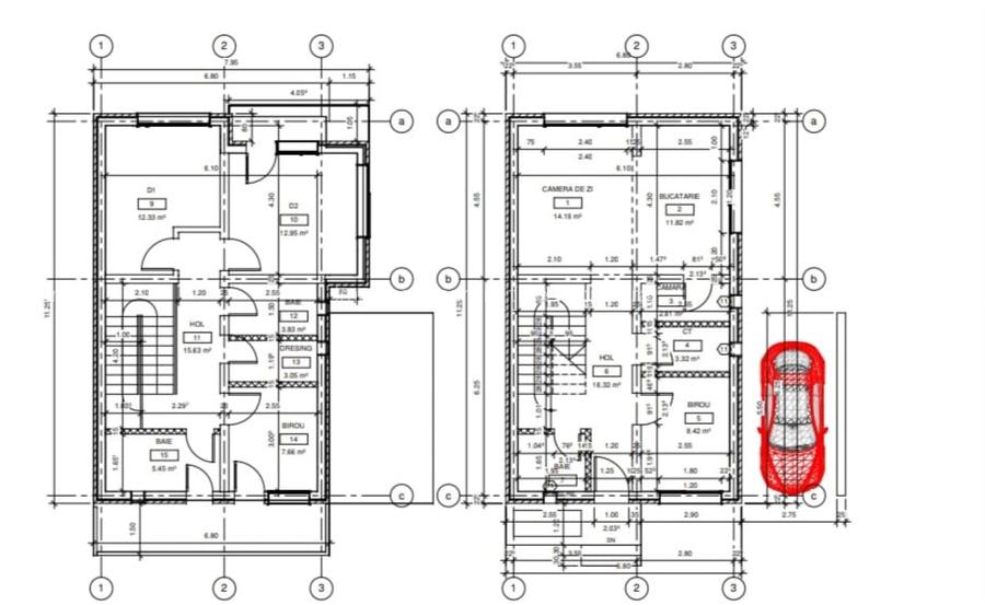
Se oferă spre vânzare un teren de 273 mp, cu front stradal de 11 m, situat într-una dintre cele mai căutate zone ale cartierului Mehala, la câțiva pași de străzile Mircea cel Bătrân și Calea Bogdăneștilor. Pe teren există o casă veche, pentru demolat si s-a obtinut autorizatia de demolare si constructie – un mare avantaj pentru cei care doresc să înceapă rapid lucrările.Proiectul propus este pentru o locuință P+E, modernă și bine compartimentată:
Parter-Living generos-Bucătărie + cămară-Baie-Birou-Cameră tehnică
Etaj-3 dormitoare-2 băi-Dressing-2 terase spațioase
Proiectul include și acces auto, oferind confortul necesar unei familii.
Avantaje-Zonă liniștită și bine cotată din Mehala
-Acces rapid la mijloace de transport, școli, magazine
-Posibilitate de construire imediată
Investiție ideală atât pentru locuință proprie, cât și ca proiect de dezvoltare imobiliară.Pret 112000 Euro -
Sediul central - Timișoara
Bulevardul Victor Babeș nr. 2, 300230, Timișoara, România
Tel: +40.374.40.44.98 / Fax: +40.256.401.179
Email: suport@imobiliare.ro
Luni - Vineri 08:00 - 20:00
Punct de lucru - București: Iride Business Park, Bld. Dimitrie
Pompeiu 9-9A, Clădirea B2B,
020335, Sector 2, București, România
CONTACT
Sediul central - Timișoara
Bulevardul Victor Babeș nr. 2, 300230, Timișoara, România
Tel: +40.374.40.44.98 / Fax: +40.256.401.179
Email: suport@imobiliare.ro
Luni - Vineri 08:00 - 20:00
Punct de lucru - București: Iride Business Park, Bld. Dimitrie
Pompeiu 9-9A, Clădirea B2B,
020335, Sector 2, București, România
Sună acum și cere detalii sau programează o vizionare.
Cere detalii prin email
*
*
*
*
Stații tramvai
Stații autobuz
Stații troleibuz
Stații tren
Gradinițe
Școli
Universități
Supermarket
Parcări
Parcuri
Terenuri sport
Spital
Farmacie
Restaurant
Cafenea
Pub
Bancă
Statie Grigore Alexandrescu Tv5
aprox.
393 m
Statia Madona Tv5
aprox.
511 m
Statie Alexandru Lapusneanu Tv5
aprox.
603 m
Alexandru Lapusneanu
aprox.
607 m
Macilor
aprox.
867 m
Statie Macilor Tv5
aprox.
867 m
Grup Scolar Spiru Haret
aprox.
867 m
Statia Muller Guttenbrunn Tv5
aprox.
906 m
Statia Razboieni Tv5
aprox.
1041 m
Statie Zalau Tv5
aprox.
1048 m
Facultatea de Teologie
aprox.
1119 m
Statia Ronat Tv5
aprox.
1160 m
Ronat
aprox.
1244 m
Statie Balta Verde Tv5
aprox.
1290 m
Statie Balta Verde Tv4, Tv6
aprox.
1360 m
Statie Piata Gros A13
aprox.
688 m
Statie Vuk Karadjic A13
aprox.
906 m
Pasaj CF
aprox.
937 m
Statie Piata Avram Iancu A13
aprox.
1023 m
Statie Pasaj C.F. A13
aprox.
1027 m
Gelu
aprox.
1345 m
Gelu
aprox.
1352 m
Bulevardul Cetatii
aprox.
1355 m
Gheorghe Baritiu
aprox.
1381 m
Statie B-dul Cetatii A13 retur
aprox.
1388 m
C.P. Solventul
aprox.
1445 m
Statie B-dul Cetatii A13
aprox.
1445 m
Bulevardul Cetatii
aprox.
1476 m
Timisoara Nord
aprox.
1581 m
Statie Timis A13
aprox.
1624 m
Statie Gelu T18
aprox.
1354 m
Statie Ghe. Baritiu T11, T14
aprox.
1371 m
Statie Pop de Basesti T11, T14, T18
aprox.
1404 m
Statie Pop de Basesti T11, T14, T18
aprox.
1439 m
Statie Solventul T18
aprox.
1458 m
Timisoara North railway station area (en)
aprox.
1366 m
Terminal RESITA
aprox.
1524 m
Gara de Nord
aprox.
1581 m
Gradinita Program Prelungit Nr. 4
aprox.
510 m
Gradinita Ioana
aprox.
537 m
Gradinita Program Prelungit Nr. 24
aprox.
969 m
Gradinita Cu Program Prelungit Nr. 9 Carla Pelz Mehala
aprox.
1080 m
Gradinita Program Normal Nr. 23
aprox.
1214 m
Gradinita Best Kids
aprox.
1407 m
Gradinita Program Prelungit Nr. 25
aprox.
1483 m
Gradinita Biancaneve
aprox.
1516 m
Gradinita Samariteanul Nr. 13
aprox.
1582 m
Gradinita Program Prelungit C.F.R.
aprox.
1679 m
Gradinita Bunul Pastor
aprox.
1729 m
Grădinița nr. 26 Timișoara
aprox.
1864 m
Gradinita nr. 26
aprox.
1879 m
Gradinita nr. 36
aprox.
1997 m
Liceul Spiru Haret
aprox.
883 m
Liceul Teoretic Socrates
aprox.
1002 m
LICEU TEHNOLOGIC de Industrie Alimentara
aprox.
1017 m
scoala gen 11
aprox.
1019 m
Colegiul Tehnic Dimitrie Leonida
aprox.
1080 m
SCOALA GIMNAZIALĂ NR.19 "AVRAM IANCU"
aprox.
1096 m
Grup scolar Industrial Transporturi Cai ferate
aprox.
1105 m
Liceul Tehnologic de Industrie Alimentara
aprox.
1151 m
Sc.Gen.nr.19 "Avram Iancu"
aprox.
1408 m
Scoala Gimnaziala nr. 19 Avram Iancu
aprox.
1423 m
Scoala Generala Nr. 18
aprox.
1879 m
Scoala Gimnaziala nr. 18
aprox.
1897 m
Scoala Generala 26
aprox.
1991 m
Clubul Sportiv Scolar Bega
aprox.
1992 m
Scoala Gimnaziala nr. 26
aprox.
1995 m
Universitatea de Vest, Facultatea de teologie ortodoxa
aprox.
1032 m
Facultatea de Teologie
aprox.
1042 m
SC Alex & Nelu
aprox.
386 m
Profi
aprox.
751 m
Profi City
aprox.
894 m
Nova Tim
aprox.
1084 m
Carrefour Market
aprox.
1283 m
Profi City
aprox.
1474 m
Profi City
aprox.
1548 m
Billa
aprox.
1851 m
Penny Market
aprox.
1858 m
DM
aprox.
1998 m
Parcare privata
aprox.
469 m
Parcare privata
aprox.
533 m
Parcare privata
aprox.
557 m
Parcare privata
aprox.
559 m
Parcare privata
aprox.
580 m
Parcare privata
aprox.
673 m
Parcare
aprox.
764 m
Parcare
aprox.
794 m
Parcare privata
aprox.
972 m
Parcare privata
aprox.
990 m
Parcare
aprox.
1571 m
Parcare
aprox.
1610 m
Parcare
aprox.
1651 m
Parcare
aprox.
1877 m
Parcare privata
aprox.
1892 m
Parc
aprox.
649 m
Parc
aprox.
674 m
Parc
aprox.
688 m
Parc
aprox.
837 m
Parc
aprox.
848 m
Parc Macilor
aprox.
849 m
Scuarul Macilor
aprox.
849 m
Parc
aprox.
939 m
Avram Iancu Square (en)
aprox.
1144 m
Piata Avram Iancu
aprox.
1158 m
Parc Bucovina
aprox.
1550 m
Piata Sfantul Nicolae
aprox.
1567 m
Piata Sfantul Nicolae
aprox.
1574 m
Parcul Ioan Nistor
aprox.
1743 m
parc Dacia
aprox.
1973 m
Teren sportiv
aprox.
793 m
Teren sintetic pentru fotbal
aprox.
939 m
Teren sportiv
aprox.
1128 m
Teren sportiv
aprox.
1441 m
Teren sportiv
aprox.
1457 m
Teren sportiv
aprox.
1490 m
Teren sportiv
aprox.
1566 m
Teren sportiv
aprox.
1931 m
Arena Viola
aprox.
1938 m
Teren sportiv
aprox.
1971 m
Medicina Legala
aprox.
722 m
Cabinet Medicina de Familie
aprox.
1229 m
Medicover
aprox.
1384 m
President
aprox.
1582 m
Policlinica C.F.R.
aprox.
1583 m
BioClinica (en)
aprox.
1767 m
Kastel Daro Tim - Chimicale si sticlarie laborator
aprox.
733 m
Farmacia DONA
aprox.
878 m
Richter
aprox.
1368 m
Farmacia Richter
aprox.
1487 m
Farmacia Dona
aprox.
1599 m
Restaurant Miraj (en)
aprox.
470 m
Pensiunea Zefir
aprox.
546 m
Antichi Sapori (en)
aprox.
677 m
Sidney
aprox.
679 m
Pizza Plus (en)
aprox.
1222 m
PUB 33 (en)
aprox.
1466 m
Fast Food Sultan
aprox.
1704 m
Pizzeria Giovanna
aprox.
1790 m
Giovana
aprox.
1790 m
tomis restaurant (en)
aprox.
1812 m
Fast Food
aprox.
1948 m
Texas Stake House
aprox.
1986 m
Texas
aprox.
1986 m
Cafe Nick
aprox.
618 m
Orlovi
aprox.
1948 m
Caffe Tim Nord
aprox.
1554 m
Orlovi
aprox.
1956 m
Club Bordeaux
aprox.
1989 m
Casino El Dorado
aprox.
1992 m
BRD
aprox.
1292 m
BCR agency (en)
aprox.
1375 m
BCR
aprox.
1383 m
BCR
aprox.
1584 m
UniCredit Bank
aprox.
1621 m
Raiffeisen Bank
aprox.
1645 m
Banca Transilvania
aprox.
1657 m
BCR
aprox.
1670 m
Banca Transilvania
aprox.
1727 m
BRD agency (en)
aprox.
1733 m
ING Bank
aprox.
1736 m
ING
aprox.
1981 m
La capitolul mijloace de transport în comun, de menționat este autobuzul 13, care circulă pe Strada Cloșca și ajunge în Circumvalațiunii, iar apoi în zona centrală a orașului; pe Calea Bogdăneștilor (stradă ce marchează limita cu Blașcovici), merge și tramvaiul 5, care ajunge, de asemenea, în zona Cetate. Deși pasionații de ciclism nu beneficiază de o rețea de piste dedicate, aceștia au, totuși, acces la o amenajare de acest tip pe Bulevardul Cetății (care marchează limita cu Circumvalațiunii).
Dacă te gândești să te muți aici, e bine să știi, că spre deosebire de învecinatul Ronaț, Mircea cel Bătrân-Mehala oferă ceva mai multe oportunități în materie de educație. Astfel, dintre unitățile de învățământ din cartier, de menționat ar fi Liceul Tehnologic "Spiru Haret" (de pe Calea Bogdăneștilor, nr. 32B), dar și Liceul Tehnologic de Industrie Alimentară (de pe Calea Bogdăneștilor, nr. 32A). În mod interesant, această zonă a Timișoarei oferă și o opțiune în materie de învățământ superior: este vorba despre Facultatea de Teologie, amplasată tot pe Calea Bogdăneștilor, la nr. 69. De precizat ar fi, totuși, că cei care au copii pot întâmpina probleme în găsirea unei școli sau unei grădinițe strict între granițele acestui cartier "“ motiv pentru care ar putea fi nevoiți să se orienteze spre alte zone ale orașului. Pentru ciclul preșcolar, spre exemplu, una dintre cele mai apropiate unități ar fi Grădinița Kinderwelt, din Ronaț (de pe Strada Locotenent Ovidiu Balea, nr. 21).
În materie de retail, Mircea cel Bătrân-Mehala este, comparativ cu alte subdiviziuni ale orașului de pe Bega, o zonă relativ bine reprezentată (asta în ciuda faptului că aici nu se găsește nici un mall sau hipermarket). Astfel, pe lângă o serie de magazine "de cartier", timișorenii care locuiesc aici au la dispoziție atât un supermarket din rețeaua Carrefour (pe Bulevardul Cetății, nr. 1A), cât și un Profi (amplasat pe Strada Locotenent Ovidiu Balea, la nr. 2). De menționat este că în vestul cartierului există, de altfel, o adevărată zonă comercială: aici se găsește, de asemenea, Piața de Gros, unde vin în special producători de fructe și legume (situată pe Strada Mesteacănului, nr. 31), dar și Piața de Mașini Mehala; zona este cunoscută, de asemenea, și pentru vânzarea de lemne.
Fiind un cartier format în mod preponderent din case și vile, găsirea unui loc de parcare, atât de către rezidenți, cât și de către vizitatori, nu ar trebui să ridice prea mari dificultăți. Locuitorii zonei dornici totuși să închirieze un asemenea spațiu se pot adresa oficialilor Primăriei (al cărei sediu se află în zona Cetate, pe Bulevardul Constantin Diaconovici Loga, nr. 1).
În ciuda faptului că este, la fel ca Torontalului-Bucovina, spre exemplu, o zonă destul de verde a Timișoarei, Mircea cel Bătrân-Mehala nu stă deloc bine la capitolul parcuri. Astfel, deși cei care au copii pot spera să găsească câteva locuri de joacă special amenajate, ceilalți locuitori ai cartierului nu au, totuși, la dispoziție niciun parc în adevăratul sens al cuvântului. Pe timp de weekend, însă, acest neajuns poate fi remediat printr-un drum în zona Cetate, cea mai ofertantă la acest capitol. Pentru timișorenii din această zonă a orașului, cele mai facile metode de a face mișcare ar fi mersul pe jos, joggingul și chiar mersul cu bicicleta. O oportunitate demnă de menționat este reprezentată de faptul că în zona de blocuri, aproape de limita cu Circumvalațiunii, se găsesc și două terenuri de sport: unul de fotbal și altul de tenis.
Locuitorii cartierului pot găsi câteva cabinete medicale individuale cu diferite specializări, iar ca centru medical de dimensiuni mai mari, găsim Centrul Medical Dr. Balica, pe strada Alexandru Lăpușneanu, nr. 10. Datorită proximității zonei cu Cetății, ofertantă din punctul de vedere al serviciilor medicale este și Bioclinica de pe Blvd. Cetății, nr. 53B. În plus, de aici se poate ajunge cu ușurință în zona Cetate, unde pot fi găsite mai multe spitale de stat "“ cum ar fi Spitalul Clinic Municipal de Urgență Timișoara, Spitalul Militar de Urgență, dar și Spitalul Clinic de Urgență pentru Copii. Pe harta de mai jos găsești localizarea exactă a spitalelor și clinicilor din zonă:
Găsim aici câteva fast-food-uri de cartier și câteva pizzerii, însă niciun restaurant de dimesniuni mai mari, cu un meniu variat. Totuși, cartierul se învecinează cu Blașcovici la sud, Circumvalațiunii la est și, respectiv, Torontalului-Bucovina la nord-est, unde ai șansa să găsești ceva pe gustul tău. Aruncă o privire pe hartă și vezi unde vei găsi cel mai apropiat restaurant de viitoarea ta locuință.
În ceea ce privește sectorul bancar, zona este slab reprezentată. Totuși, găsești un bancomat de BRD pe strada Mircea cel Bătrân, nr. 28. Vecinătatea cu zona Circumvalațiunii constituie un avantaj, deoarece aici ai mai multe bancomate și sucursale bancare. Consultă harta și află unde sunt localizate și alte bănci sau ATM-uri în zona de care ești interesat.
Înainte să pleci...
Ești sigur că ai văzut și aceste proprietăți?
115.000 €
Timișoara, Aeroport
791 mp teren
Construcții
115.000 €
Timișoara, Odobescu
698 mp teren
Construcții
112.500 €
Timișoara, Braytim
500 mp teren
Construcții
Creează alertă
Salvează căutarea ca să primești pe email ultimele anunțuri publicate
Terenuri construcții de vânzare în zona Mehala, Timișoara
Cere detalii prin email
*
*
*
*
Detaliile tale de contact vor fi partajate cu Imobiliare Pentru Tine Timisoara