Apartament cu 2 camere | constructie noua | suprafata 69 mp | loc parcare

600 € / lună

Mărăști, Cluj-Napoca

Nr. cam.:
2
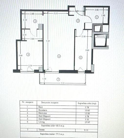
Sup. utilă:
68,5 mp
Etaj:
Parter / 6
Tip prop.:
Bloc de apartamente
  • • Locație exactă

Descriere apartament

Va propunem spre inchiriere un apartament cu 2 camere, in ansamblul Elite Residence, situat la parter, mobilat si utilat, cu bucatarie inchisa. Suprafata utila de 69 mp, este optim distribuita intre living spatios, dormitor confortabil si bucatarie inchisa complet echipata. Beneficiaza de parcare in parcarea subterana a complexului, acces securizat, lift si spatii comune bine intretinute. Apartamentul este proaspat zugravit, situat intr-un ansamblu nou, cu facilitati moderne si instalatii noi. Locatia in Elite Residence asigura acces facil la mijloacele de transport si centre comerciale. Pentru a programa o vizionare sau mai multe detalii despre apartament, asteptam sa ne contactati.
Citește mai mult Citește mai puțin
Confort lux Decomandat Mobilat Lux 1 Balcon / Terasă / Logie Curte Centrală imobil Încălzire prin pardoseală 1 Garaj

Detalii apartament

ID anunț: X4V31006S Copiat! 275235345 Copiat!
Actualizat în: 10 Martie 2026
Suprafață construită: 72 mp
Nr. bucătării: 1
Nr. băi: 1
Structură rezistență: Cărămidă
Regim înălțime: D+P+6E

Utilități

Destinație
Rezidențial
Pereți
Vopsea lavabilă Faianță
Podele
Parchet Gresie
Ușă intrare
Metal
Uși interior
Celulare
Izolații termice
Exterior
Contorizare
Apometre Contor căldură
Bucătărie
Mobilată Utilată
Electrocasnice
Mașină de spălat Frigider Aragaz Mașină spălat vase
Diverse
Telecomandă poartă acces auto
Alte spații utile
Debara
Facilități imobil
Interfon
Utilități
Curent Apă Canalizare
Amenajare străzi
Asfaltate Iluminat stradal Mijloace de transport în comun
Comision
50%+TVA

Disponibilitate proprietate:

imediat

Puncte de interes

Mijloace transport
bus-station
Terapia Vest
Stații autobuz aprox. 103 m
tram-station
Statia TERAPIA1 TRV, Linia 100, 102, 23, 26, 48, 50
Stații tramvai aprox. 128 m
bus-station
Terapia Est
Stații autobuz aprox. 134 m
tram-station
Terapia Nord
Stații tramvai aprox. 148 m
Școală
school
Grup Școlar Aurel Vlaicu
Școli aprox. 507 m
kindergarten
Grăd.Floare de iris
Gradinițe aprox. 632 m
university
Facultatea de Ingineria Materialelor si a Mediului
Universități aprox. 1100 m
school
Grup Școlar Industrial Tehnofrig
Școli aprox. 1299 m
Recreere
park
Junior Residence Park
Parcuri aprox. 261 m
supermarket
Auchan Iris
Supermarket aprox. 318 m
sports-ground
Teren sportiv
Terenuri sport aprox. 662 m
public-square
Piata 1848
Piețe publice aprox. 1546 m

Detalii despre preț și costuri

Prețul pe piață

Preț cerut: 600 €

Preț min. zonă 430 €
Preț max. zonă 800 €

55% dintre proprietățile similare ca zonă și nr. camere au prețul cerut mai mare. mai multe...

Bine de știut: prețul unei proprietăți este influențat și de alte caracteristici, cum ar fi: vechime, localizare, vecinătăți, suprafață, compartimentare, amenajări, dotări, etc. mai puțin...

Proprietăți similare

Apartament cu 2 camere semidecomandat, mobilat în Mărăști
600 € / lună
Cluj-Napoca, Mărăști
2 camere
55 mp
Etaj 2 / 5
Apartament cu 3 camere decomandat, mobilat în Mărăști
650 € / lună
Cluj-Napoca, Mărăști
3 camere
65 mp
Etaj 2 / 5
Apartament cu 2 camere decomandat, mobilat în Mărăști
550 € / lună
Cluj-Napoca, Mărăști
2 camere
55 mp
Etaj 1 / 4

Detalii de contact

REMS imobiliare

Cristina Gherman cristinaghermanremsimobiliarero

REMS imobiliare
PRO

Abonează-te la newsletter să fii primul care primește cele mai noi recomandări de proprietăți și sfaturi de la experți.

CONTACT

Creează alertă

Salvează căutarea ca să primești pe email ultimele anunțuri publicate

Apartamente cu 2 camere de închiriat în zona Mărăști, Cluj-Napoca