Aviației Tower | 3 Camere | Centrala | Balcon | Parcare | Prox. Metrou |

1.450 € / lună

Aviației, București

Nr. cam.:
3
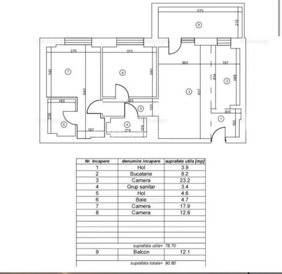
Sup. utilă:
79 mp
Etaj:
5 / 11
An constr.:
2021 (Finalizată)
  • • Locație aproximativă

Descriere apartament

P247912 IPROPERTY INVESTMENT va propune spre INCHIRIERE un apartament cu 3 camere, situat in zona Aviatiei .Acest apartament este ideal pentru cei care își doresc un stil de viață confortabil, într-o locație centrală, cu acces facil la transportul public, centre comerciale, restaurante și alte facilități urbane. Apartamentul are o suprafata de 79 mp si se afla la ETAJUL 5 intr-un bloc cu regim de inaltime P+ 11. Apartamentul este complet mobilat și utilat, pregătit pentru mutare imediată. Comisionul perceput de IProperty Investment este de 50% din prima lună de chirie. Pentru mai multe informații și programarea unei vizionări, vă invităm să ne contactați! IProperty Investment – soluția dumneavoastră pentru investiții imobiliare inteligente. Agent: Floarea Robert
Citește mai mult Citește mai puțin
Confort 1 Semidecomandat Mobilat Mobilat 1 Balcon / Terasă / Logie Aer condiționat Centrală proprie Încălzire prin pardoseală 1 Parcare Bine întreținut (Bună)

Detalii apartament

ID anunț: XFJN101KP Copiat! 275224879 Copiat!
Actualizat în: 09 Martie 2026
Suprafață construită: 91 mp
Nr. bucătării: 1
Nr. băi: 2
Structură rezistență: Beton
Tip imobil: Bloc de apartamente
Regim înălțime: P+11E

Utilități

Contorizare
Apometre Contor căldură Contor gaz
Bucătărie
Mobilată Utilată
Electrocasnice
Mașină de spălat Frigider Mașină spălat vase TV Cuptor microunde Hotă
Facilități imobil
Interfon Lift
Utilități
Curent Apă Canalizare Gaze CATV Telefon
Amenajare străzi
Asfaltate Iluminat stradal

Puncte de interes

Mijloace transport
tram-station
Statia Platforma Pipera, linia 16,36
Stații tramvai aprox. 243 m
bus-station
Rt 455 Pipera Tunari Maxi taxi Terminal (en)
Stații autobuz aprox. 247 m
tram-station
Platforma Industriala Pipera (Urcare)
Stații tramvai aprox. 280 m
metro-station
Aurel Vlaicu (M2)
Stații metrou aprox. 604 m
Școală
school
Grupul Scolar Industrial Constantin Brancusi (en)
Școli aprox. 91 m
school
Colegiul Tehnic Edmond Nicolau, fostul Electronica
Școli aprox. 157 m
kindergarten
Gradinita SOS Satul Copiilor
Gradinițe aprox. 522 m
university
Athenaeum University (en)
Universități aprox. 1869 m
Recreere
restaurant
Snack Attack Pipera 2
Restaurant aprox. 195 m
supermarket
Carrefour Market
Supermarket aprox. 252 m
park
Parc
Parcuri aprox. 305 m
sports-ground
Teren sportiv
Terenuri sport aprox. 393 m

Detalii despre preț și costuri

Prețul pe piață

Preț cerut: 1.450 €

Preț min. zonă 700 €
Preț max. zonă 2.100 €

99% dintre proprietățile similare ca zonă și nr. camere au prețul cerut mai mare. mai multe...

Bine de știut: prețul unei proprietăți este influențat și de alte caracteristici, cum ar fi: vechime, localizare, vecinătăți, suprafață, compartimentare, amenajări, dotări, etc. mai puțin...

Proprietăți similare

Apartament cu 3 camere, mobilat în Aviației
1.450 € / lună
București, Aviației
3 camere
78 mp
Etaj 3
Apartament cu 3 camere în Aviației
1.400 € / lună
București, Aviației
3 camere
110 mp
Etaj 1 / 5
Apartament cu 2 camere decomandat, mobilat în Aviației
1.399 € + TVA / lună
București, Aviației
2 camere
60 mp
Etaj 8

Detalii de contact

Iproperty Investment

Iproperty Investment

4.70(8 review-uri)

Iproperty Investment
PRO

Abonează-te la newsletter să fii primul care primește cele mai noi recomandări de proprietăți și sfaturi de la experți.

CONTACT

Creează alertă

Salvează căutarea ca să primești pe email ultimele anunțuri publicate

Apartamente cu 3 camere de închiriat în zona Aviației, Sector 1