Apartament nemobilat 3 camere Dorobanti M261

700 € / lună

Dorobanți, București

Nr. cam.:
3
Sup. utilă:
83 mp
Etaj:
3 / 3
An constr.:
1939 (Finalizată)
  • • Exclusivitate
  • • Locație exactă

Descriere apartament

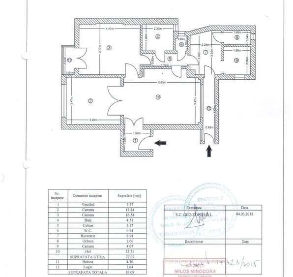
**Apartament 3 camere, 83 mp utili, Dorobanți – Etaj 3/3+Mansarda, APARTAMENTUL VA FI ZUGRĂVIT Și IGIENIZAT Pretabil prentru locuit si pentru activități comerciale, firme, birouri, cabinet, salon, sala de cursuri, Vă prezentăm spre închiriere un apartament elegant cu 3 camere, situat într-una dintre cele mai exclusiviste zone ale Capitalei – **Dorobanți**, cu **vedere directă către Calea Dorobanților**. 📍 **Detalii generale:** * Suprafață utilă: **83 mp** * Compartimentare: **decomandat/circular** – ideal pentru confort și flexibilitate în amenajare * Etaj: **3 din 3**, deasupra aflându-se **mansarda** * Clădire solidă, construită în **1939**, cu **tavane înalte** și **camere generoase**, specifice arhitecturii interbelice 🛋️ **Configurație apartament:** * **Living spațios** și luminos * **2 dormitoare** confortabile * **Bucătărie separată**, cu spațiu suficient pentru zona de gătit și depozitare * **2 băi** * **2 balcoane** – perfecte pentru relaxare sau spațiu de depozitare suplimentar ** 1 boxă la subsol de 6 mp * **Centrală termică proprie** – eficiență și costuri de întreținere reduse * **Vedere liberă** către Calea Dorobanților – un plus de valoare și lumină naturală 📍 **Localizare excelentă:** Situat în imediata apropiere a cafenelelor de lux, restaurantelor, pieței Dorobanți, școlilor și mijloacelor de transport, acest apartament este ideal atât pentru rezidență, cât și pentru investiție. NU ESTE INCADRAT IN NICI O CLASA DE RISC SAU URGENTA Vecinatati Floreasca, Capitale, Stefan cel Mare, Iancu de Hunedoara, Polona, Victoriei, Barbu Vacarescu, Aviatorilor, Primaverii, Kiseleff, Dacia, Eminescu, Liceul Caragiale
Citește mai mult Citește mai puțin
Confort 1 Circular Nemobilat 2 Balcoane / Terase / Logii Aer condiționat Calorifere Centrală proprie Bine întreținut (Bună)

Detalii apartament

ID anunț: XE0M101RC Copiat! 275213736 Copiat!
Actualizat în: 06 Martie 2026
Nr. bucătării: 1
Nr. băi: 2
Structură rezistență: Cărămidă
Tip imobil: Bloc de apartamente
Regim înălțime: P+3E+M

Utilități

Pereți
Faianță Vopsea lavabilă
Podele
Gresie Parchet
Ușă intrare
Metal
Uși interior
Lemn
Ferestre cu geam termopan
PVC
Contorizare
Apometre Contor căldură Contor gaz
Diverse
Senzor de fum
Facilități imobil
Interfon
Utilități
Curent Apă Canalizare CATV Gaze Telefon
Internet
Cablu
Amenajare străzi
Iluminat stradal Mijloace de transport în comun Asfaltate
Comision
standard

Disponibilitate proprietate:

Imediat

Puncte de interes

Mijloace transport
bus-station
Statia Liceul Ion Luca Caragiale, linia 131, 182, 330, 331, 335, N113, 301
Stații autobuz aprox. 75 m
tram-station
Calea Dorobantilor
Stații tramvai aprox. 445 m
metro-station
Metrorex. Stația Ștefan cel Mare (M1)(1989)
Stații metrou aprox. 768 m
trolleybus-station
Statia Calea Dorobantilor; Liniile:79, 86,
Stații troleibuz aprox. 1068 m
Școală
school
Badulescu Aurelia (en)
Școli aprox. 103 m
school
Liceul Alexandru Vlahuta + Scoala 15 (en)
Școli aprox. 130 m
kindergarten
Gradinita cu program normal si prelungit Happy Kids
Gradinițe aprox. 331 m
university
SNSPA
Universități aprox. 771 m
Recreere
park
Parc
Parcuri aprox. 96 m
supermarket
Mega Image
Supermarket aprox. 243 m
sports-ground
Teren sportiv
Terenuri sport aprox. 440 m
mall
"METROPLIS CENTER"
Mall aprox. 499 m

Detalii despre preț și costuri

Prețul pe piață

Preț cerut: 700 €

Preț min. zonă 750 €
Preț max. zonă 3.500 €

i

Proprietate cu prețul cerut în afara intervalului mai multe...

Posibile explicații pentru faptul că prețul proprietății este sub cel minim: imobil cu risc seismic, imobil cu probleme structurale, imobil demolabil, poziționare în altă zonă
Bine de știut: prețul unei proprietăți este influențat și de alte caracteristici, cum ar fi: vechime, localizare, vecinătăți, suprafață, compartimentare, amenajări, dotări, etc.

Proprietăți similare

Apartament cu 2 camere decomandat, mobilat în Dorobanți
700 € / lună
București, Dorobanți
2 camere
54,37 mp
Etaj 1 / 8
Apartament cu 2 camere decomandat, mobilat în Dorobanți
650 € / lună
București, Dorobanți
2 camere
65 mp
Parter
Apartament cu 2 camere decomandat, mobilat în Dorobanți
699 € / lună
București, Dorobanți
2 camere
55 mp
Etaj 1

Detalii de contact

GMC Imobiliare

GMC Imobiliare Manager

5.00(5 review-uri)

GMC Imobiliare
PRO

Abonează-te la newsletter să fii primul care primește cele mai noi recomandări de proprietăți și sfaturi de la experți.

CONTACT

Creează alertă

Salvează căutarea ca să primești pe email ultimele anunțuri publicate

Apartamente cu 3 camere de închiriat în zona Dorobanți, Sector 1