4

Vedere libera | Duplex insorit cu 4 camere, 3 bai | 191mp

2.500 € / lună

Dorobanți, București

Nr. cam.:
4
Sup. utilă:
139 mp
Etaj:
2 / 4
An constr.:
2013 (Finalizată)
  • • Locație aproximativă

Descriere apartament

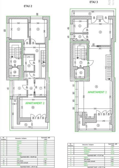
Amplasat in zona Dorobanti Capitale, pe o strada linistita si plina de verdeata, acest apartament duplex cu 4 camere se afla la etajele 2+3 ale unui imobil S+P+4 din 2013. Este nemobilat. Are o suprafata totala de 210mp, 139mp utili plus 20mp terase. Este compus dintr-un living generos și însorit cu acces pe terasa, bucatarie separata si echipata cu iesire pe o terasa secundara, grup sanitar, dormitor matrimonial cu baie proprie, zona de dressing și iesire pe terasa si 2 dormitoare secundare care impart o baie secundara. Beneficiază de 1 loc de parcare in garajul subteran. Apartamentul este potrivit pentru rezidenta datorită locației apropiate de toate facilitățile zonei (parc, cafenele, mijloace de transport in comun, magazine).
Citește mai mult Citește mai puțin
Confort lux Decomandat Nemobilat 2 Balcoane / Terase / Logii Aer condiționat Calorifere Centrală proprie 1 Garaj Renovat

Detalii apartament

ID anunț: X1UR102BR Copiat! 269182190 Copiat!
Actualizat în: 20 Februarie 2026
Suprafață construită: 210 mp
Nr. bucătării: 1
Nr. băi: 3
Structură rezistență: Beton
Tip imobil: Bloc de apartamente
Regim înălțime: S+P+4E

Utilități

Destinație
Rezidențial
Pereți
Faianță Vopsea lavabilă
Podele
Gresie Parchet
Rulouri/Obloane
Aluminiu
Ușă intrare
Metal
Uși interior
Lemn
Izolații termice
Exterior
Ferestre cu geam termopan
Aluminiu
Contorizare
Apometre Contor căldură Contor gaz
Bucătărie
Mobilată Utilată
Electrocasnice
Aragaz Frigider Hotă Mașină de spălat Mașină spălat vase
Diverse
Scară interioară Sistem de alarmă Telecomandă poartă garaj
Facilități imobil
Acoperiș Interfon Lift Videointerfon
Utilități
Curent Apă Canalizare CATV Gaze Telefon
Internet
Cablu Wireless
Servicii imobil
Supraveghere video
Amenajare străzi
Iluminat stradal Mijloace de transport în comun Asfaltate
Comision
standard

Vecinătăți:

Dorobanti Capitals

Disponibilitate proprietate:

Imediat

Puncte de interes

Mijloace transport
tram-station
Pasaj Victoria
Stații tramvai aprox. 363 m
bus-station
Statia Liceul Ion Luca Caragiale, linia 131, 182, 330, 331, 335, N113, 301
Stații autobuz aprox. 375 m
metro-station
Metrou Victoriei - iesire Aviatorilor
Stații metrou aprox. 519 m
trolleybus-station
Statia Piata Romana linii : 79,86
Stații troleibuz aprox. 1035 m
Școală
school
Liceul Nicolae Tonitza
Școli aprox. 250 m
kindergarten
Gradinita de copii nr.251
Gradinițe aprox. 347 m
school
Badulescu Aurelia (en)
Școli aprox. 348 m
university
SNSPA
Universități aprox. 625 m
Recreere
sports-ground
Teren sportiv
Terenuri sport aprox. 102 m
park
Parc
Parcuri aprox. 251 m
supermarket
Mega Image
Supermarket aprox. 436 m
mall
"METROPLIS CENTER"
Mall aprox. 542 m

Detalii despre preț și costuri

Prețul pe piață

Preț cerut: 2.500 €

Preț min. zonă 1.150 €
Preț max. zonă 5.500 €

55% dintre proprietățile similare ca zonă și nr. camere au prețul cerut mai mare. mai multe...

Bine de știut: prețul unei proprietăți este influențat și de alte caracteristici, cum ar fi: vechime, localizare, vecinătăți, suprafață, compartimentare, amenajări, dotări, etc. mai puțin...

Proprietăți recomandate

Detalii de contact

GOLDENKEY

Alina Radulescu Senior Consultant

5.00(3 review-uri)

GOLDENKEY
PRO

Abonează-te la newsletter să fii primul care primește cele mai noi recomandări de proprietăți și sfaturi de la experți.

CONTACT

Creează alertă

Salvează căutarea ca să primești pe email ultimele anunțuri publicate

Apartamente cu 4+ camere de închiriat în zona Dorobanți, Sector 1