Sanctuarul tău deasupra parcului în One Rahmaninov

2.699 € / lună

Floreasca, București

Nr. cam.:
2
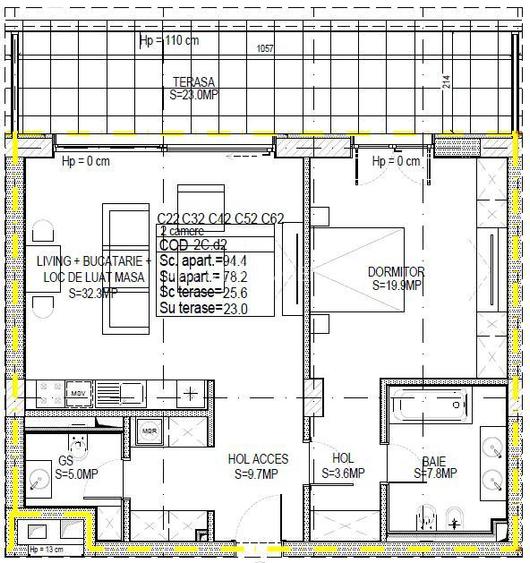
Sup. utilă:
78 mp
Etaj:
5 / 6
An constr.:
2023 (Finalizată)
  • • Locație exactă
  • • Vizionare prin apel video

Descriere apartament

Există momente în care acasă nu mai este doar o adresă, ci o stare de spirit. Situat la granița fină dintre efervescența zonei Floreasca și liniștea absolută a Parcului Verdi, acest apartament de la etajul 5 a fost creat pentru cei care știu că luxul se măsoară în spațiu, lumină și liniște. Imaginează-ți diminețile în care primele raze de soare inundă livingul generos de 78 mp, invitându-te pe terasa privată de 25 mp. Aici, deasupra coroanelor verzi ale copacilor, cafeaua are alt gust, iar orașul pare să respire odată cu tine. Este „grădina ta suspendată”, locul unde apusurile se transformă în spectacole private, departe de zgomotul străzii. Fiecare detaliu, de la finisajele impecabile până la eleganța lobby-ului monumental care te întâmpină la sosire, este o declarație de stil. Siguranța ta și a mașinii tale este garantată de locul de parcare inclus, oferindu-ți confortul unei vieți fără griji în cel mai dorit cartier al Bucureștiului. Alege să trăiești la înălțime. Nu doar la etajul 5, ci la un alt nivel de rafinament.
Citește mai mult Citește mai puțin
Confort lux Decomandat Mobilat Mobilat Lux 1 Balcon / Terasă / Logie Curte Aer condiționat Calorifere Centrală proprie 1 Parcare 1 Garaj Renovat

Detalii apartament

ID anunț: XE7B0012G Copiat! 275214024 Copiat!
Actualizat în: 06 Martie 2026
Nr. bucătării: 1
Nr. băi: 2
Structură rezistență: Cărămidă
Tip imobil: Bloc de apartamente
Regim înălțime: P+6E

Utilități

Destinație
Rezidențial
Jaluzele
Orizontale
Pereți
Vopsea lavabilă Faianță
Podele
Gresie Parchet
Ușă intrare
Metal
Uși interior
Lemn
Izolații termice
Exterior
Ferestre cu geam termopan
PVC
Contorizare
Contor gaz Apometre Contor căldură
Bucătărie
Mobilată Utilată
Electrocasnice
Fier de călcat Uscător păr Prăjitor pâine Hi-Fi Mașină de spălat Frigider Cuptor microunde Aragaz Hotă Mașină spălat vase Aspirator TV
Diverse
Senzor de fum Sistem de alarmă Telecomandă poartă garaj Telecomandă poartă acces auto
Alte spații utile
Terasă WC Serviciu
Facilități imobil
Lift Interfon
Utilități
Gaze Curent Canalizare Apă
Internet
Fibră optică Wireless
Amenajare străzi
Asfaltate Iluminat stradal Mijloace de transport în comun
Comision
50%

Certificat energetic:

Clasa energetică: A

Disponibilitate proprietate:

imediat

Puncte de interes

Mijloace transport
bus-station
Statia Calea Floreasca / Ceaikovski / Mircea Eliade, linia 135, 182, 282, N119, N123
Stații autobuz aprox. 335 m
tram-station
Ceaikovski
Stații tramvai aprox. 391 m
metro-station
Metrorex. Stația Ștefan cel Mare (M1)(1989)
Stații metrou aprox. 1095 m
trolleybus-station
Statia Calea Dorobantilor; Liniile:79, 86,
Stații troleibuz aprox. 1739 m
Școală
kindergarten
Paradisul Copiilor
Gradinițe aprox. 81 m
school
Gradinita Floreasca Rahmaninov
Școli aprox. 94 m
kindergarten
Gradinita numarul 12 Albinuta
Gradinițe aprox. 143 m
university
Universitatea Atenaeum
Universități aprox. 187 m
Recreere
park
Parcul Floreasca Cinema
Parcuri aprox. 77 m
sports-ground
Teren sportiv
Terenuri sport aprox. 493 m
supermarket
BILLA - B. Vacarescu
Supermarket aprox. 530 m
mall
"METROPLIS CENTER"
Mall aprox. 1273 m

Detalii despre preț și costuri

Prețul pe piață

Preț cerut: 2.699 €

Preț min. zonă 499 €
Preț max. zonă 1.500 €

i

Proprietate cu prețul cerut în afara intervalului mai multe...

Posibile explicații pentru faptul că prețul proprietății este peste cel maxim: imobil nou cu suprafață mare, are dotări și finisaje de lux.
Bine de știut: prețul unei proprietăți este influențat și de alte caracteristici, cum ar fi: vechime, localizare, vecinătăți, suprafață, compartimentare, amenajări, dotări, etc.

Proprietăți similare

Apartament cu 5 camere decomandat, mobilat în Floreasca
2.850 € / lună
București, Floreasca
5 camere
199 mp
Etaj 5
Apartament cu 4 camere, mobilat în Floreasca
2.700 € / lună
București, Floreasca
4 camere
182 mp
Etaj 2
Apartament cu 4 camere decomandat, mobilat în Floreasca
2.650 € + TVA / lună
București, Floreasca
4 camere
115 mp
Etaj 7 / 20

Detalii de contact

ARY & EVE IMOBILIARE

Florentina Dumitrascu

5.00(5 review-uri)

ARY & EVE IMOBILIARE
PRO

Abonează-te la newsletter să fii primul care primește cele mai noi recomandări de proprietăți și sfaturi de la experți.

CONTACT

Creează alertă

Salvează căutarea ca să primești pe email ultimele anunțuri publicate

Apartamente cu 2 camere de închiriat în zona Floreasca, Sector 1