Apartament penthouse cu 3 camere | terasa generoasa

1.950 € / lună

Herăstrău, București

Nr. cam.:
3
Sup. utilă:
129 mp
Etaj:
5 / 5
An constr.:
2005 (Finalizată)
  • • Locație aproximativă
  • • Vizionare prin apel video

Descriere apartament

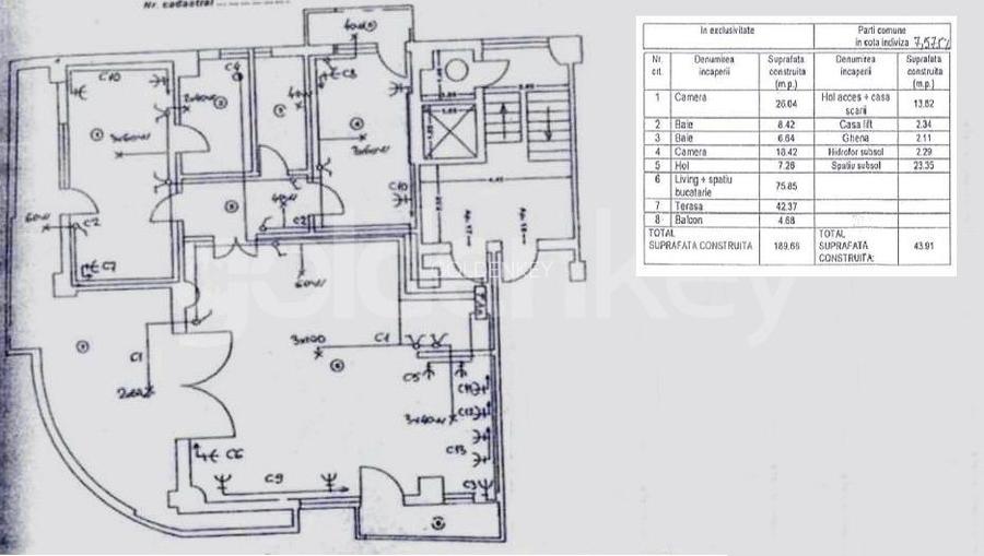
Situat in zona Herastrau, langa Satul Francez - Le Club, acest apartament penthouse cu 3 camere se afla la etajul 5 al unui imobil S+P+5 finalizat in 2005. Are o suprafata construita de 234mp dintre care 129mp utili si 40mp terasa. Este compus din living generos cu acces pe terasa si zona de dining, bucatarie deschisa si complet echipata si 2 dormitoare care impart o singura baie. Dispune de 2 locuri de parcare in fata imobilului. Apartamentul are finisaje de inalta calitate si a fost mobilat si utilat de catre un designer de interior.
Citește mai mult Citește mai puțin
Confort lux Decomandat Mobilat Mobilat 3 Balcoane / Terase / Logii Aer condiționat Calorifere Centrală proprie 2 Parcări Renovat

Detalii apartament

ID anunț: X1UR102C2 Copiat! 269432004 Copiat!
Actualizat în: 25 Februarie 2026
Suprafață construită: 234 mp
Nr. bucătării: 1
Nr. băi: 1
Structură rezistență: Beton
Tip imobil: Bloc de apartamente
Regim înălțime: S+P+5E

Utilități

Destinație
Rezidențial
Pereți
Faianță Vopsea lavabilă
Podele
Gresie Parchet
Ușă intrare
Metal
Uși interior
Lemn
Izolații termice
Exterior
Ferestre cu geam termopan
PVC
Contorizare
Apometre Contor gaz
Bucătărie
Mobilată Utilată
Electrocasnice
Aragaz Frigider Hotă Mașină de spălat Mașină spălat vase TV
Diverse
Sistem de alarmă Telecomandă poartă acces auto
Alte spații utile
WC Serviciu
Facilități imobil
Acoperiș Interfon Lift Videointerfon
Utilități
Curent Apă Canalizare CATV Gaze Telefon
Internet
Cablu Wireless
Servicii imobil
Pază Supraveghere video
Amenajare străzi
Iluminat stradal Mijloace de transport în comun Asfaltate
Comision
standard

Disponibilitate proprietate:

Imediat

Puncte de interes

Mijloace transport
bus-station
Carutasilor / Pasajul Aviatiei statie 301, 112
Stații autobuz aprox. 413 m
bus-station
statie Bd. Ficusului 205, 261, 335, N113
Stații autobuz aprox. 416 m
tram-station
Apicola
Stații tramvai aprox. 678 m
metro-station
Metrorex. Stația Aurel Vlaicu (M2)(1987)
Stații metrou aprox. 1229 m
Școală
kindergarten
Grădinița Mary Poppins
Gradinițe aprox. 216 m
school
Grupul Scolar "Viaceslav Harnaj"
Școli aprox. 531 m
kindergarten
Gradinita
Gradinițe aprox. 711 m
university
Școala Superioară de Aviație Civilă - S.S.Av.C.
Universități aprox. 1115 m
Recreere
park
Parc
Parcuri aprox. 193 m
supermarket
Mega Image
Supermarket aprox. 421 m
sports-ground
Teren sportiv
Terenuri sport aprox. 567 m
public-square
Piata Montreal
Piețe publice aprox. 1859 m

Detalii despre preț și costuri

Prețul pe piață

Preț cerut: 1.950 €

Preț min. zonă 1.000 €
Preț max. zonă 2.900 €

55% dintre proprietățile similare ca zonă și nr. camere au prețul cerut mai mare. mai multe...

Bine de știut: prețul unei proprietăți este influențat și de alte caracteristici, cum ar fi: vechime, localizare, vecinătăți, suprafață, compartimentare, amenajări, dotări, etc. mai puțin...

Proprietăți recomandate

Detalii de contact

GOLDENKEY

Alina Radulescu Senior Consultant

5.00(3 review-uri)

GOLDENKEY
PRO

Abonează-te la newsletter să fii primul care primește cele mai noi recomandări de proprietăți și sfaturi de la experți.

CONTACT

Creează alertă

Salvează căutarea ca să primești pe email ultimele anunțuri publicate

Apartamente cu 3 camere de închiriat în zona Herăstrău, Sector 1