Vedere panoramica lac | Penthouse modern cu 4 dormitoare, 4 bai

2.700 € / lună

Herăstrău, București

Nr. cam.:
5
Sup. utilă:
183 mp
Etaj:
5 / 7
An constr.:
2008 (Finalizată)
  • • Locație aproximativă

Descriere apartament

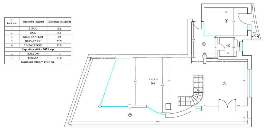
Cu o vedere superba catre parcul si lacul Herastrau, acest penthouse duplex dispus pe 2 nivele (5+6) beneficiaza de amplasament, luminozitate si finisaje interioare de buna calitate. Este foarte luminos datorita orietarii sud-vest. Apartamentul are o suprafata utila de 183mp si terase de 56mp, iar in garaj dispune de 1 loc de parcare si 1 boxa. La etajul 5 regasim o zona open space cu living, dining si bucatarie moderna si deschisa, acces pe terasa, birou cu usi glisante de sticla si baie cu cabina dus. La etajul 6 sunt 3 dormitoare fiecare cu baie proprie si dressing-uri incorporate. Apartamentul este mobilat modern si este pretabil pentru resedinta.
Citește mai mult Citește mai puțin
Confort lux Decomandat Mobilat Mobilat Lux Curte Aer condiționat Calorifere Centrală proprie 1 Parcare 1 Garaj Renovat

Detalii apartament

ID anunț: X1UR102NR Copiat! 275226391 Copiat!
Actualizat în: 09 Martie 2026
Suprafață construită: 250 mp
Nr. bucătării: 1
Nr. băi: 4
Structură rezistență: Beton
Tip imobil: Bloc de apartamente
Regim înălțime: S+P+7E
Nr. terase: 1

Utilități

Destinație
Rezidențial
Jaluzele
Orizontale
Pereți
Faianță Vopsea lavabilă
Podele
Gresie Parchet
Rulouri/Obloane
Aluminiu
Ușă intrare
Metal
Uși interior
Lemn
Izolații termice
Exterior Interior
Ferestre cu geam termopan
PVC
Contorizare
Apometre Contor căldură Contor gaz
Bucătărie
Mobilată Utilată
Electrocasnice
Aragaz Frigider Mașină de spălat Mașină spălat vase TV
Diverse
Jacuzzi Scară interioară Sistem de alarmă Telecomandă poartă garaj
Alte spații utile
WC Serviciu Terasă
Facilități imobil
Acoperiș Interfon Lift
Utilități
Curent Apă Canalizare CATV Gaze Telefon
Internet
Cablu
Servicii imobil
Pază Supraveghere video
Amenajare străzi
Iluminat stradal Mijloace de transport în comun Asfaltate
Comision
standard

Disponibilitate proprietate:

01/04/2026

Puncte de interes

Mijloace transport
bus-station
statie Horia Macelariu 205, 261, 335, N113
Stații autobuz aprox. 66 m
bus-station
statie Bd. Ficusului 205, 261, 335, N113
Stații autobuz aprox. 208 m
tram-station
Piata Baneasa
Stații tramvai aprox. 360 m
metro-station
Metrorex. Stația Aurel Vlaicu (M2)(1987)
Stații metrou aprox. 1799 m
Școală
school
Grupul Scolar "Viaceslav Harnaj"
Școli aprox. 122 m
kindergarten
Gradinita
Gradinițe aprox. 200 m
school
Gradinita nr.283
Școli aprox. 284 m
university
Școala Superioară de Aviație Civilă - S.S.Av.C.
Universități aprox. 541 m
Recreere
bar
Dow Class Bar And Restaurant
Bar aprox. 125 m
park
Parc
Parcuri aprox. 272 m
supermarket
Mega Image
Supermarket aprox. 332 m
sports-ground
Teren sportiv
Terenuri sport aprox. 628 m

Proprietăți similare

Apartament cu 3 camere decomandat, mobilat în Herăstrău
2.700 € / lună
București, Herăstrău
3 camere
125 mp
Etaj 5
Apartament cu 4 camere semidecomandat, mobilat în Herăstrău
2.550 € + TVA / lună
București, Herăstrău
4 camere
117 mp
Etaj 8
Apartament cu 3 camere decomandat în Herăstrău
2.500 € / lună
București, Herăstrău
3 camere
124 mp
Etaj 5

Detalii de contact

GOLDENKEY

Alina Radulescu Senior Consultant

5.00(3 review-uri)

GOLDENKEY
PRO

Abonează-te la newsletter să fii primul care primește cele mai noi recomandări de proprietăți și sfaturi de la experți.

CONTACT

Creează alertă

Salvează căutarea ca să primești pe email ultimele anunțuri publicate

Apartamente cu 4+ camere de închiriat în zona Herăstrău, Sector 1