Apartament tip duplex nou, finisaje premium, mobilat si loc de parcare in garaj

2.500 € + TVA / lună

Iancu Nicolae, București

Nr. cam.:
4
Sup. utilă:
165 mp
Etaj:
2 / 4
An constr.:
2016 (Finalizată)
  • • Locație aproximativă
  • • Vizionare prin apel video

Descriere apartament

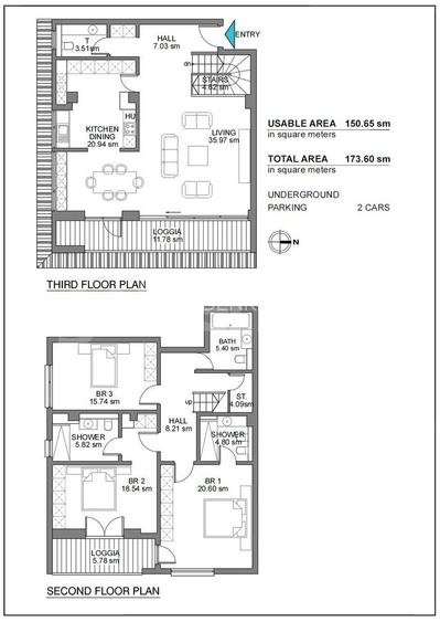
Apartament tip duplex situat la parterul unui ansamblu rezidential discret langa padurea Baneasa, impresioneaza prin calitatea finisajelor si spatiul bine impartit pe cele 2 etaje pe care se desfasoara, in imediata apropiere a supermarketului Lidl si a scolii internationale britanice. Apartamentul are o suprafata utila de 165 mp si 1 loc de parcare in garajul subteran. La etajul 3 avem zona de living cu loc de luata masa, bucatarie deschisa cu acces pe terasa si grup sanitar. La etajul 2 sunt 3 dormitoare matrimoniale fiecare cu baie proprie si 2 balcoane. Apartamentul se inchiriaza mobilat si utilat complet.
Citește mai mult Citește mai puțin
Confort lux Semidecomandat Mobilat Mobilat Lux 1 Balcon / Terasă / Logie Aer condiționat Calorifere Centrală imobil 1 Garaj

Detalii apartament

ID anunț: X1UR102NJ Copiat! 275191117 Copiat!
Actualizat în: 06 Martie 2026
Suprafață construită: 185 mp
Nr. bucătării: 1
Nr. băi: 4
Structură rezistență: Beton
Tip imobil: Bloc de apartamente
Regim înălțime: S+P+4E
Nr. terase: 1

Utilități

Destinație
Rezidențial
Jaluzele
Orizontale
Pereți
Faianță Vopsea lavabilă
Podele
Gresie Parchet
Ușă intrare
Metal
Uși interior
Lemn
Izolații termice
Exterior
Ferestre cu geam termopan
Aluminiu
Contorizare
Apometre Contor căldură Contor gaz
Bucătărie
Mobilată Utilată
Electrocasnice
Aragaz Frigider Hotă Mașină de spălat Mașină spălat vase TV
Diverse
Scară interioară Sistem de alarmă Telecomandă poartă garaj
Alte spații utile
WC Serviciu Terasă
Facilități imobil
Acoperiș Lift Videointerfon
Utilități
Curent Apă Canalizare CATV Gaze Telefon
Internet
Cablu
Amenajare străzi
Iluminat stradal Mijloace de transport în comun Asfaltate
Comision
standard

Disponibilitate proprietate:

10.01.2021

Puncte de interes

Mijloace transport
bus-station
Jolie Ville Baneasa
Stații autobuz aprox. 943 m
bus-station
Pipera Drumul Bisericii
Stații autobuz aprox. 1882 m
Școală
school
British School of Bucharest
Școli aprox. 564 m
school
Mark Twain International School
Școli aprox. 683 m
kindergarten
Kindergarden
Gradinițe aprox. 1136 m
kindergarten
Echilibria 1
Gradinițe aprox. 1315 m
Recreere
restaurant
Restaurant Tecadra
Restaurant aprox. 213 m
supermarket
Lidl Pipera
Supermarket aprox. 320 m
park
Loc de joaca
Parcuri aprox. 918 m
sports-ground
Teren sportiv
Terenuri sport aprox. 1991 m

Detalii despre preț și costuri

Prețul pe piață

Preț cerut: 2.500 €

Preț min. zonă 630 €
Preț max. zonă 4.200 €

55% dintre proprietățile similare ca zonă și nr. camere au prețul cerut mai mare. mai multe...

Bine de știut: prețul unei proprietăți este influențat și de alte caracteristici, cum ar fi: vechime, localizare, vecinătăți, suprafață, compartimentare, amenajări, dotări, etc. mai puțin...

Proprietăți recomandate

Detalii de contact

GOLDENKEY

Violeta Anghel Department Manager

4.81(7 review-uri)

GOLDENKEY
PRO

Abonează-te la newsletter să fii primul care primește cele mai noi recomandări de proprietăți și sfaturi de la experți.

CONTACT

Creează alertă

Salvează căutarea ca să primești pe email ultimele anunțuri publicate

Apartamente cu 4+ camere de închiriat în zona Iancu Nicolae, Sector 1