Apartament 3 Camere LUX Cotroceni De Inchiriat Mutare Imediata

2.200 € + TVA / lună

Cotroceni, București

Nr. cam.:
3
Sup. utilă:
90 mp
Etaj:
3 / 6
An constr.:
2024 (Finalizată)
  • • Locație exactă

Descriere apartament

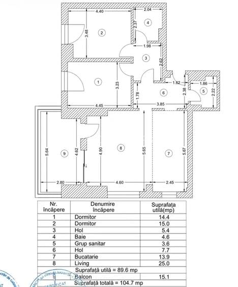
Apartament 3 camere LUX de închiriat în Cotroceni – Bloc nou 2024, primă închiriere, terasă 15 mp Vă prezentăm un apartament premium cu 3 camere, disponibil spre închiriere în Cotroceni, una dintre cele mai exclusiviste și căutate zone din București. Proprietatea este situată într-un bloc nou, finalizat în 2024, la prima închiriere, oferind un standard ridicat de confort, design și funcționalitate. Apartamentul are o suprafață utilă de 90 mp, la care se adaugă o terasă generoasă de 15 mp, fiind amplasat la etajul 3 din 6, într-un imobil modern cu lift. Design & amenajare Locuința se remarcă printr-un design elegant, contemporan, realizat în colaborare cu designer de interior, cu accent pe detalii, materiale premium și optimizarea spațiilor. Atmosfera este una luminoasă, aerisită și extrem de funcțională, ideală pentru un stil de viață urban, rafinat. Compartimentare & dotări Living spațios, luminos, cu acces direct pe terasă 2 dormitoare mari, amenajate modern, cu soluții inteligente de depozitare Bucătărie complet mobilată și utilată, cu electrocasnice de ultimă generație 2 băi finisate cu materiale premium Facilități premium Centrală proprie și încălzire prin pardoseală Aer condiționat în fiecare cameră Finisaje de lux: parchet triplu stratificat, uși interioare moderne Corpuri de iluminat de designer Terasă de 15 mp, ideală pentru relaxare, cu vedere către zona Cotroceni Detalii tehnice Suprafață utilă: 90 mp Terasă: 15 mp Compartimentare: semidecomandat Etaj: 3/6, cu lift An construcție: 2024 Disponibilitate: imediată Avantaje locație – Cotroceni Cartierul Cotroceni este apreciat pentru liniște, poziționare centrală și prestigiu. Apartamentul oferă acces rapid către: Parcurile Eroilor și Izvor Mijloace de transport în comun Restaurante, cafenele și clinici private Școli, universități și instituții medicale Preț 2.200 EUR / lună + TVA Pentru informații suplimentare și programarea unei vizionări: Cristian Alexe VAUNT ID: 107175
Citește mai mult Citește mai puțin
Confort lux Semidecomandat Mobilat Mobilat Lux 1 Balcon / Terasă / Logie Aer condiționat Centrală proprie Încălzire prin pardoseală

Detalii apartament

ID anunț: X7QH20023 Copiat! 274162085 Copiat!
Actualizat în: 05 Februarie 2026
Suprafață utilă totală: 90 mp
Suprafață construită: 108 mp
Nr. bucătării: 1
Nr. băi: 2
Structură rezistență: Beton
Tip imobil: Bloc de apartamente
Regim înălțime: P+6E

Utilități

Destinație
Rezidențial
Pereți
Vopsea lavabilă
Podele
Gresie
Ușă intrare
Parchet Metal
Izolații termice
Exterior
Ferestre cu geam termopan
Aluminiu Lemn
Contorizare
Apometre Contor gaz
Bucătărie
Utilată Mobilată
Electrocasnice
Fier de călcat Mașină de spălat Frigider Aragaz Hotă Mașină spălat vase Aspirator TV
Diverse
Senzor de fum
Alte spații utile
Terasă WC Serviciu
Facilități imobil
Interfon Lift
Utilități
Gaze CATV Curent Apă Canalizare
Internet
Fibră optică Cablu Wireless
Servicii imobil
Administrare Supraveghere video
Amenajare străzi
Iluminat stradal Mijloace de transport în comun Asfaltate

Certificat energetic:

Clasa energetică: A

Puncte de interes

Mijloace transport
bus-station
Statia Bd. B. P. Hasdeu, linia 136, N122
Stații autobuz aprox. 176 m
trolleybus-station
Statia Facultatea de Drept, linia 61,69,90,91
Stații troleibuz aprox. 371 m
metro-station
Metrorex. Statia Izvor (M1) , (M3).
Stații metrou aprox. 612 m
tram-station
Piata Regina Maria
Stații tramvai aprox. 1274 m
Școală
university
Facultatea de Medicina Veterinara (en)
Universități aprox. 146 m
university
Facultatea de medicina veterinara
Universități aprox. 149 m
kindergarten
Gradinita nr. 73
Gradinițe aprox. 439 m
school
Credis - Academia CISCO Credis (en)
Școli aprox. 489 m
Recreere
park
Parc
Parcuri aprox. 218 m
sports-ground
Teren sportiv
Terenuri sport aprox. 266 m
supermarket
Mega Image Elisabeta Non-Stop
Supermarket aprox. 720 m
hypermarket
Intrarea in caminele C si D din grozavesti
Hipermarket aprox. 1984 m

Detalii despre preț și costuri

Prețul pe piață

Preț cerut: 2.200 €

Preț min. zonă 500 €
Preț max. zonă 1.650 €

i

Proprietate cu prețul cerut în afara intervalului mai multe...

Posibile explicații pentru faptul că prețul proprietății este peste cel maxim: imobil nou cu suprafață mare, are dotări și finisaje de lux.
Bine de știut: prețul unei proprietăți este influențat și de alte caracteristici, cum ar fi: vechime, localizare, vecinătăți, suprafață, compartimentare, amenajări, dotări, etc.

Proprietăți recomandate

Detalii de contact

R&D ADVISERS

Cristian Alexe Project Manager

4.93(5 review-uri)

R&D ADVISERS
PRO

Abonează-te la newsletter să fii primul care primește cele mai noi recomandări de proprietăți și sfaturi de la experți.

CONTACT

Creează alertă

Salvează căutarea ca să primești pe email ultimele anunțuri publicate

Apartamente cu 3 camere de închiriat în zona Cotroceni, Sector 5