9

AMBIANCE RESIDENCE 2 PROPRIETAR Vedere libera Terasa de 12 m PARCARE SUBTERANA

700 € / lună

Voluntari, Județul Ilfov

Nr. cam.:
2
Sup. utilă:
62 mp
Etaj:
3 / 7
An constr.:
2024 (Finalizată)
  • • Comision 0%
  • • Locație exactă

Descriere apartament

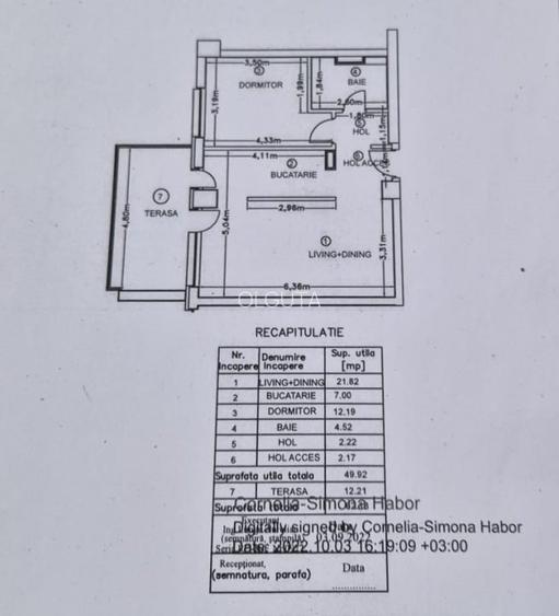
Apartamentul este situat intr-un complex rezidential exclusivist din zona Aviatiei-Pipera si anume AMBIANCE RESIDENCE 2. Cu o amplasare de exceptie in Nordul capitalei, acest ansamblu a fost finalizat anul acesta, cu caracteristici unice imbinate pentru un stil de viata complet, confortabil si activ! Apartamentul este situat la etajul 3, are o suprafata utila totala de 62 mp, are orientare spre Vest, fiind compus din living cu bucatarie open space, un dormitor, baie si terasa de 12 mp. Se inchiriaza pe termen lung si foarte lung.Este disponibil incepand cu 1 februarie Se inchiriaza doar cu contract la primarie. DOTARI: - Centrala termica Ariston individuala cu gaz - Aer conditionat - Masina de spalat vase - Masina de spalat rufe -Aspirator - Videointerfon - Utilitati ,,ready to use" (racorduri individuale la gaze, curent electric, apa curenta) - Mobilat complet - 2 Ascensoare - Tavan barisol - Incalzire in pardoseala - loc de parcare situat la subteranul imobilului la -1 chiar in fata liftului.
Citește mai mult Citește mai puțin
Confort lux Decomandat

Detalii apartament

ID anunț: XV0Q003P2 Copiat! 204109740 Copiat!
Actualizat în: 19 Ianuarie 2026
Nr. băi: 1
Tip imobil: Bloc de apartamente
Regim înălțime: P+7E

Utilități

Comision
0%

Puncte de interes

Mijloace transport
bus-station
Capat C.F.R Constanta linii : 112,135,445
Stații autobuz aprox. 518 m
tram-station
Rocin
Stații tramvai aprox. 994 m
metro-station
Pipera (M2)
Stații metrou aprox. 1166 m
airport
Aeroportul Internațional Băneasa (Aurel Vlaicu) - LRBS (BBU)
Aeroporturi aprox. 1721 m
Școală
kindergarten
Gradinita Zece
Gradinițe aprox. 1329 m
school
Colegiul Tehnic Edmond Nicolau, fostul Electronica
Școli aprox. 1509 m
school
Grupul Scolar Industrial Constantin Brancusi (en)
Școli aprox. 1609 m
kindergarten
Echilibria 1
Gradinițe aprox. 1933 m
Recreere
restaurant
Q's Inn
Restaurant aprox. 530 m
park
spatiu verde
Parcuri aprox. 594 m
supermarket
Pipera Plaza
Supermarket aprox. 831 m
sports-ground
Teren sportiv
Terenuri sport aprox. 1298 m

Detalii despre preț și costuri

Prețul pe piață

Preț cerut: 700 €

Preț min. zonă 450 €
Preț max. zonă 1.000 €

55% dintre proprietățile similare ca zonă și nr. camere au prețul cerut mai mare. mai multe...

Bine de știut: prețul unei proprietăți este influențat și de alte caracteristici, cum ar fi: vechime, localizare, vecinătăți, suprafață, compartimentare, amenajări, dotări, etc. mai puțin...

Proprietăți recomandate

Detalii de contact

Abonează-te la newsletter să fii primul care primește cele mai noi recomandări de proprietăți și sfaturi de la experți.

CONTACT

Creează alertă

Salvează căutarea ca să primești pe email ultimele anunțuri publicate

Apartamente cu 2 camere de închiriat în Voluntari, Județul Ilfov