Apartament cu 2 camere in Bellevue Residence

265.000 €

Drumul Poienii, Brașov

Nr. cam.:
2
Sup. utilă:
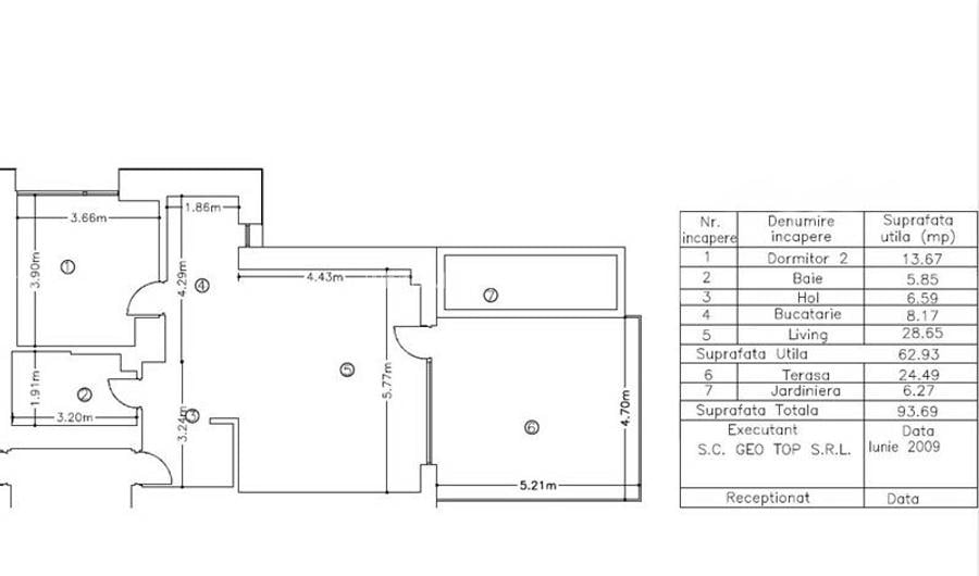
62,93 mp
Etaj:
2 / 5
An constr.:
2009 (Finalizată)
  • • Exclusivitate
  • • Locație exactă
  • • Vizionare prin apel video

Descriere apartament

Va propunem inspre achizitie acest apartament cu doua camere situat in complexul Bellevue Residence, intr-o zona unica si foarte linistita in proximitatea Centrului Istoric. Pretul afisat include un loc de parcare incalzit, in garaj, si o boxa pentru depozitare, situata in subsolul cladirii. ***Important de mentionat, apartamentul este inchiriat in acest moment. Vizionarile se pot organiza cu o programare prealabila, anunate cu cel putin 48H.*** Bellevue Residence este cunoscut nu doar pentru finisajele sale calitative, stilul de viata premium si ambianta speciala, dar si pentru proximitatea fata de Centrul Istoric al Brasovului (departe insa de aglomeratia specifica), privelistea unica, verdeata si aer proaspat, combinand astfel intr-un mod armonios stilul arhitectural modern cu natura inconjuratoare. Apartamentul propus spre vanzare este compus din doua camere, bucatarie open-space, baie, la care se adauga o terasa de 30,76 metri patrati. Apartamentul ofera o vedere extraordinara asupra Centrului Istoric al orasului Brasov. De asemenea, este complet mobilat si utilat cu tot ceea ce este necesar pentru a oferi un camin confortabil viitorilor sai proprietari, existand si suficient spatiu pentru personalizare in functie de necesitati. Fata de fotografii, scaunele din living sunt acum beige. Mai mult, apartamentul este dotat cu video interfon color, sistem de alarma cu monitorizare, incalzire in pardoseala si incalzire electrica in baie. Dispune de suficiente spatii pentru depozitare si a fost amenajat cu multa implicare din partea proprietarului, pentru a isi intampina viitorii locatari. In ceea ce priveste acest complex rezidential, locatarii au posibilitatea de a accesa dependintele comune - spalatorie, uscatorie, loc de joaca pentru copii si, la cerere, se pot bucura si de serviciile optionale oferite de personalul Bellevue: curatenie, gradinarit, intretinere tehnica. Apartamentul este situat intr-o zona deosebita, fiind proprietatea ideala pentru acele persoane care doresc sa locuiasca intr-un loc curat, sigur, stilat si unic. Potrivit si ca investitie. Proprietar persoana juridica, pentru contract cu alta persoana juridica, se adauga TVA. Pentru detalii suplimentare sau vizionari, va rog nu ezitati sa ma contactati la numarul de telefon , sau prin e-mail, la adresa . Colegii mei si cu mine va vom ajuta cu mare placere.
Citește mai mult Citește mai puțin
Confort 1 Decomandat Mobilat Centrală imobil Încălzire prin pardoseală Beci 1 Parcare

Detalii apartament

ID anunț: XC4S101DT Copiat! 275273268 Copiat!
Actualizat în: 13 Martie 2026
Suprafață utilă totală: 62.93 mp
Suprafață construită: 93.69 mp
Nr. bucătării: 1
Nr. băi: 1
Structură rezistență: Altele
Tip imobil: Bloc de apartamente
Regim înălțime: P+5E

Utilități

Destinație
Birouri
Jaluzele
Orizontale
Pereți
Vopsea lavabilă
Rulouri/Obloane
Lemn
Bucătărie
Utilată Mobilată
Electrocasnice
Aragaz Hotă Frigider TV Hotă Mașină de spălat
Diverse
Telecomandă poartă garaj
Alte spații utile
Terasă
Facilități imobil
Lift
Utilități
Apă Curent Gaze Canalizare
Internet
Fibră optică
Amenajare străzi
Asfaltate
Comision
4%

Vecinătăți:

Restaurant/pub, Central, Hotel, Autobuz

Puncte de interes

Mijloace transport
bus-station
Facultativa
Stații autobuz aprox. 300 m
bus-station
Statie Facultativa, linia 20
Stații autobuz aprox. 316 m
bus-station
Facultativa
Stații autobuz aprox. 327 m
bus-station
Biserica Neagra
Stații autobuz aprox. 480 m
Școală
school
Colegiul National Aprily Lajos
Școli aprox. 284 m
school
Liceul Aprily Lajos
Școli aprox. 308 m
university
Facultatea de Silvicultura
Universități aprox. 535 m
kindergarten
Gradinita cu program normal nr. 3 (fosta nr. 1)
Gradinițe aprox. 561 m
Recreere
park
Padure
Parcuri aprox. 149 m
sports-ground
Teren sportiv
Terenuri sport aprox. 233 m
supermarket
Sergiana
Supermarket aprox. 410 m
mall
Magazinul Star
Mall aprox. 1059 m

Detalii despre preț și costuri

Prețul pe piață

Preț cerut: 265.000 €

Preț min. zonă 69.900 €
Preț max. zonă 170.000 €

i

Proprietate cu prețul cerut în afara intervalului mai multe...

Posibile explicații pentru faptul că prețul proprietății este peste cel maxim: imobil nou cu suprafață mare, are dotări și finisaje de lux.
Bine de știut: prețul unei proprietăți este influențat și de alte caracteristici, cum ar fi: vechime, localizare, vecinătăți, suprafață, compartimentare, amenajări, dotări, etc.

Costuri cu achiziția

Fără credit
66.002 RON
Credit ipotecar
68.239 RON
Noua casă
1.490 RON+ taxe notariale

i

Costuri adiționale mai puțin știute la achiziție: taxe notariale, comisioane etc.

Proprietăți similare

Apartament în Brașovul Vechi
249.000 €
Brașov, Brașovul Vechi
Apartament cu 3 camere decomandat, mobilat în 13 Decembrie
280.000 €
Brașov, 13 Decembrie
3 camere
78 mp
Etaj 6 / 9
Apartament cu 3 camere decomandat în Brașovul Vechi
275.000 € + TVA
Brașov, Brașovul Vechi
3 camere
77,6 mp
Etaj 1 / 2

Detalii de contact

White Mountain Property

Anne Liese Natu Senior Property Consultant Brasov

White Mountain Property
PRO

Abonează-te la newsletter să fii primul care primește cele mai noi recomandări de proprietăți și sfaturi de la experți.

CONTACT

Creează alertă

Salvează căutarea ca să primești pe email ultimele anunțuri publicate

Apartamente cu 2 camere de vânzare în zona Drumul Poienii, Brașov