Suprafata Generoasa I Zona Gemenii

134.300 €

Gemenii, Brașov

Nr. cam.:
3
Sup. utilă:
71 mp
Etaj:
2
An constr.:
1982
  • • Locație aproximativă

Descriere apartament

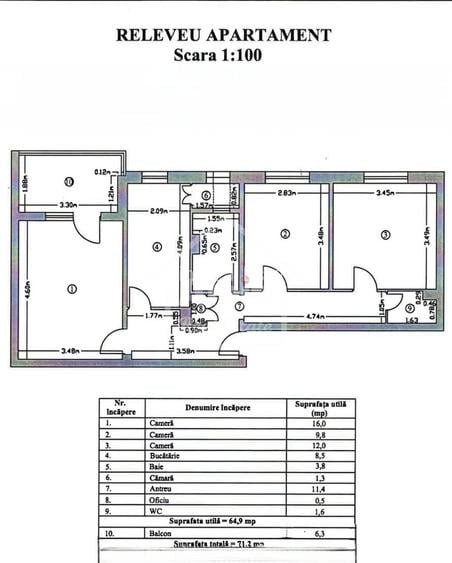
ALPIN REAL ESTATE Descopera aceasta proprietate ideala pentru familie sau investitie, un apartament cu 3 camere, situata in zona Gemenii I Florilor. Proprietatea propusa este amplasata intr-un bloc P+4. COMPARTIMENTARE - Holul de acces; - Bucătărie luminoasa dotata cu camara pentru alimente; - Living ul cu acces la balcon, luminos si insorit; - Dormitor matrimonial cu acces din hol; - Dormitor copii cu acces din hol; - Baie de serviciu; - Baie cu suprafata generoasa dotata cu dus wlk in si aerisire naturala; - Structura decomandata liniara; - Bloc reabilitat termic; DOTARI - Suprafata 65mp + 6mp balcon - Centrală termică cu calorifere - Etaj intermediar 2/4 - Finisaje clasice - Loc de parcare comcesionat - Boxa depozitare la subsol CONDITII FINANCIARE - Pret imobil 134.300 euro - Comision 2% + tva Avem cheile proprietatii pentru vizionare! Disponibilitate imediata! Proprietatea se tranzactioneaza mobilata si utilata conform acestei prezentari. Se accepta achizitia prin intermediul unui credit bancar. Mircea Danciu Consultant Imobiliar Tel:
Citește mai mult Citește mai puțin
Confort 1 Decomandat Mobilat 1 Balcon / Terasă / Logie Calorifere Centrală proprie

Detalii apartament

ID anunț: XFVO1001C Copiat! 272686497 Copiat!
Actualizat în: 12 Martie 2026
Nr. bucătării: 1
Nr. băi: 2
Structură rezistență: Beton
Tip imobil: Bloc de apartamente
Regim înălțime: P+4E

Utilități

Pereți
Faianță Vopsea lavabilă
Podele
Gresie Parchet
Ușă intrare
Metal
Uși interior
Celulare
Ferestre cu geam termopan
PVC
Contorizare
Apometre Contor căldură Contor gaz
Bucătărie
Mobilată Utilată
Electrocasnice
Aragaz Frigider Hotă Mașină de spălat
Alte spații utile
Debara WC Serviciu
Facilități imobil
Interfon
Utilități
Curent Apă Canalizare CATV Gaze Telefon
Internet
Cablu
Amenajare străzi
Iluminat stradal Mijloace de transport în comun Asfaltate
Comision
standard

Disponibilitate proprietate:

Imediat

Puncte de interes

Mijloace transport
bus-station
statia "Hidro B", linia 3,7,5barat,30`,10,32
Stații autobuz aprox. 45 m
bus-station
Hidro B
Stații autobuz aprox. 48 m
train-station
Gara Brasov Călători CFR
Stații tren aprox. 1133 m
train-station
Statia CFR Brasov
Stații tren aprox. 1167 m
Școală
school
Scoala Jules Verne
Școli aprox. 107 m
kindergarten
Gradinita cu program normal nr. 18 (fosta nr. 23)
Gradinițe aprox. 128 m
school
Liceul Dr. Ioan Mesota
Școli aprox. 498 m
university
Universitatea Europeana Dragan
Universități aprox. 634 m
Recreere
park
Parc
Parcuri aprox. 112 m
supermarket
Rapid Toamnei
Supermarket aprox. 199 m
sports-ground
Teren sportiv
Terenuri sport aprox. 949 m
mall
Magazinul Star
Mall aprox. 1501 m

Detalii despre preț și costuri

Prețul pe piață

Preț cerut: 134.300 €

Preț min. zonă 88.500 €
Preț max. zonă 200.000 €

62% dintre proprietățile similare ca zonă și nr. camere au prețul cerut mai mare. mai multe...

Bine de știut: prețul unei proprietăți este influențat și de alte caracteristici, cum ar fi: vechime, localizare, vecinătăți, suprafață, compartimentare, amenajări, dotări, etc. mai puțin...

Costuri cu achiziția

Fără credit
7.512 RON
Credit ipotecar
9.195 RON
Noua casă
824 RON+ taxe notariale

i

Costuri adiționale mai puțin știute la achiziție: taxe notariale, comisioane etc.

Proprietăți recomandate

Detalii de contact

Alpin Real Estate

Mircea Danciu Consultant Imobiliar

Alpin Real Estate
PRO

Abonează-te la newsletter să fii primul care primește cele mai noi recomandări de proprietăți și sfaturi de la experți.

CONTACT

Creează alertă

Salvează căutarea ca să primești pe email ultimele anunțuri publicate

Apartamente cu 3 camere de vânzare în zona Gemenii, Brașov