Apartament cu 2 camere | Noua | 74 mp Utili

188.200 € + TVA

Noua, Brașov

Nr. cam.:
2
Sup. utilă:
73,46 mp
Etaj:
5 / 8
An constr.:
2025 (În construcție)
  • • Locație exactă

Descriere apartament

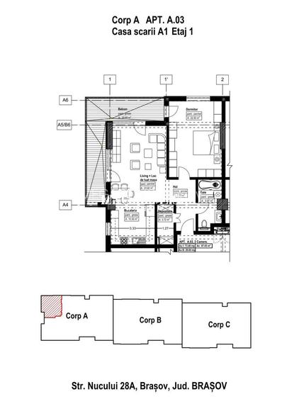
Apartament cu 2 camere de vânzare – Brașov, Zona Noua/Dârste Detalii apartament: - Suprafață utilă: 73.46 mp - Suprafață construită: 94.11 mp - Etaj: 5 din 8 Compartimentare: semidecomandat - Hol – 7,05 mp -Baie – 5,97 mp - Bucătărie – 10,30 mp - Living – 23,92 mp - Dormitor – 22,50 mp - Balcon – 20,65 mp - Depozitare - 3,72 mp Termen de predare: Decembrie 2026 Preț: 188.200 € + 21% TVA Loc de parcare subteran: - Preț: 15.000 € + TVA Modalități de plată: - Plata integrală, cu avans de 70% și diferența la intabulare - Plata în 3 tranșe: avans de 30%, 40% la mijlocul construcției și 30% la predare - Plata prin credit bancar, cu avans de 30% - Modalitate de plată personalizată, stabilită în funcție de avans Dotări și facilități: - Parcări subterane și supraterane - Spații de depozitare la subsol și pe etaje - Acces securizat cu supraveghere video și videointerfon Smart Cloud - Iluminat inteligent în spațiile comune - Locuri de joacă și spații de relaxare, suport pentru biciclete - Accesibilitate maximă: rampe și acces fără bariere Pentru mai multe informații și programări, contactați-ne.
Citește mai mult Citește mai puțin
Confort lux Semidecomandat 1 Balcon / Terasă / Logie Grădină Curte Curte comună

Detalii apartament

ID anunț: XF4U100K3 Copiat! 269224784 Copiat!
Actualizat în: 27 Decembrie 2025
Suprafață construită: 94.11 mp
Nr. bucătării: 1
Nr. băi: 1
Structură rezistență: Cărămidă
Tip imobil: Bloc de apartamente
Regim înălțime: S+P+8E

Utilități

Destinație
Rezidențial
Izolații termice
Exterior Interior
Alte spații utile
Debara
Facilități imobil
Lift
Utilități
Curent Apă Canalizare CATV Gaze Telefon
Internet
Cablu
Amenajare străzi
Iluminat stradal Mijloace de transport în comun Asfaltate
Comision
standard

Disponibilitate proprietate:

Imediat

Puncte de interes

Mijloace transport
bus-station
Metro
Stații autobuz aprox. 229 m
bus-station
Statia Metro, liniile 17, 17 barat, 35, 21
Stații autobuz aprox. 307 m
bus-station
Aurora
Stații autobuz aprox. 396 m
train-station
Brasov Darste
Stații tren aprox. 683 m
Școală
kindergarten
Gradinita cu program normal nr. 21 SG (fosta nr. 68)
Gradinițe aprox. 431 m
kindergarten
Gradinita Cetatea Prichindeilor
Gradinițe aprox. 575 m
school
Scoala generala Nr 29
Școli aprox. 698 m
school
Scoala generala nr 21
Școli aprox. 791 m
Recreere
park
rond
Parcuri aprox. 321 m
supermarket
Metro
Supermarket aprox. 488 m
bar
la piru
Bar aprox. 572 m
sports-ground
Teren sportiv
Terenuri sport aprox. 651 m

Detalii despre preț și costuri

Prețul pe piață

Preț cerut: 188.200 €

Preț min. zonă 66.500 €
Preț max. zonă 155.000 €

i

Proprietate cu prețul cerut în afara intervalului mai multe...

Posibile explicații pentru faptul că prețul proprietății este peste cel maxim: imobil nou cu suprafață mare, are dotări și finisaje de lux.
Bine de știut: prețul unei proprietăți este influențat și de alte caracteristici, cum ar fi: vechime, localizare, vecinătăți, suprafață, compartimentare, amenajări, dotări, etc.

Costuri cu achiziția

Fără credit
10.717 RON
Credit ipotecar
12.796 RON
Noua casă
1.300 RON+ taxe notariale

i

Costuri adiționale mai puțin știute la achiziție: taxe notariale, comisioane etc.

Proprietăți recomandate

Detalii de contact

MEGAPOLIS Brasov

Liviu Bizdiga Real Estate Agent

MEGAPOLIS Brasov
PRO

Abonează-te la newsletter să fii primul care primește cele mai noi recomandări de proprietăți și sfaturi de la experți.

CONTACT

Creează alertă

Salvează căutarea ca să primești pe email ultimele anunțuri publicate

Apartamente cu 2 camere de vânzare în zona Noua, Brașov