Va propunem spre vanzare un apartament 5 camere semidecomandat/spatiu de birou pe Calea Dorobantilor nr 55, colt cu strada Petofi Sandor.
Proprietatea este situata la mansarda unei cladiri cu 2 etaje avand invelitoarea acoperisul refacuta integral.
Orientarea apartamentului este est-sud-vestica, ceea ce ofera lumina naturala pe tot parcursul zilei, totodata este aerisit.
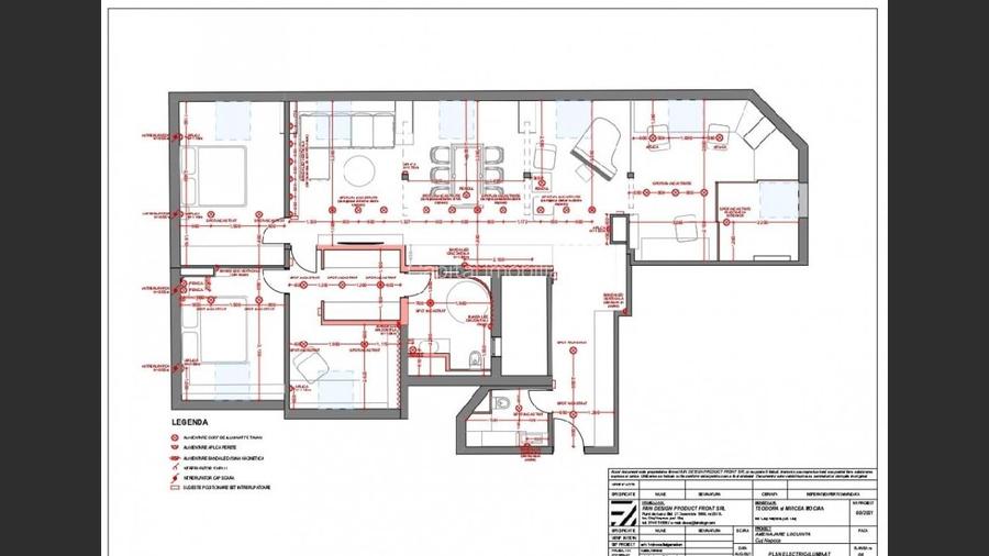
Suprafata utila este de 177 mp alcatuit din: camera de zi spatioasa cu bucatarie si loc ce servit masa, 3 dormitoare(intru-un dormitor este si o zona cu aparat de fitness), birou, dressing, baie cu geam, wc de serviciu si hol cu multe spatii de depozitare.
Pentru confortul termic apartamentul detine centrala termica proprie cu incalzire prin calorifere, este izolat termic in interior si 5 aparate de aer conditionat.
Pentru finisarea si mobilarea apartamentului s-a lucrat cu un arhitect pentru desing interior.
Apartamentul a fost renovat in totalitate in anul 2021 avand instalatia electrica refacuta integral, instalatiile sanitare...
Podeaua este finisat cu neocement decorativ, parchet, gresie si faianta moderna, geamuri de tip velux, usile interioare sunt marca Filomuro din mdf, usa de intrare metalica,
Toata mobila din apartament este facuta la comanda. Bucataria este din mdf, este utilata cu cuptor electric, plita electrica, masina de spalat vase, combina frigorifica si un frigider pentru vinuri.
Masa din camera de zi e bifunctionala in sensul in care daca ridicam blaturile este o masa de biliard.
La etajul 1 al cladirii este o terasa generoasa ca si spatiu comun.
Se poate parca in curtea cladirii(nefiind un loc de parcare garantat).
Pentru detalii suplimentare privind aceasta oferta si vizionare, va stau la dispozitie!
Citește mai mult
Citește mai puțin
Semidecomandat
Mobilat Lux
Curte comună
Calorifere
Centrală proprie
Beci
Renovat
Sediul central - Timișoara
Bulevardul Victor Babeș nr. 2, 300230, Timișoara, România
Tel: +40.374.40.44.98 / Fax: +40.256.401.179
Email: suport@imobiliare.ro
Luni - Vineri 08:00 - 20:00
Punct de lucru - București: Iride Business Park, Bld. Dimitrie
Pompeiu 9-9A, Clădirea B2B,
020335, Sector 2, București, România
CONTACT
Sediul central - Timișoara
Bulevardul Victor Babeș nr. 2, 300230, Timișoara, România
Tel: +40.374.40.44.98 / Fax: +40.256.401.179
Email: suport@imobiliare.ro
Luni - Vineri 08:00 - 20:00
Punct de lucru - București: Iride Business Park, Bld. Dimitrie
Pompeiu 9-9A, Clădirea B2B,
020335, Sector 2, București, România
Faculty of Theatre & Television, Babes-Bolyai University (en)
aprox.
515 m
Academia de Muzică "Gheorghe Dima"
aprox.
529 m
Facultatea de Studii Europene
aprox.
537 m
Academia de Muzica Gheorghe Dima
aprox.
542 m
Faculty of European Studies, Babes-Bolyai University (en)
aprox.
542 m
facultatea de matematica si informatica si facultatea de fizica
aprox.
568 m
Universitatea Babes-Bolyai
aprox.
593 m
Centrul Cultural German, Centrul Cultural Italian, UBB, Gradinita UBB
aprox.
617 m
Facultatea de Geologie.
aprox.
621 m
Facultatea de Drept (UBB)
aprox.
682 m
Liceul de Coregrafie si Arta Dramatica Octavian Stroia
aprox.
139 m
Centrul Școlar pentru Educație Incluzivă ( fosta Școala Specială nr. 1)
aprox.
158 m
Colegiul National George Cosbuc
aprox.
165 m
Liceul Teoretic Gheorghe Sincai
aprox.
248 m
Liceul Teoretic "Gheorghe Sincai"
aprox.
258 m
Kolozsvari Reformatus Gimnazium (hu)
aprox.
335 m
Liceul Teologic Reformat
aprox.
354 m
Liceul Teoretic Apaczai Csere Janos
aprox.
367 m
European College Foundation (en)
aprox.
395 m
Colegiul național "Emil Racoviță"
aprox.
397 m
Colegiul National Emil Racovita
aprox.
403 m
Liceul Teoretic Apaczai Csere Janos
aprox.
495 m
Liceul de Coregrafie și Artă Dramatică Octavian St roia
aprox.
516 m
Academia de Muzica Gheorghe Dima
aprox.
529 m
Liceul de Informatică Tiberiu Popoviciu
aprox.
612 m
Grăd.Albă ca Zăpada str.1 corp C
aprox.
300 m
Grăd. Poenița
aprox.
345 m
Gradinita Tanadarica
aprox.
410 m
Grăd.Universității Babeș< Bolyai corp B
aprox.
471 m
Grăd.Universității Babeș Bolyai
aprox.
536 m
Gradinita UBB
aprox.
611 m
Grăd.Mămăruța str. 1
aprox.
729 m
Kinderland
aprox.
759 m
Grăd.Universității Babeș< Bolyai
aprox.
763 m
Gradinita Unitariana
aprox.
790 m
Alba ca zapada
aprox.
882 m
Grăd.Albă ca Zăpada str. 1 corp A+B
aprox.
888 m
Grăd Lumea copiilor corp A+B
aprox.
919 m
Grădinița Albă CA Zăpada NR. 9
aprox.
928 m
Grăd.Dumbrăvioara, corp B, Locația Năsăud
aprox.
938 m
Carrefour Express
aprox.
373 m
Minimarket
aprox.
683 m
Profi
aprox.
819 m
Magazin Mixt
aprox.
832 m
Sora Shopping Center
aprox.
855 m
Carrefour Market
aprox.
936 m
Magazin Alimentar
aprox.
990 m
Billa
aprox.
1015 m
Central
aprox.
1017 m
Lidl
aprox.
1102 m
Koncert
aprox.
1113 m
Sigma Shopping Center
aprox.
1119 m
Unicarm
aprox.
1206 m
Complex Comercial Hermes
aprox.
1224 m
Profi
aprox.
1358 m
Parcare
aprox.
205 m
Parcare
aprox.
220 m
Parcare
aprox.
245 m
Parcare
aprox.
418 m
Parcare
aprox.
492 m
Parcare
aprox.
558 m
Parcare cu plata
aprox.
575 m
Parcare
aprox.
695 m
Parcare
aprox.
762 m
Parcare
aprox.
770 m
Parcare privata
aprox.
775 m
Parcare privata
aprox.
781 m
Parcare
aprox.
799 m
Parcare
aprox.
862 m
Parcare privata
aprox.
872 m
Parc
aprox.
158 m
Parc
aprox.
278 m
Piata Stefan cel Mare
aprox.
357 m
Parc
aprox.
369 m
Parc
aprox.
389 m
Parc
aprox.
448 m
Parc
aprox.
458 m
Parc
aprox.
513 m
Parc
aprox.
516 m
Parc
aprox.
518 m
Piata "Avram Iancu"
aprox.
632 m
Iorga colt cu amos f. (en)
aprox.
660 m
Parcul Iorga
aprox.
699 m
Parcul Iorga
aprox.
699 m
p-ta Ion Agarbiceanu
aprox.
763 m
Teren sportiv
aprox.
265 m
Teren sportiv
aprox.
290 m
Teren sportiv
aprox.
336 m
Teren sportiv
aprox.
368 m
Palatul Copiilor - Tennis court
aprox.
779 m
Teren sportiv
aprox.
822 m
Teren sportiv
aprox.
835 m
Teren sportiv
aprox.
836 m
Teren sportiv
aprox.
967 m
Teren sportiv
aprox.
1372 m
Teren sportiv
aprox.
1388 m
Teren sportiv
aprox.
1394 m
Teren sportiv
aprox.
1449 m
Teren sportiv
aprox.
1485 m
Teren sportiv
aprox.
1540 m
Piața "Lucian Blaga" (fosta Păcii)
aprox.
969 m
Piata Mihai Viteazul
aprox.
1150 m
Eco Farmacia
aprox.
192 m
Dona
aprox.
259 m
Farmacia
aprox.
512 m
Farmacia Richter
aprox.
517 m
Farmacia Remedium
aprox.
614 m
Farmacia Remedium
aprox.
670 m
Sensi blu Pharmacy
aprox.
681 m
Infofarm
aprox.
789 m
Farmacia Kamill
aprox.
798 m
Terrafarm
aprox.
828 m
Farmacia Richter
aprox.
869 m
Casa Bio
aprox.
881 m
Farmadex
aprox.
889 m
Coral
aprox.
899 m
Donna
aprox.
938 m
Policlinica pentru Sportivi
aprox.
208 m
STOMA HD - Cabinet Stomatologic - Dr. Doru Hadarean (en)
aprox.
355 m
Centrul medical gastroenterologie si hepatologie
aprox.
606 m
Centrul Medical de Gastroenterologie, Hepatologie și Endoscopie Digestivă (en)
aprox.
625 m
Spitalul Clinic de Ortopedie
aprox.
726 m
Spitalul de Ortopedie
aprox.
730 m
Policlinica de Ginecologie Gynia
aprox.
775 m
Medicover Cluj
aprox.
854 m
Spitalul CFR
aprox.
888 m
Institutul Regional de gastroenterologie si hepatologie
aprox.
910 m
Spitalul Universitar C.F., Cluj
aprox.
912 m
Spitalul Ginecologic Stanca
aprox.
923 m
Institutul Oncologic Prof. Dr. Ion Chiricuta
aprox.
945 m
Institutul Oncologic "Prof. Dr. Ion Chiricuță"
aprox.
949 m
Regina Maria (Policlinica Muzeului)
aprox.
968 m
La Perne
aprox.
18 m
Chelsea Cigar Lounge
aprox.
228 m
Il caffe
aprox.
293 m
Lady Cat
aprox.
340 m
Crazy Cafe
aprox.
385 m
Sanko Cafe
aprox.
409 m
Opera Food & Cafe
aprox.
468 m
Narcoffee
aprox.
542 m
Snack & Coffe
aprox.
587 m
Tucano Coffee
aprox.
606 m
Irish Embassy
aprox.
625 m
Olivo Caffe & Bistro
aprox.
642 m
Phil's
aprox.
660 m
Enigma Cafe
aprox.
667 m
N8 Coffee & Social Affairs
aprox.
683 m
Adi's Steakhouse
aprox.
162 m
Restaurant Shanghai
aprox.
197 m
Restaurant Shanghai
aprox.
199 m
El Toro Steakhouse
aprox.
199 m
Restaurant Avocado
aprox.
226 m
Bistro Ancuța
aprox.
261 m
Gente
aprox.
292 m
Polo
aprox.
292 m
Bolero
aprox.
304 m
Trattoria Pineta
aprox.
309 m
Bolero
aprox.
317 m
Sandany
aprox.
380 m
Opera
aprox.
468 m
Nomad Gastro Pub
aprox.
469 m
Restaurant Casei Universitarilor-'Piramida'
aprox.
484 m
Bistro
aprox.
267 m
Crama Borissza
aprox.
616 m
Submarine
aprox.
660 m
O'Beer Irish Pub
aprox.
699 m
The Jack
aprox.
768 m
Che Guevara
aprox.
771 m
La Tevi
aprox.
783 m
Spatiu
aprox.
785 m
Makeba
aprox.
862 m
Old Schepherd
aprox.
921 m
Bermuda's Pub
aprox.
923 m
Buricu' Targului
aprox.
964 m
Social Club P. Howard
aprox.
1026 m
Klausen
aprox.
1033 m
BARLAMUC
aprox.
1050 m
Ancuta Comimpex
aprox.
270 m
Joben Bistro
aprox.
379 m
Milenium Bar
aprox.
591 m
La Movida
aprox.
636 m
Toni's Pub
aprox.
779 m
Bulgakov Cathouse
aprox.
818 m
Ema
aprox.
836 m
Moonshine
aprox.
856 m
Club Litoral
aprox.
860 m
Griff Jazz & Blues
aprox.
879 m
Tangaj
aprox.
894 m
Seasons City Cafe
aprox.
912 m
Junkyard
aprox.
929 m
SHTO College Bar
aprox.
963 m
Hemingway
aprox.
969 m
Procredit Bank
aprox.
134 m
Banca Transilvania
aprox.
148 m
Banca Comerciala Carpatica
aprox.
176 m
BRD
aprox.
198 m
Intesa Sanpaolo Bank
aprox.
199 m
OTP Bank
aprox.
216 m
Raiffeisen Bank
aprox.
249 m
ING
aprox.
253 m
Piraeus Bank
aprox.
261 m
UniCredit
aprox.
266 m
BRD
aprox.
359 m
ProCredit Bank
aprox.
360 m
BCR
aprox.
379 m
Banca Italo Romena
aprox.
417 m
BRD
aprox.
492 m
În mod firesc, datorită localizării și importanței sale, Centrul Clujului este una dintre zonele cel mai bine deservite la capitolul mijloace de transport în comun, acestea având menirea de a ușura accesul către celelalte cartiere ale orașului (nu doar cele învecinate). În plus, aici a fost inaugurată, în ultimii ani, o bandă specială pentru transportul în comun: aceasta începe pe Strada Memorandumului, în apropiere de sediul central al Primăriei Cluj-Napoca, și se continuă pe Bulevardul 21 Decembrie 1918, legând astfel zona Centru de cartierul Mărăști. Și pasionații de bicicletă au de câștigat de pe urma acestui proiect, noua bandă putând fi folosită și pentru acest mijloc de locomoție.
Dacă vei decide să te muți în Centru, unul dintre beneficiile importante de care vei avea parte va fi reprezentat tocmai de multiplele opțiuni de educație pentru copiii tăi "“ atât în ceea ce privește ciclul preșcolar, cât și cel gimnazial și liceal. Printre instituțiile de prestigiu din acest cartier se numără, spre exemplu, Școala Gimnazială "Ioan Bob", cea mai veche școală românească din Cluj-Napoca. La capitolul învățământ superior, această zonă oferă, de departe, cele mai numeroase oportunități dintre toate cartierele orașului de pe Someș. Astfel, aici se găsesc sediul central al Universității "Babeș-Bolyai", Facultatea de Geografie, Facultatea de Chimie și Inginerie Chimică, Facultatea de Automatică și Calculatoare, Facultatea de Matematică și Informatică (din cadrul Universității "Babeș-Bolyai"), Facultatea de Studii Europene, precum și Institutul Teologic Protestant.
Multiple opțiuni există și pentru pasionații centrelor comerciale moderne, Central Shopping Center fiind un punct de referință pentru mulți clujeni. În apropiere se află și Sora Shopping Center, precum și Ferdinand Galeria. Pentru cumpărăturile de alimente și alte produse de bază, clujenii care locuiesc în Centru nu au la dispoziție un hipermarket "“ deși pot ajunge, în caz de nevoie, la Kauflandul din Mărăști sau la cel din Mănăștur. Nevoile zilnice pot fi satisfăcute, însă, fără prea mari probleme, de magazinele de mai mici dimensiuni existente în cartier.
Pentru cei care au mașină proprie, găsirea unui loc de parcare permanent poate reprezenta, cel puțin în anumite situații, o problemă. Pentru a evita orice probleme în această privință, șoferii se pot interesa cu privire la procedura de închiriere a unui loc de parcare la sediul central al Primăriei Clujului, de pe Strada Moților, nr. 3.
Astfel, pe lângă spațiile verzi și locurile de joacă amenajate pe alocuri, aceștia pot alege, pentru relaxare, între mai multe parcuri, cum ar fi Parcul Central "Simion Bărnuțiu" (amplasat aproape de granița cu Plopilor), Grădina Miko (aproape de Zorilor) sau Parcul Operei. De menționat este, desigur, și Grădina Botanică "Alexandru Borza", situată în sudul cartierului, care reprezintă o destinație perfectă pentru relaxare pe timp de weekend (dar nu numai). Față de alte zone ale orașului de pe Someș, Centrul se distinge și printr-o multitudine de obiective de interes turistic și cultural.
Dintre toate cartierele Clujului, Centrul este cel mai bine reprezentat și la capitolul servicii medicale de stat, aici găsindu-se cele mai multe spitale și clinici de acest tip. În cartier se găsesc, bineînțeles, și o serie de cabinete și clinici medicale particulare, dintre care de menționat ar fi centrele medicale Synevo, Affidea, Cardiomed, dar și clinica de oftalmologie Optinis.
Comparativ cu alte cartiere ale orașului de pe Someș, zona Centrală este, în mod firesc, mult mai ofertantă la capitolul oportunități gastronomice. Astfel, printre opțiunile demne de luat în seamă de aici se numără restaurantele "Casa Boema" (de pe Strada Iuliu Maniu, nr. 34), "Semplice Gourmet" (de pe Strada Calea Dorobanților, nr. 18-20), "Da Pino" (de pe Strada Universității, nr. 8), "Insomnia" (de pe Strada Universității, nr. 2), dar și altele. Dacă ești interesat de o ieșire în oraș cu prietenii, în zona Centrală ai la dispoziție, desigur, și o serie de cafenele, precum "Doamna T", "Papillon Cafe" sau "Meron Opera".
Dacă ai nevoie să efectuezi o operațiune bancară, te vei bucura să afli că zona Centru este foarte bine deservită la acest capitol. Spre exemplu, aici pot fi găsite, într-un areal destul de restrâns, două sedii Banca Transilvania (unul pe Bulevardul Eroilor, nr. 36, iar celălalt, pe Calea Dorobanților, nr. 3), o sucursală ING Bank (pe Bulevardul Eroilor, nr. 9), dar și una CEC Bank (pe Bulevardul 21 Decembrie 1989). De asemenea, la granița dintre Gruia și zona Centrală (reprezentată de Strada Horea), se găsesc alte trei sucursale bancare: una din rețeaua BCR, o Banca Transilvania, alături de un sediu Raiffeisen Bank. Consultă harta și află unde sunt localizate și alte bănci sau ATM-uri în zona Centru:
Înainte să pleci...
Ești sigur că ai văzut și aceste proprietăți?
205.000 €
Cluj-Napoca, Bună Ziua
2 camere
53 mp
Etaj 2
259.000 €
Cluj-Napoca, Central
2 camere
63 mp
Etaj 1
215.000 €
Cluj-Napoca, Central
2 camere
54 mp
Etaj 5
210.000 €
Cluj-Napoca, Zorilor
3 camere
65 mp
Etaj 4 / 4
204.999 €
Cluj-Napoca, Central
2 camere
46 mp
Etaj 1
240.000 €
Cluj-Napoca, Central
2 camere
54 mp
Etaj 3
Creează alertă
Salvează căutarea ca să primești pe email ultimele anunțuri publicate
Apartamente cu 4+ camere de vânzare în zona Central, Cluj-Napoca
Cere detalii prin email
*
*
*
*
Detaliile tale de contact vor fi partajate cu Capital Imobiliare
Preț total1.901.311 RON (373.062 €)
Costuri cu achiziția15.606 RON
Preț de achiziție1.885.705 RON
Costuri cu achiziția15.606 RON
Comision agenție Întreabă agenţia
Onorariu notarial12.777 RON
Taxă înscriere OCPI2.829 RON
Preț de achiziție1.885.705 RON
Preț locuință1.885.705 RON
TVA 0%Inclus în prețul cerut
Cost total304.488 RON (59.744 €)
Avans (15%)282.856 RON
Cost achitat în prima lună3.343 RON
Costuri cu achiziția18.289 RON
Cost achitat în prima lună3.343 RON
Comision analiză dosar
400 RON - 900 RON
Taxă evaluare imobil(până la)
575 RON
Rata lunară (variabilă)8.400 RON
Asigurare anuală imobil1.886 RON
Arhivă electronică102 RON
Poliță PAD130 RON
Asigurare de viață/lună Costul este variabil. În funcție de banca aleasă, procentul variază între 0.0259% și 0.035% din soldul creditului.
Costuri cu achiziția18.289 RON
Comision agenție Întreabă agenţia
Onorariu notarial12.777 RON
Taxă întabulare OCPI2.829 RON
Autentificare contract credit2.683 RON
Preț de achiziție1.885.705 RON
Preț locuință1.885.705 RON
TVA 0%Inclus în prețul cerut
Preț de achiziție1.885.705 RON
Preț locuință1.885.705 RON
TVA 0%
Inclus în prețul cerut
Avans minim1.279.222 RON
Credit pe 30 de ani606.484 RON
Cost achitat în prima lună
Taxa evaluare imobil(până la)
575 RON
Rata lunară (variabilă)4.261 RON
Depozit colateral12.783 RON
Comision de garantare FNGCIMM157 RON
Asigurare anuală imobil1.886 RON
Poliță PAD130 RON
Tarif arhivă electronică102 RON
Costuri adiționale2.026 RON + taxe notariale
Asigurare viață și complexă (opțională)Costul este variabil. În funcție de banca aleasă, procentul variază între 0.0259% și 0.035% din soldul creditului
Onorariu notarialconform tarif notarial
Taxă întabulare OCPI2.026 RON
i
Toate valorile de mai sus sunt estimative și nu reprezintă în mod obligatoriu costurile exacte pe care le veți primi de la companiile/instituțiile prin care veți încheia tranzacția.