Apartament 2 camere, fatada ventilata, constructie premium, Dambul Rotund

148.000 €

Dâmbul Rotund, Cluj-Napoca

Nr. cam.:
2
Sup. utilă:
52,03 mp
Etaj:
3 / 6
An constr.:
2025 (Finalizată)
  • • Locație aproximativă

Descriere apartament

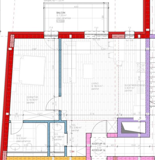
Blitz ofera spre vanzare un apartament cu 2 camere, intr-un bloc nou premium, cu 6 etaje finalizat in 2025, situat in zona Dambul Rotund, aproape de mijloacele de transport in comun, magazine, scoli. Apartamentul este la etajul 3 si este bine compartimentat, oferind confort si functionalitate suprafata utila 52,03 mp si balcon 7,20 mp: hol, living cu bucatarie, dormitor, baie cu geam, balcon. Stadiul de predare semifinisat, pereti zugraviti in alb, cu cadre de wc si intrerupatoare, geamuri de aluminiu Reynaeers. usa metalica la intrare, incalzire in pardoseala. Blocul are izolatie cu vata bazaltica de 15, fatada ventilata, construit la cele mai inalte standarde. Loc de parcare subteran la suma de 12.500 euro. Pentru mai multe informatii, nu ezitati sa ne contactati. Cod oferta / ID BLITZ: P162461
Citește mai mult Citește mai puțin
Confort 3 Semidecomandat Nemobilat 1 Balcon / Terasă / Logie Centrală imobil Încălzire prin pardoseală

Detalii apartament

ID anunț: XFTI10CO6 Copiat! 274470893 Copiat!
Actualizat în: 13 Martie 2026
Nr. bucătării: 1
Nr. băi: 1
Structură rezistență: Cărămidă
Tip imobil: Bloc de apartamente
Regim înălțime: D+P+6E

Utilități

Destinație
Rezidențial
Pereți
Vopsea lavabilă Var
Ușă intrare
Metal
Izolații termice
Exterior
Ferestre cu geam termopan
Aluminiu
Utilități
Curent Apă Canalizare Gaze
Diverse
Senzor de fum Sistem de alarmă Telecomandă poartă acces auto
Facilități imobil
Videointerfon Lift Spații agrement
Amenajare străzi
Asfaltate Mijloace de transport în comun
Comision
%

Disponibilitate proprietate:

imediat

Puncte de interes

Mijloace transport
bus-station
Statia TETAROM , Linia 37
Stații autobuz aprox. 369 m
bus-station
Bariera CFR Nord
Stații autobuz aprox. 624 m
tram-station
Statia Sala Sporturilor 2TRV, Linia 102
Stații tramvai aprox. 1620 m
tram-station
Statia Sala Sporturilor 1TRV, 102
Stații tramvai aprox. 1671 m
Școală
kindergarten
Grăd.Mica Sirenă2
Gradinițe aprox. 727 m
kindergarten
Gradinita Neghinita
Gradinițe aprox. 831 m
school
Scoala Generala nr.15
Școli aprox. 945 m
university
Institutul de cercetari in chimie Raluca Ripan
Universități aprox. 1163 m
Recreere
park
Muzeul Etnografic Cluj (en)
Parcuri aprox. 155 m
supermarket
Lidl
Supermarket aprox. 676 m
restaurant
Ilinca
Restaurant aprox. 724 m
sports-ground
Fabrica de Sport
Terenuri sport aprox. 737 m

Detalii despre preț și costuri

Prețul pe piață

Preț cerut: 148.000 €

Preț min. zonă 100.000 €
Preț max. zonă 183.000 €

55% dintre proprietățile similare ca zonă și nr. camere au prețul cerut mai mic. mai multe...

Bine de știut: prețul unei proprietăți este influențat și de alte caracteristici, cum ar fi: vechime, localizare, vecinătăți, suprafață, compartimentare, amenajări, dotări, etc. mai puțin...

Costuri cu achiziția

Fără credit
7.982 RON
Credit ipotecar
9.723 RON
Noua casă
894 RON+ taxe notariale

i

Costuri adiționale mai puțin știute la achiziție: taxe notariale, comisioane etc.

Proprietăți recomandate

Detalii de contact

BLITZ

BLITZ ROMANIA

4.70(107 review-uri)

BLITZ
PRO

Abonează-te la newsletter să fii primul care primește cele mai noi recomandări de proprietăți și sfaturi de la experți.

CONTACT

Creează alertă

Salvează căutarea ca să primești pe email ultimele anunțuri publicate

Apartamente noi cu 2 camere de vânzare în zona Dâmbul Rotund, Cluj-Napoca