Apartament 3 camere de vanzare in Intre Lacuri, Cluj Napoca

234.850 €

Între Lacuri, Cluj-Napoca

Nr. cam.:
3
Sup. utilă:
76,22 mp
Etaj:
2 / 6
An constr.:
2026
  • • Locație aproximativă

Descriere apartament

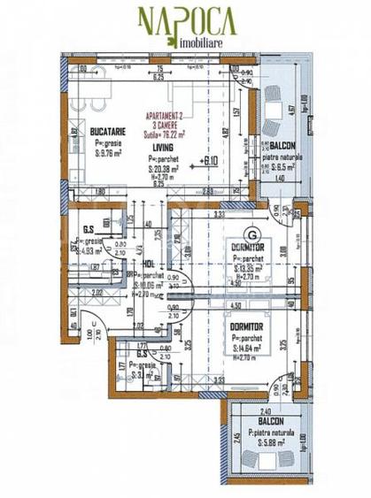
Apartament 3 camere | Intre Lacuri Va propunem spre vanzare un apartament cu 3 camere, in cartierul Intre Lacuri, situat la etajul 1 al unui imobil dispus pe 6 etaje. Avand suprafata utila de 64.2 mp, apartamentul este compartimentat astfel: - 1 camera deschisa cu bucataria; - 2 dormitoare; - 2 bai; - 1 hol; + 1 balcon in suprafata de 6.5 mp; + 1 balcon in suprafata de 5.88 mp. Apartamentele se predau la stadiul de semifinisat, iar in executarea lucrarilor s-a acordat o atentie deosebita detaliilor, fiind realizate: incalzirea in pardoseala, centrala termica de bloc cu repartitoare pe fiecare apartament, usa metalica la intrare, ferestre cu geam tripan si tamplarie PVC, sape nivelante, pereti tencuiti si gletuiti, precum si instalatii electrice si sanitare trase pe pozitii. Exista posibilitatea achizitiei unui loc de parcare cu CF separat, contracost. La pretul afisat se adauga TVA. Pentru mai multe detalii si programarea unei vizionari, va stam la dispozitie! Echipa Napoca Imobiliare ID oferta: 152667
Citește mai mult Citește mai puțin
Semidecomandat 2 Balcoane / Terase / Logii

Detalii apartament

ID anunț: X57Q109TH Copiat! 268569191 Copiat!
Actualizat în: 04 August 2025
Suprafață construită: 91.46 mp
Nr. bucătării: 1
Nr. băi: 2
Tip imobil: Bloc de apartamente
Regim înălțime: P+6E

Utilități

Ușă intrare
Metal
Ferestre cu geam termopan
PVC
Comision
2% + TVA

Puncte de interes

Mijloace transport
bus-station
Statia Atlas, Liniile 8,30,46B, 4,6,7
Stații autobuz aprox. 385 m
bus-station
Statia Aurel Vlaicu, Liniile 8, 30, 46B, 4, 6, 7
Stații autobuz aprox. 411 m
tram-station
Statia Bai Someseni, Linia 8
Stații tramvai aprox. 988 m
tram-station
Statia Branului, Linia 8
Stații tramvai aprox. 1120 m
Școală
kindergarten
Grăd.Lizuca
Gradinițe aprox. 58 m
kindergarten
Grădinita Așchiuță
Gradinițe aprox. 437 m
school
Scoala Alexandru Vaida-voevod
Școli aprox. 595 m
university
Universitatea Crestina Dimitrie Cantemir
Universități aprox. 1222 m
Recreere
park
Parc de copii
Parcuri aprox. 71 m
public-square
Piata Ira
Piețe publice aprox. 455 m
supermarket
Profi
Supermarket aprox. 456 m
sports-ground
Teren sportiv
Terenuri sport aprox. 532 m

Detalii despre preț și costuri

Prețul pe piață

Preț cerut: 234.850 €

Preț min. zonă 164.000 €
Preț max. zonă 292.900 €

55% dintre proprietățile similare ca zonă și nr. camere au prețul cerut mai mare. mai multe...

Bine de știut: prețul unei proprietăți este influențat și de alte caracteristici, cum ar fi: vechime, localizare, vecinătăți, suprafață, compartimentare, amenajări, dotări, etc. mai puțin...

Costuri cu achiziția

Fără credit
10.961 RON
Credit ipotecar
13.070 RON
Noua casă
1.336 RON+ taxe notariale

i

Costuri adiționale mai puțin știute la achiziție: taxe notariale, comisioane etc.

Proprietăți recomandate

Detalii de contact

Napoca Imobiliare

Admin

3.44(14 review-uri)

Napoca Imobiliare
PRO

Abonează-te la newsletter să fii primul care primește cele mai noi recomandări de proprietăți și sfaturi de la experți.

CONTACT

Creează alertă

Salvează căutarea ca să primești pe email ultimele anunțuri publicate

Apartamente noi cu 3 camere de vânzare în zona Între Lacuri, Cluj-Napoca