2

Apartament modern 3 camere 94.5mp pe 2 niveluri, Iris, zona str. Oasului

299.000 €

Iris, Cluj-Napoca

Nr. cam.:
3
Sup. utilă:
95 mp
Etaj:
3 / 4
An constr.:
2025 (Finalizată)
  • • Locație aproximativă
  • • Vizionare prin apel video

Descriere apartament

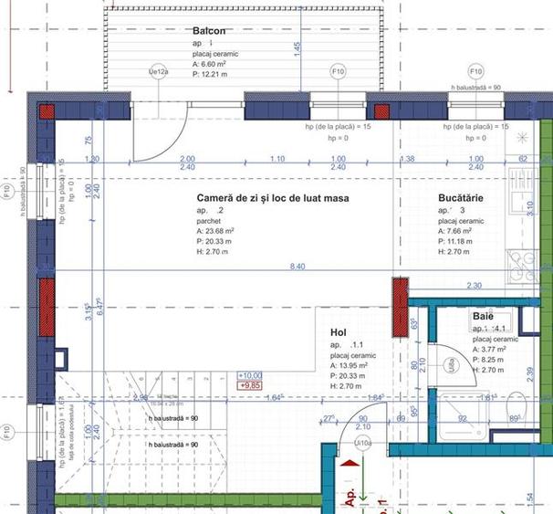
Klar Imobiliare va propune spre vanzare un apartament de 3 camere, confort 1, situat intr-o locatie excelenta din cartierul Iris, zona strazii Oasului. PROFILUL CUMPARATORULUI IDEAL: => Aceasta proprietate se adreseaza in special familiilor care cauta un spatiu generos si sigur intr-o zona cu o infrastructura comerciala completa. Este locuinta ideala pentru cei care apreciaza accesul rapid la cumparaturi, proximitatea fata de gradinite si facilitatile moderne ale unui bloc nou, fiind totodata o optiune excelenta pentru angajatii din zona industriala business de pe Bulevardul Muncii. LOCALIZARE SI ACCESIBILITATE: Proprietatea este pozitionata strategic, intr-o zona care beneficiaza de investitii masive in regenerare urbana: => Transport: Acces facil la statiile de tramvai 101 si 102 (aflate la mica distanta), care asigura o conexiune rapida si fara blocaje in trafic cu centrul orasului si Gara. => Educatie: In apropiere de Gradinita cu program prelungit si scoli din cartierul Iris, precum si acces rapid catre facultatile de pe Bulevardul Muncii (UTCN). => Timp liber: La cateva minute de mers pe jos de zonele de promenada din zona Iris si in proximitatea viitorului parc si centru comercial Oxygen. => Facilitati: Situat aproape de hypermarket-ul Auchan Iris si supermarket-ul Lidl, oferind acces imediat la farmacii, cafenele si unitati bancare. DETALII IMOBIL SI COMPARTIMENTARE: Apartamentul este situat pe 2 niveluri la etajul 3+4, intr-un imobil finalizat in anul 2025, dotat cu lift modern si interfon. Blocul este izolat termic, asigurand un confort ridicat si costuri minime. => Orientare Geografica: Estica - beneficiaza de lumina naturala matinala si o temperatura placuta pe tot parcursul zilei. => Cu o suprafata utila de 94.5 mp, locuinta este de tip semidecomandat si eficient compartimentata: Living open space si luminos, ideal pentru momentele in familie; Bucatarie integrata in zona de zi; debara, 2 Dormitoare spatioase, bine compartimentate; 2 Bai elegante, dotate cu finisaje de calitate; Balcon de 6.6mp cu o suprafata care ofera un spatiu suplimentar de relaxare. DOTARI SI FINISAJE: Locuinta este finisata la standarde Lux si se vinde mobilata si utilata modern, punand la dispozitie: => Confort termic: Centrala termica a imobilului, geamuri termopan performante si izolatie exterioara. => Electrocasnice: Dotari complete si noi (masina de spalat haine, frigider, plita, cuptor, masina de spalat vase). => Mobilier: Modern, realizat la comanda, gandit pentru a maximiza spatiul de depozitare. CONDITII JURIDICE, FINANCIARE SI POLITICI: => Transparenta Juridica: Proprietatea este libera de sarcini, intabulata si pregatita pentru vanzare. Certificat energetic clasa A. => Modalitati de plata: Se accepta plata prin credit ipotecar sau din surse proprii. => Parcare: Proprietatea se poate vinde impreuna cu un loc de parcare situat in garajul subteran al imobilului, la pretul de 15.000 euro. ID intern: 11414 Va invitam sa programati o vizionare pentru a descoperi potentialul acestei proprietati! Klar Imobiliare Cluj - Real Estate pe limba ta
Citește mai mult Citește mai puțin
Confort lux Semidecomandat Lux Mobilat 1 Balcon / Terasă / Logie Centrală imobil 1 Parcare

Detalii apartament

ID anunț: X5NQ1068J Copiat! 274749087 Copiat!
Actualizat în: 06 Martie 2026
Suprafață utilă totală: 95 mp
Suprafață construită: 101 mp
Nr. bucătării: 1
Nr. băi: 2
Structură rezistență: Altele
Tip imobil: Bloc de apartamente
Regim înălțime: P+4E

Utilități

Destinație
Rezidențial
Pereți
Faianță Vopsea lavabilă
Podele
Parchet Gresie
Ușă intrare
Metal
Ferestre cu geam termopan
PVC
Bucătărie
Utilată Mobilată
Electrocasnice
Aragaz Hotă Frigider Hotă Mașină de spălat
Facilități imobil
Lift Interfon
Amenajare străzi
Asfaltate
Comision
2%

Puncte de interes

Mijloace transport
tram-station
Statia IRIS 1 TRV, Linia 100, 102, 26, 39
Stații tramvai aprox. 108 m
tram-station
Iris Sud Tram
Stații tramvai aprox. 145 m
bus-station
IRIS Sud
Stații autobuz aprox. 158 m
train-station
Gara Noua / "Gara de scurt parcurs"
Stații tren aprox. 1732 m
Școală
kindergarten
Grăd.Floare de iris
Gradinițe aprox. 122 m
kindergarten
Grăd.Floare de iris str. 1 corp A+B
Gradinițe aprox. 667 m
school
Grup Școlar Industrial Tehnofrig
Școli aprox. 724 m
university
Facultatea de Ingineria Materialelor si a Mediului
Universități aprox. 1685 m
Recreere
park
Parc
Parcuri aprox. 431 m
supermarket
Auchan Iris
Supermarket aprox. 696 m
sports-ground
Teren sportiv
Terenuri sport aprox. 927 m
public-square
Piata 1848
Piețe publice aprox. 1346 m

Detalii despre preț și costuri

Prețul pe piață

Preț cerut: 299.000 €

Preț min. zonă 129.900 €
Preț max. zonă 295.000 €

i

Proprietate cu prețul cerut în afara intervalului mai multe...

Posibile explicații pentru faptul că prețul proprietății este peste cel maxim: imobil nou cu suprafață mare, are dotări și finisaje de lux.
Bine de știut: prețul unei proprietăți este influențat și de alte caracteristici, cum ar fi: vechime, localizare, vecinătăți, suprafață, compartimentare, amenajări, dotări, etc.

Costuri cu achiziția

Fără credit
43.634 RON
Credit ipotecar
46.016 RON
Noua casă
1.663 RON+ taxe notariale

i

Costuri adiționale mai puțin știute la achiziție: taxe notariale, comisioane etc.

Proprietăți recomandate

Detalii de contact

Klar Imobiliare

Bogdan Pelinar Team Leader

5.00(3 review-uri)

Klar Imobiliare
PRO

Abonează-te la newsletter să fii primul care primește cele mai noi recomandări de proprietăți și sfaturi de la experți.

CONTACT

Creează alertă

Salvează căutarea ca să primești pe email ultimele anunțuri publicate

Apartamente noi cu 3 camere de vânzare în zona Iris, Cluj-Napoca