Apartament 3 Camere | Ultrafinisat | 63 mp | Gheorgheni | Lux| Iulius Mall

249.000 €

Mărăști, Cluj-Napoca

Nr. cam.:
3
Sup. utilă:
63 mp
Etaj:
Parter / 7
An constr.:
1990
  • • Locație aproximativă

Descriere apartament

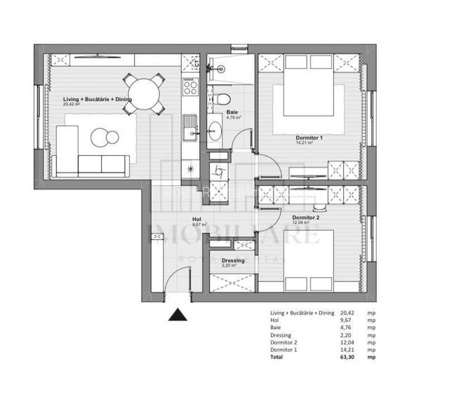
Apartament situat la parterul unui bloc reabilitat termic, cu regim de înălțime D+P+7, construit în anul 1990, într-o zonă centrală, foarte bine conectată la toate punctele de interes. În imediata apropiere se află Facultatea FSPAC, la doar 5 minute de mers pe jos până la Tribunal, Piața Avram Iancu, și la 7 minute de FSEGA și Facultatea Dimitrie Cantemir. De asemenea, la 10 minute distanță se află Iulius Mall, Iulius Business Centre, United Business Center Tower, Porsche Engineering, Parcul Iulius Mall, dar și supermarketurile Lidl, Kaufland și Jysk. ➡️ O zonă ideală pentru locuit sau investiție – liniștită, dar excelent conectată la mijloacele de transport în comun, magazine, restaurante și zone verzi. 🔧 Apartament renovat integral în 2025 Totul este nou, de la instalațiile electrice, sanitare și termice, până la finisaje și mobilier. ✨ Finisaje și dotări premium: Tâmplărie tripan – profil 7 camere Salamander Centrală termică în condensație Immergas Parchet laminat 12 mm, imitație dușumea Ușă metalică ArtaDoor, uși interioare Porta Doors Mobilier integral din MDF la comandă, cu design modern și rafinat Riflaje decorative și accente contemporane de design interior Electrocasnice premium Electrolux: combină frigorifică, plită pe gaz, cuptor electric, hotă, mașină de spălat vase Mașină de spălat haine și uscător cu pompă de căldură Aparataj Livolo cu măști de sticlă, interfon, 2 TV Smart UltraHD (diagonale 165 cm și 140 cm) 🛁 Baie ultra-modernă: Amenajată cu atenție la detalii și materiale de top: Coloană de duș termostatată Oglindă inteligentă cu ceas digital, termometru, funcție de dezaburire și lumină comandată prin gesturi Design modern, elegant, și funcțional 📐 Date tehnice și compartimentare: Suprafață utilă: 63 mp Compartimentare: semidecomandată Configurație: ▫️ 2 dormitoare ▫️ Bucătărie open-space cu living ▫️ Hol generos ▫️ Baie modernă ▫️ Dressing și debara 📞 Pentru mai multe detalii sau programarea unei vizionări, nu ezitați să mă contactați. 🏠 Un apartament deosebit, modern, luminos și perfect pregătit pentru a fi locuit imediat – fără nicio investiție suplimentară!
Citește mai mult Citește mai puțin
Confort lux Semidecomandat Mobilat Lux Calorifere Centrală proprie

Detalii apartament

ID anunț: XFVJ10020 Copiat! 275265233 Copiat!
Actualizat în: 12 Martie 2026
Nr. băi: 1
Tip imobil: Bloc de apartamente
Regim înălțime: P+7E

Utilități

Destinație
Rezidențial
Pereți
Faianță Vopsea lavabilă
Podele
Gresie Parchet
Ușă intrare
Metal
Uși interior
Lemn
Izolații termice
Exterior
Ferestre cu geam termopan
PVC
Contorizare
Apometre Contor gaz
Bucătărie
Utilată
Electrocasnice
Aragaz Frigider Hotă Mașină de spălat Mașină spălat vase
Utilități
Curent Apă Canalizare Gaze
Internet
Cablu
Amenajare străzi
Iluminat stradal Asfaltate
Comision
standard

Disponibilitate proprietate:

Imediat

Puncte de interes

Mijloace transport
bus-station
Scoala Simion Barnutiu
Stații autobuz aprox. 177 m
bus-station
Statia Somesul, liniile 8,24,30,47, 4,6,7,25, 46B
Stații autobuz aprox. 300 m
tram-station
Statia G. Baritiu 1, Linia 102
Stații tramvai aprox. 1335 m
train-station
Gara Noua / "Gara de scurt parcurs"
Stații tren aprox. 1800 m
Școală
school
Liceul de Arte Plastice Romulus Ladea
Școli aprox. 76 m
school
Liceul special pentru Deficienti de Vedere
Școli aprox. 150 m
kindergarten
Grăd.Dumbrăvioara, corp B, Locația Năsăud
Gradinițe aprox. 183 m
university
Facultatea de Stiinte Politice si Administrative (UBB)
Universități aprox. 191 m
Recreere
sports-ground
Teren sportiv
Terenuri sport aprox. 152 m
park
Parc
Parcuri aprox. 305 m
supermarket
Lidl
Supermarket aprox. 515 m
public-square
Piata Mihai Viteazul
Piețe publice aprox. 1144 m

Detalii despre preț și costuri

Prețul pe piață

Preț cerut: 249.000 €

Preț min. zonă 164.000 €
Preț max. zonă 292.900 €

92% dintre proprietățile similare ca zonă și nr. camere au prețul cerut mai mic. mai multe...

Bine de știut: prețul unei proprietăți este influențat și de alte caracteristici, cum ar fi: vechime, localizare, vecinătăți, suprafață, compartimentare, amenajări, dotări, etc. mai puțin...

Costuri cu achiziția

Fără credit
11.447 RON
Credit ipotecar
13.616 RON
Noua casă
1.408 RON+ taxe notariale

i

Costuri adiționale mai puțin știute la achiziție: taxe notariale, comisioane etc.

Proprietăți similare

Apartament cu 3 camere semidecomandat în Mărăști
241.000 € + TVA
Cluj-Napoca, Mărăști
3 camere
74,75 mp
Etaj 2 / 6
Apartament cu 3 camere semidecomandat în Mărăști
229.000 € + TVA
Cluj-Napoca, Mărăști
3 camere
70 mp
Etaj 3 / 4
Apartament cu 4 camere semidecomandat în Mărăști
242.600 €
Cluj-Napoca, Mărăști
4 camere
99,31 mp
Etaj 5

Detalii de contact

Royal Rental Imobiliare

Ghita Daniel Bot Broker

Royal Rental Imobiliare
PRO

Abonează-te la newsletter să fii primul care primește cele mai noi recomandări de proprietăți și sfaturi de la experți.

CONTACT

Creează alertă

Salvează căutarea ca să primești pe email ultimele anunțuri publicate

Apartamente cu 3 camere de vânzare în zona Mărăști, Cluj-Napoca