Apartament 4 camere de vânzare – Faleza Nord, centrala pe gaze, Ocazie

167.000 €

Faleza Nord, Constanța

Nr. cam.:
4
Sup. utilă:
79 mp
Etaj:
2
An constr.:
1984
  • • Locație aproximativă

Descriere apartament

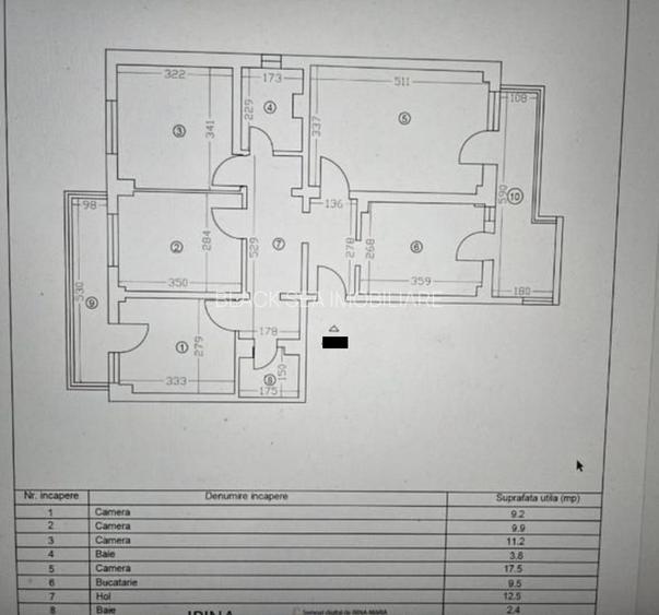
Vă propunem spre vânzare un apartament spațios și luminos cu 4 camere, situat în zona Faleza Nord, pe Strada Unirii, la numai 300 de metri de plajă. Proprietatea se află la etajul 2/4 și beneficiază de o compartimentare ideală pentru locuit, fiind perfectă pentru o familie. Detalii apartament: Suprafață utilă: 78,98 mp Suprafață totală balcoane: 15,38 mp Compartimentare: decomandat Confort: lux Etaj: 2 / 4 4 camere: Living, 3 dormitoare si Bucătărie separată. 2 băi, 2 holuri si 2 balcoane mari, situate pe ambele părți ale blocului Orientare est–vest (luminozitate pe tot parcursul zilei) Dotări și informații suplimentare: Centrală termică pe gaze Internet și utilități complete Bloc construit în 1984 Cadastru și intabulare la zi Poziționare excelentă, foarte aproape de plajă, promenadă, restaurante și mijloace de transport Notă: Apartamentul necesită renovare, motiv pentru care prețul este adaptat corespunzător. Este o locuință potrivită pentru persoane cu adevărat interesate, care își doresc să o amenajeze după propriul gust. Pentru mai multe detalii și programarea unei vizionări, vă invităm să contactați agenția Black Sea Imobiliare.
Citește mai mult Citește mai puțin
Confort lux Decomandat Mobilat Parțial 2 Balcoane Aer condiționat Calorifere Centrală proprie Necesită renovare Zonă de litoral

Detalii apartament

ID anunț: XBIH1004F Copiat! 272251677 Copiat!
Actualizat în: 08 Ianuarie 2026
Suprafață construită: 89 mp
Nr. bucătării: 1
Nr. băi: 2
Structură rezistență: Beton
Tip imobil: Bloc de apartamente
Regim înălțime: P+4E

Utilități

Pereți
Faianță Vopsea lavabilă
Podele
Gresie Parchet
Ușă intrare
Lemn
Uși interior
Lemn
Contorizare
Apometre Contor căldură Contor gaz
Bucătărie
Mobilată Utilată
Dotări imobil
Interfon
Utilități
Curent Apă Canalizare CATV Gaze Telefon
Acces internet
Cablu
Amenajare străzi
Iluminat stradal Mijloace de transport în comun Asfaltate
Comision
2%

Disponibilitate proprietate:

Imediat

Puncte de interes

Mijloace transport
bus-station
Cap Linie Pescarie [5-40
Stații autobuz aprox. 337 m
bus-station
Statia Pescarie, Linia 40,102 (en)
Stații autobuz aprox. 364 m
bus-station
Unirii [40
Stații autobuz aprox. 405 m
bus-station
Hotel Turist [5-40
Stații autobuz aprox. 566 m
Școală
school
Spiru Haret - New building (en)
Școli aprox. 609 m
school
Liceul Energetic
Școli aprox. 674 m
kindergarten
Gradinita Nr. 45
Gradinițe aprox. 1493 m
university
Baza Nautica Universitatea Ovidius
Universități aprox. 1552 m
Recreere
restaurant
Lake View (en)
Restaurant aprox. 497 m
park
Parc
Parcuri aprox. 606 m
supermarket
Pavilionul Expozitional Mamaia
Supermarket aprox. 615 m
sports-ground
Teren sportiv
Terenuri sport aprox. 1339 m

Detalii despre preț și costuri

Prețul pe piață

Preț cerut: 167.000 €

Preț min. zonă 120.000 €
Preț max. zonă 365.000 €

66% dintre proprietățile similare ca zonă și nr. camere au prețul cerut mai mare. mai multe...

Bine de știut: prețul unei proprietăți este influențat și de alte caracteristici, cum ar fi: vechime, localizare, vecinătăți, suprafață, compartimentare, amenajări, dotări, etc. mai puțin...

Costuri cu achiziția

Fără credit
25.648 RON
Credit ipotecar
27.469 RON
Noua casă
991 RON+ taxe notariale

i

Costuri adiționale mai puțin știute la achiziție: taxe notariale, comisioane etc.

Proprietăți recomandate

Detalii de contact

BLACK SEA IMOBILIARE

Goran Panoski Manager

BLACK SEA IMOBILIARE
PRO

Abonează-te la newsletter să fii primul care primește cele mai noi recomandări de proprietăți și sfaturi de la experți.

CONTACT

Creează alertă

Salvează căutarea ca să primești pe email ultimele anunțuri publicate

Apartamente cu 4+ camere de vânzare în zona Faleza Nord, Constanța