29

Faleza Nord 4 camere decomandate etajul 2

189.000 €

Faleza Nord, Constanța

Nr. cam.:
4
Sup. utilă:
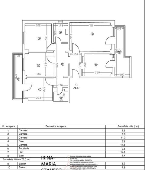
90 mp
Etaj:
2 / 4
An constr.:
1984 (Finalizată)
  • • Locație aproximativă

Descriere apartament

Agentia Acord Imobiliar va ofera spre achizitie un apartament cu 4 camere decomandat situat la etajul 2 din 4 in Faleza Nord. Suprafata totala este de 90 mp din care 76 mp utili plus balcoane 14mp. Apartamentul este izolat la exterior , are incalzirea prin centrala proprie pe gaze, este incadrat.Pretul este fix. Vizionarea ofertei se face in baza acordului de vizionare.
Citește mai mult Citește mai puțin
Confort 1 Decomandat 2 Balcoane / Terase / Logii Calorifere Centrală proprie Zonă de litoral

Detalii apartament

ID anunț: X41D1041A Copiat! 267664658 Copiat!
Actualizat în: 18 Mai 2026
Nr. bucătării: 1
Nr. băi: 2
Tip imobil: Bloc de apartamente
Tip tranzacție: De vânzare prin agent
Regim înălțime: P+4E
Modalitate de plată: Cash sau Credit

Utilități

Pereți
Faianță Vopsea lavabilă
Podele
Gresie Parchet
Ușă intrare
Lemn
Uși interior
PVC
Izolații termice
Exterior
Ferestre cu geam termopan
PVC
Contorizare
Apometre Contor gaz
Facilități imobil
Interfon
Utilități
Curent Apă Canalizare CATV Gaze Telefon
Internet
Cablu Wireless
Amenajare străzi
Iluminat stradal Mijloace de transport în comun Asfaltate Betonate
Comision
2%

Disponibilitate proprietate:

Imediat

Puncte de interes

Mijloace transport
bus-station
Unirii [40
Stații autobuz aprox. 103 m
bus-station
Hotel Turist [5-40
Stații autobuz aprox. 125 m
bus-station
Statie Complex ONT, Linia 40, 102
Stații autobuz aprox. 133 m
bus-station
Cap Linie Pescarie [5-40
Stații autobuz aprox. 351 m
Școală
school
Colegiul Tehnic Energetic Constanta
Școli aprox. 268 m
school
Liceul Energetic
Școli aprox. 271 m
kindergarten
Gradinita Nr. 45
Gradinițe aprox. 1198 m
university
Baza Nautica Universitatea Ovidius
Universități aprox. 1459 m
Recreere
park
Parc
Parcuri aprox. 399 m
supermarket
Mega Image
Supermarket aprox. 523 m
sports-ground
Teren sportiv
Terenuri sport aprox. 1056 m
public-square
Piața Chiliei
Piețe publice aprox. 1978 m

Istoricul prețurilor

Acces la informații premium după autentificare
Login Gratuit

Detalii despre preț și costuri

Prețul pe piață

Preț cerut: 189.000 €

Preț min. zonă
Preț max. zonă

67% dintre proprietățile similare ca zonă și nr. camere au prețul cerut mai mare. mai multe...

Bine de știut: prețul unei proprietăți este influențat și de alte caracteristici, cum ar fi: vechime, localizare, vecinătăți, suprafață, compartimentare, amenajări, dotări, etc. mai puțin...

Acces la informații premium după autentificare
Login Gratuit

Costuri cu achiziția

Fără credit
Credit ipotecar
Noua casă

i

Costuri adiționale mai puțin știute la achiziție: taxe notariale, comisioane etc.

Acces la informații premium după autentificare
Login Gratuit

Proprietăți similare

Apartament cu 2 camere în Faleza Nord
175.900 €
Constanța, Faleza Nord
2 camere
75 mp
Etaj 7 / 10
Apartament cu 3 camere decomandat, mobilat în Faleza Nord
175.000 €
Constanța, Faleza Nord
3 camere
74 mp
Etaj 8 / 11
Apartament cu 3 camere semidecomandat, mobilat în Faleza Nord
180.000 €
Constanța, Faleza Nord
3 camere
67 mp
Etaj 2

Detalii de contact

ACORD IMOBILIAR SRL

LAURENTIU DIMACHE Consultant Imobiliar

ACORD IMOBILIAR SRL
PRO

Abonează-te la newsletter să fii primul care primește cele mai noi recomandări de proprietăți și sfaturi de la experți.

CONTACT

Creează alertă

Salvează căutarea ca să primești pe email ultimele anunțuri publicate

Apartamente cu 4+ camere de vânzare în zona Faleza Nord, Constanța