Apartament 3 camere in proiect nou - Bratianu Constanta

102.700 € + TVA

I. C. Brătianu, Constanța

Nr. cam.:
3
Sup. utilă:
59,26 mp
Etaj:
2 / 3
An constr.:
2026 (În construcție)
  • • Locație aproximativă
  • • Vizionare prin apel video

Descriere apartament

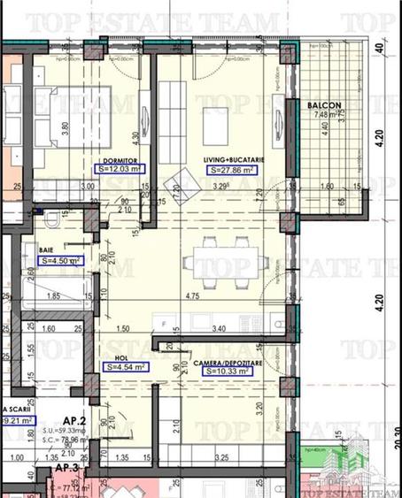
Excelenta prin experienta! Apartament 3 camere in proiect nou – Bratianu | Comunitate restransa, doar 12 apartamente Iti propunem spre vanzare un apartament modern cu 3 camere, situat intr-un proiect rezidential nou pe zona Bratianu, intr-un imobil cu regim de inaltime P+3, gandit pentru confort si intimitate. Unul dintre marile avantaje ale proiectului este comunitatea restransa: blocul va avea doar 12 apartamente, oferind liniste, vecini putini si un stil de viata mai relaxat. Constructia este deja in desfasurare, imobilul fiind ridicat pana la etajul 2, iar termenul estimativ pentru finalizare si receptie este decembrie 2026. Detalii apartament: Suprafata totala: 66.74 mp Compartimentare eficienta Living + bucatarie open space 2 dormitoare 1 baie si un hol spatios. Balcon generos de 7.48 mp Apartamentul se preda la alb, cu peretii finisati si lavabila aplicata, fara finisaje finale, oferindu-ti libertatea de a-ti amenaja locuinta exact asa cum iti doresti. Locuri de parcare disponibile in cadrul proiectului: 10.000 EUR + TVA Daca iti doresti un apartament intr-un bloc mic, modern, cu putini vecini si intr-o zona cu acces facil, acest proiect poate fi alegerea potrivita. Pentru mai multe detalii sau programarea unei vizionari, nu ezita sa ne contactezi ID intern: TET
Citește mai mult Citește mai puțin
Confort 1 Decomandat 1 Balcon / Terasă / Logie Zonă de litoral

Detalii apartament

ID anunț: XA8S1091R Copiat! 275255390 Copiat!
Actualizat în: 11 Martie 2026
Suprafață utilă totală: 59.26 mp
Suprafață construită: 66.74 mp
Nr. bucătării: 1
Nr. băi: 1
Structură rezistență: Cărămidă
Tip imobil: Bloc de apartamente
Regim înălțime: P+3E

Utilități

Destinație
Rezidențial
Izolații termice
Exterior
Ferestre cu geam termopan
PVC
Facilități imobil
Interfon

Vecinătăți:

Benzinarie, Trafic Pietonal, Supermarket, Zona comerciala, Autobuz

Puncte de interes

Mijloace transport
bus-station
Statia Palas(Capat de linie); Lina 48
Stații autobuz aprox. 95 m
bus-station
Cap Linie [48]
Stații autobuz aprox. 118 m
bus-station
Statia Spital CFR; Linia 48
Stații autobuz aprox. 289 m
tram-station
Fosta bucla de intoarcere a tramvaiului 102
Stații tramvai aprox. 1296 m
Școală
school
Centrul National de Calificare si Instruire Feroviara - CENAFER
Școli aprox. 209 m
school
Palatul agriculturii-scoala
Școli aprox. 274 m
kindergarten
Grădinița cu Program Normal Nr.31
Gradinițe aprox. 749 m
kindergarten
Gradinita nr. 2 Constanta
Gradinițe aprox. 1430 m
Recreere
sports-ground
Teren sportiv
Terenuri sport aprox. 263 m
sports-ground
Teren sportiv
Terenuri sport aprox. 384 m
sports-ground
Teren sportiv
Terenuri sport aprox. 530 m

Detalii despre preț și costuri

Prețul pe piață

Preț cerut: 102.700 €

Preț min. zonă 110.000 €
Preț max. zonă 315.000 €

i

Proprietate cu prețul cerut în afara intervalului mai multe...

Posibile explicații pentru faptul că prețul proprietății este sub cel minim: imobil cu risc seismic, imobil cu probleme structurale, imobil demolabil, poziționare în altă zonă
Bine de știut: prețul unei proprietăți este influențat și de alte caracteristici, cum ar fi: vechime, localizare, vecinătăți, suprafață, compartimentare, amenajări, dotări, etc.

Costuri cu achiziția

Fără credit
7.167 RON
Credit ipotecar
8.807 RON
Noua casă
773 RON+ taxe notariale

i

Costuri adiționale mai puțin știute la achiziție: taxe notariale, comisioane etc.

Proprietăți similare

Apartament cu 3 camere decomandat în
108.500 € + TVA
Constanța, I. C. Brătianu
3 camere
63,27 mp
Etaj 1 / 3
Apartament cu 2 camere decomandat în
99.000 €
Constanța, I. C. Brătianu
2 camere
50 mp
Etaj 6
Apartament cu 3 camere decomandat în
99.000 € + TVA
Constanța, I. C. Brătianu
3 camere
58,23 mp
Etaj 1 / 3

Detalii de contact

Abonează-te la newsletter să fii primul care primește cele mai noi recomandări de proprietăți și sfaturi de la experți.

CONTACT

Creează alertă

Salvează căutarea ca să primești pe email ultimele anunțuri publicate

Apartamente cu 3 camere de vânzare în zona I. C. Brătianu, Constanța