6

Apartament 4 camere zona Inel 2

106.000 €

Inel II, Constanța

Nr. cam.:
4
Sup. utilă:
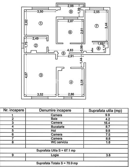
71 mp
Etaj:
3 / 4
An constr.:
1981 (Finalizată)
  • • Locație aproximativă

Descriere apartament

Agentia Acord Imobiliar, va propune spre vanzare, un apartament cu 4 camere decomandat, situat la etajul 3/4, cu o suprafata utila de 71mp cu balcon, gazele sunt la usa. Se vinde cum se vede in poze. Pret negociabil. Pentru mai multe detalii, nu ezitati sa ne contactati!
Citește mai mult Citește mai puțin
Confort 1 Decomandat Nemobilat 1 Balcon / Terasă / Logie Bine întreținut (Bună) Zonă de litoral

Detalii apartament

ID anunț: X41D104E4 Copiat! 273052306 Copiat!
Actualizat în: 13 Martie 2026
Suprafață construită: 76 mp
Nr. bucătării: 1
Nr. băi: 2
Tip imobil: Bloc de apartamente
Regim înălțime: P+4E

Utilități

Destinație
Rezidențial
Ușă intrare
Metal
Utilități
Curent Apă Canalizare CATV Gaze Telefon
Internet
Cablu
Amenajare străzi
Iluminat stradal Mijloace de transport în comun Asfaltate
Comision
standard

Disponibilitate proprietate:

Imediat

Puncte de interes

Mijloace transport
bus-station
Scoala 23 [102
Stații autobuz aprox. 59 m
bus-station
Scoala 23 [102
Stații autobuz aprox. 92 m
train-station
Halta Traian Mărfuri
Stații tren aprox. 834 m
train-station
Stația CFR Constanța Mărfuri
Stații tren aprox. 934 m
Școală
school
Școala nr.23
Școli aprox. 111 m
school
Colegiul Nautic Roma
Școli aprox. 207 m
kindergarten
Gradinita nr. 47 Lumea Povestilor Constanta
Gradinițe aprox. 296 m
university
Academia Navală Mircea cel Bătrân
Universități aprox. 296 m
Recreere
sports-ground
Teren sportiv
Terenuri sport aprox. 194 m
park
Parc
Parcuri aprox. 381 m
supermarket
Marvimex
Supermarket aprox. 439 m
public-square
Victory Square (en)
Piețe publice aprox. 1787 m

Detalii despre preț și costuri

Prețul pe piață

Preț cerut: 106.000 €

Preț min. zonă 98.000 €
Preț max. zonă 237.000 €

76% dintre proprietățile similare ca zonă și nr. camere au prețul cerut mai mare. mai multe...

Bine de știut: prețul unei proprietăți este influențat și de alte caracteristici, cum ar fi: vechime, localizare, vecinătăți, suprafață, compartimentare, amenajări, dotări, etc. mai puțin...

Costuri cu achiziția

Fără credit
6.391 RON
Credit ipotecar
7.954 RON
Noua casă
680 RON+ taxe notariale

i

Costuri adiționale mai puțin știute la achiziție: taxe notariale, comisioane etc.

Proprietăți recomandate

Detalii de contact

ACORD IMOBILIAR SRL

IONUT OMOCEA consultant imobiliar

4.76(6 review-uri)

ACORD IMOBILIAR SRL
PRO

Abonează-te la newsletter să fii primul care primește cele mai noi recomandări de proprietăți și sfaturi de la experți.

CONTACT

Creează alertă

Salvează căutarea ca să primești pe email ultimele anunțuri publicate

Apartamente cu 4+ camere de vânzare în zona Inel II, Constanța