1

⏩ Compozitori 2 Cam►3 Camere 64,72m² Mobilat Utilat Centrala Etaj 3 Loc Parcare

115.000 €

Primo, Constanța

Nr. cam.:
2
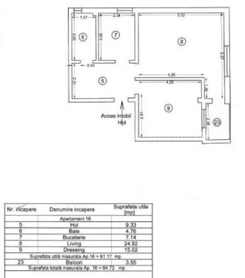
Sup. utilă:
64,72 mp
Etaj:
3 / 4
An constr.:
2019 (Finalizată)
  • • Locație aproximativă

Descriere apartament

⏩ Birou de Intermediere si Consultanta Imobiliara 🔸 Va propunem spre Vanzare un apartament de 2 camere Decomandate confort maXim, transformat in 3 Camere avand o Suprafata Utila de 64,72m² cu Balcon, in zona Compozitorilor, situat la Etajul 3 intr-un bloc Stradal de 3 Etaje + Mansarda, construit in anul 2019. 🔸 Apartamentul este liber, foarte Luminos, izolat eXterior, incadrat pe Est prezinta toate Imbunatatirile de actualitate, se vinde Mobilat si Utilat cu Centrala Termica pe Gaze si 2 aparate de Aer Conditionat, baia cu aerisire Naturala si un Loc de Parcare in fata Blocului 🔸 Cadastru, Intabulare, Certificat Energetic, PAD, 🔸 C:
Citește mai mult Citește mai puțin
Confort lux Decomandat Mobilat Mobilat 1 Balcon / Terasă / Logie Aer condiționat Calorifere Centrală proprie 1 Parcare Renovat Zonă de litoral

Detalii apartament

ID anunț: X4DK000O7 Copiat! 275180019 Copiat!
Actualizat în: 03 Martie 2026
Suprafață construită: 75.05 mp
Nr. bucătării: 1
Nr. băi: 1
Structură rezistență: BCA
Tip imobil: Bloc de apartamente
Regim înălțime: P+4E

Utilități

Destinație
Rezidențial De vacanță
Pereți
Faianță Vopsea lavabilă
Podele
Gresie Parchet
Ușă intrare
Lemn Metal
Uși interior
Lemn Sticlă
Izolații termice
Exterior
Ferestre cu geam termopan
PVC
Contorizare
Contor gaz Apometre
Bucătărie
Mobilată Utilată
Utilități
CATV Gaze Curent Canalizare Apă
Internet
Cablu Fibră optică
Amenajare străzi
Asfaltate Iluminat stradal Mijloace de transport în comun

Vicii:

Inexistente

Vecinătăți:

⏩ Compozitori

Puncte de interes

Mijloace transport
train-station
Halta Traian Mărfuri
Stații tren aprox. 336 m
bus-station
Eliberarii [102
Stații autobuz aprox. 374 m
bus-station
Statia Scoala 23; Linia 102
Stații autobuz aprox. 412 m
train-station
Stația CFR Constanța Mărfuri
Stații tren aprox. 421 m
Școală
school
Colegiul Nautic Roma
Școli aprox. 347 m
school
Școala nr.23
Școli aprox. 459 m
kindergarten
Gradinita nr. 47 Lumea Povestilor Constanta
Gradinițe aprox. 500 m
university
Academia Navală Mircea cel Bătrân
Universități aprox. 586 m
Recreere
sports-ground
Teren sportiv
Terenuri sport aprox. 301 m
restaurant
Restaurant Allegria
Restaurant aprox. 409 m
supermarket
Marfuri Confiscate
Supermarket aprox. 645 m
park
Parc
Parcuri aprox. 683 m

Detalii despre preț și costuri

Prețul pe piață

Preț cerut: 115.000 €

Preț min. zonă 62.000 €
Preț max. zonă 137.500 €

63% dintre proprietățile similare ca zonă și nr. camere au prețul cerut mai mare. mai multe...

Bine de știut: prețul unei proprietăți este influențat și de alte caracteristici, cum ar fi: vechime, localizare, vecinătăți, suprafață, compartimentare, amenajări, dotări, etc. mai puțin...

Costuri cu achiziția

Fără credit
6.818 RON
Credit ipotecar
8.419 RON
Noua casă
726 RON+ taxe notariale

i

Costuri adiționale mai puțin știute la achiziție: taxe notariale, comisioane etc.

Proprietăți similare

Apartament cu 2 camere decomandat, mobilat în Primo
112.000 €
Constanța, Primo
2 camere
57,6 mp
Etaj 1 / 3
Apartament cu 2 camere decomandat, mobilat în Primo
112.000 €
Constanța, Primo
2 camere
57,6 mp
Etaj 1
Apartament cu 2 camere decomandat, mobilat în Primo
125.000 €
Constanța, Primo
2 camere
59,5 mp
Etaj 9

Detalii de contact

Birou de Intermediere si Consultanta Imobiliara

Ioana N Broker Imobiliar

4.71(6 review-uri)

Birou de Intermediere si Consultanta Imobiliara

Abonează-te la newsletter să fii primul care primește cele mai noi recomandări de proprietăți și sfaturi de la experți.

CONTACT

Creează alertă

Salvează căutarea ca să primești pe email ultimele anunțuri publicate

Apartamente cu 2 camere de vânzare în zona Primo, Constanța