Apartament 2 camere zona Tomis III

99.900 €

Tomis III, Constanța

Nr. cam.:
2
Sup. utilă:
39 mp
Etaj:
4 / 4
An constr.:
1973 (Finalizată)
  • • Locație aproximativă

Descriere apartament

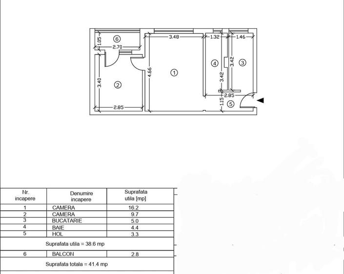
Agentia Acord Imobiliar va propune spre achizitie un apartament cu doua camere, etaj 4/4, cu o suprafata de 41mp, zona Tomis III. Apartamentul dispune de centrala pe gaze, este renovat recent si se vinde mobilat/utilat. Pentru mai multe detalii, va stam la dispozitie la numerele de telefon afisate. Vizionarea se face doar pe baza Acordului de vizionare.
Citește mai mult Citește mai puțin
Confort 2 Semidecomandat Mobilat Aer condiționat Centrală proprie Zonă de litoral

Detalii apartament

ID anunț: X41D104EL Copiat! 273323132 Copiat!
Actualizat în: 23 Ianuarie 2026
Nr. bucătării: 1
Nr. băi: 1
Tip imobil: Bloc de apartamente
Regim înălțime: P+4E

Utilități

Destinație
Rezidențial
Izolații termice
Exterior
Utilități
Curent Apă Canalizare CATV Gaze Telefon
Internet
Cablu
Amenajare străzi
Iluminat stradal Mijloace de transport în comun Asfaltate
Comision
standard

Disponibilitate proprietate:

Imediat

Puncte de interes

Mijloace transport
bus-station
Cap linie Poarta 2 [42
Stații autobuz aprox. 123 m
bus-station
Statia Poarta 2, Linia 5,42,48
Stații autobuz aprox. 134 m
train-station
Gara CFR Constanta(1960)
Stații tren aprox. 1654 m
train-station
Gara Constanța(1960)
Stații tren aprox. 1729 m
Școală
school
Gradinita O.P. nr. 56 "Vaporasul Magic" (en)
Școli aprox. 77 m
school
Colegiul Național Mihail Eminescu
Școli aprox. 316 m
kindergarten
Gradinita nr.16
Gradinițe aprox. 376 m
university
Universitatea Populara (ru)
Universități aprox. 437 m
Recreere
park
Parc
Parcuri aprox. 278 m
sports-ground
Teren sportiv
Terenuri sport aprox. 292 m
supermarket
Magazinul Grand
Supermarket aprox. 458 m
public-square
Piața Ovidiu
Piețe publice aprox. 571 m

Detalii despre preț și costuri

Prețul pe piață

Preț cerut: 99.900 €

Preț min. zonă 66.000 €
Preț max. zonă 130.000 €

99% dintre proprietățile similare ca zonă și nr. camere au prețul cerut mai mic. mai multe...

Bine de știut: prețul unei proprietăți este influențat și de alte caracteristici, cum ar fi: vechime, localizare, vecinătăți, suprafață, compartimentare, amenajări, dotări, etc. mai puțin...

Costuri cu achiziția

Fără credit
6.106 RON
Credit ipotecar
7.643 RON
Noua casă
649 RON+ taxe notariale

i

Costuri adiționale mai puțin știute la achiziție: taxe notariale, comisioane etc.

Proprietăți recomandate

Detalii de contact

ACORD IMOBILIAR SRL

CRISTINA MUTIS CONSULTANT IMOBILIAR

ACORD IMOBILIAR SRL
PRO

Abonează-te la newsletter să fii primul care primește cele mai noi recomandări de proprietăți și sfaturi de la experți.

CONTACT

Creează alertă

Salvează căutarea ca să primești pe email ultimele anunțuri publicate

Apartamente cu 2 camere de vânzare în zona Tomis III, Constanța