1

Apartament renovat zona Boema, 2 camere decomandate.

109.000 €

Tomis Nord, Constanța

Nr. cam.:
2
Sup. utilă:
55 mp
Etaj:
4 / 4
An constr.:
1981 (Finalizată)
  • • Locație aproximativă

Descriere apartament

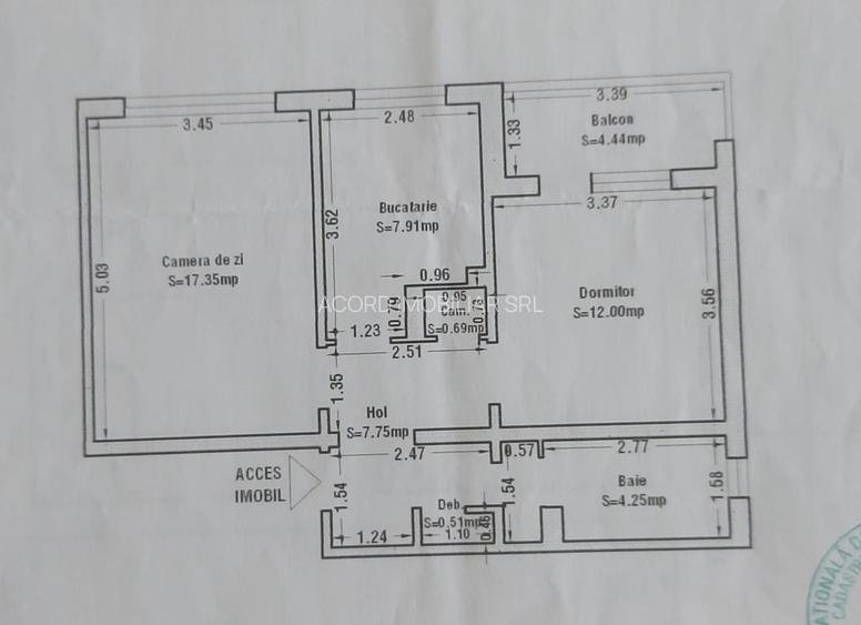
Agentia Acord Imobiliar va ofera spre achizitie un apartament cu 2 camere decomandate, cu suprafata utila de 50,5 mp plus balcon in suprafata de 4,5 mp. Apartamentul este renovat recent, incalzirea se face prin centrala proprie pe gaze, usile interioare sunt din lemn, gresie si faianta noi .Se vinde mobilat si utilat fiind ideal pentru cei care vor sa faca o investitie in vederea inchirieri dar si pentru cei care vor sa locuiasca. Vizionarea odfertei se face in baza acordului de vizionare.
Citește mai mult Citește mai puțin
Confort 1 Decomandat Mobilat 1 Balcon / Terasă / Logie Aer condiționat Calorifere Centrală proprie Zonă de litoral

Detalii apartament

ID anunț: X41D104MU Copiat! 275303948 Copiat!
Actualizat în: 18 Martie 2026
Nr. bucătării: 1
Nr. băi: 1
Tip imobil: Bloc de apartamente
Regim înălțime: P+4E

Utilități

Pereți
Faianță Vopsea lavabilă
Podele
Gresie Parchet
Ușă intrare
Metal
Uși interior
Lemn
Ferestre cu geam termopan
PVC
Contorizare
Apometre Contor gaz
Bucătărie
Mobilată Utilată
Electrocasnice
Aragaz Frigider Hotă Mașină de spălat TV
Facilități imobil
Interfon
Utilități
Curent Apă Canalizare CATV Gaze Telefon
Internet
Cablu Wireless
Amenajare străzi
Iluminat stradal Mijloace de transport în comun Asfaltate Betonate
Comision
2%

Disponibilitate proprietate:

Imediat

Puncte de interes

Mijloace transport
bus-station
Statia Bulevard; Linia 100,100C,102
Stații autobuz aprox. 182 m
bus-station
Statia de autobuze Tomis III
Stații autobuz aprox. 196 m
bus-station
Tomis 3 [1
Stații autobuz aprox. 214 m
bus-station
Metropolitan Bus 23 "Bulevard" Terminal (en)
Stații autobuz aprox. 221 m
Școală
school
Școala generală Remus Opreanu
Școli aprox. 93 m
school
Colegiul Național de Arte "Regina Maria"
Școli aprox. 245 m
kindergarten
Micul Rotterdam
Gradinițe aprox. 455 m
university
Campus Universitatea Ovidius
Universități aprox. 1483 m
Recreere
supermarket
LIDL
Supermarket aprox. 228 m
park
The Land of Dwarves (Țara Piticilor) (en)
Parcuri aprox. 555 m
sports-ground
Teren fotbal
Terenuri sport aprox. 820 m
public-square
Piața Chiliei
Piețe publice aprox. 1748 m

Detalii despre preț și costuri

Prețul pe piață

Preț cerut: 109.000 €

Preț min. zonă 62.000 €
Preț max. zonă 137.500 €

59% dintre proprietățile similare ca zonă și nr. camere au prețul cerut mai mic. mai multe...

Bine de știut: prețul unei proprietăți este influențat și de alte caracteristici, cum ar fi: vechime, localizare, vecinătăți, suprafață, compartimentare, amenajări, dotări, etc. mai puțin...

Costuri cu achiziția

Fără credit
17.643 RON
Credit ipotecar
19.218 RON
Noua casă
695 RON+ taxe notariale

i

Costuri adiționale mai puțin știute la achiziție: taxe notariale, comisioane etc.

Proprietăți similare

Apartament cu 3 camere semidecomandat, mobilat în Tomis Nord
110.000 €
Constanța, Tomis Nord
3 camere
53 mp
Etaj 3
Apartament cu 3 camere în Tomis Nord
115.000 €
Constanța, Tomis Nord
3 camere
67 mp
Etaj 2 / 10
Apartament cu 2 camere decomandat, mobilat în Tomis Nord
105.000 €
Constanța, Tomis Nord
2 camere
55 mp
Etaj 10 / 10

Detalii de contact

ACORD IMOBILIAR SRL

LAURENTIU DIMACHE Consultant Imobiliar

ACORD IMOBILIAR SRL
PRO

Abonează-te la newsletter să fii primul care primește cele mai noi recomandări de proprietăți și sfaturi de la experți.

CONTACT

Creează alertă

Salvează căutarea ca să primești pe email ultimele anunțuri publicate

Apartamente cu 2 camere de vânzare în zona Tomis Nord, Constanța