Apartament 3 camere, decomandat, 81 mp, Cartierul Veteranilor, Parcul Romanescu

125.000 € + TVA

Exterior Sud, Craiova

Nr. cam.:
3
Sup. utilă:
72,2 mp
Etaj:
3 / 3
Tip prop.:
Bloc de apartamente
  • • Locație aproximativă

Descriere apartament

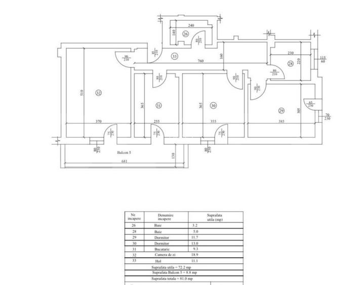
Blitz va propune spre achizite un apartament decomandat cu o suprafata total de 81 mp, din care 72.2 mp suprafata utila si 8.8 mp balconul. Imobilul este situat la etajul 3 al unui bloc cu 3 niveluri. Apartamentul se va preda la cheie avand gresie, faianta, sanitarele, termopan, usi interioare, usa metalica la intrare, interfon si centrala proprie cu incalzire pe calorifere. Constructia este una calitativa avand: pereti perimetrali zidarie BCA si stalpi din beton armat, ⁠grinzi si stalpi beton armat, ⁠sarpanta din lemn termoizolata cu spuma poliuretanica cu celula inchisa de 14 cm si inchidere cu tabla 0,55 dublu faltuita garantie 20 ani. De asemenea, izolatia este facuta cu ⁠termosistem 10 cm exterior, finisat cu plasa fibra si imbracat in tabla pentru considerente arhitecturale, tencuiala uscata de gyps carton aplicata peste zidarie de BCA la interior pentru finisaj premium, ⁠tamplarie PVC Salamander cu sticla termoizolanta de 28 mm Madrugada. In incinta compelxului accesul se face pe baza de telecomanda (bariera), iar locurile de parcare pot fi achizitionate separat la pretul de 7000€ + TVA. In imediata vecinatate putem gasi Parcul Nicolae Romanescu, scoala Ethos, Kaufland si Lidl la 5 minute, iar accesul la mijloacele de transport in comun, este unul facil. Pentru mai multe detalii, va asteptam cu drag la vizionare! Cod oferta / ID BLITZ: P161285
Citește mai mult Citește mai puțin
Decomandat Nemobilat 1 Balcon / Terasă / Logie Calorifere Centrală proprie

Detalii apartament

ID anunț: X3SH2002F Copiat! 275226638 Copiat!
Actualizat în: 09 Martie 2026
Nr. bucătării: 1
Nr. băi: 2
Regim înălțime: P+3E

Utilități

Destinație
Rezidențial
Pereți
Vopsea lavabilă Faianță
Podele
Parchet Gresie
Ușă intrare
Metal
Uși interior
Celulare
Izolații termice
Exterior
Contorizare
Apometre Contor gaz
Diverse
Telecomandă poartă acces auto
Facilități imobil
Interfon Lift
Utilități
Curent Apă Canalizare Gaze
Comision
standard

Disponibilitate proprietate:

imediat

Puncte de interes

Mijloace transport
bus-station
Fantana Popova
Stații autobuz aprox. 435 m
bus-station
Fantana Popova
Stații autobuz aprox. 435 m
bus-station
Fantana Popova
Stații autobuz aprox. 437 m
airport
Aeroclubul Balta-Verde
Aeroporturi aprox. 1114 m
Școală
school
Liceul Tehnologic de Transporturi Auto
Școli aprox. 698 m
school
Scoala Gimnaziala Gheorghe Bibescu
Școli aprox. 1302 m
school
Scoala Speciala Sfantul Vasile
Școli aprox. 1814 m
school
Scoala Nr. 18
Școli aprox. 1980 m
Recreere
pub
Dream On Pub
Pub aprox. 482 m
restaurant
Restaurant Perla
Restaurant aprox. 535 m
park
Parc
Parcuri aprox. 706 m
supermarket
Pelendava
Supermarket aprox. 1636 m

Detalii despre preț și costuri

Prețul pe piață

Preț cerut: 125.000 €

Preț min. zonă 84.000 €
Preț max. zonă 225.000 €

77% dintre proprietățile similare ca zonă și nr. camere au prețul cerut mai mare. mai multe...

Bine de știut: prețul unei proprietăți este influențat și de alte caracteristici, cum ar fi: vechime, localizare, vecinătăți, suprafață, compartimentare, amenajări, dotări, etc. mai puțin...

Costuri cu achiziția

Fără credit
8.098 RON
Credit ipotecar
9.853 RON
Noua casă
911 RON+ taxe notariale

i

Costuri adiționale mai puțin știute la achiziție: taxe notariale, comisioane etc.

Proprietăți similare

Apartament cu 3 camere decomandat în Exterior Sud
125.000 € + TVA
Craiova, Exterior Sud
3 camere
72,6 mp
Etaj 3 / 3
Apartament cu 3 camere decomandat în Exterior Sud
135.000 € + TVA
Craiova, Exterior Sud
3 camere
84,7 mp
Etaj 3 / 3
Apartament cu 2 camere decomandat în Calea Severinului
122.000 €
Craiova, Calea Severinului
2 camere
51 mp
Etaj 4 / 9

Detalii de contact

Abonează-te la newsletter să fii primul care primește cele mai noi recomandări de proprietăți și sfaturi de la experți.

CONTACT

Creează alertă

Salvează căutarea ca să primești pe email ultimele anunțuri publicate

Apartamente cu 3 camere de vânzare în zona Exterior Sud, Craiova