3

Apartament 3 camere, 76 mp, zona Industriala Vest

137.000 €

Cristian, Județul Sibiu

Nr. cam.:
3
Sup. utilă:
75,71 mp
Etaj:
Parter / 2
An constr.:
2023 (Finalizată)
  • • Comision 0%
  • • Locație aproximativă

Descriere apartament

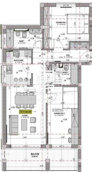
Apartament 3 camere 75,71 mp in Zona Industriala Vest, Cristian, Sibiu - Comision 0% - Proiect modern cu peste 50 de vile situat intr- o zona deosebita, la DOAR 4 minute de Zona Industriala Vest si Aeroport. Accesibilitate si lipsa ambuteiajelor rutiere. DaVinci Homes are 4 intrari - iesiri. Intrare facila spre Sibiu prin 3 rute diferite: (1) centura Sud, (2) centura Nord, (3) DN Sibiu - Cristian. - Suprafata utila: 75,71 mp -Suprafata balcon: 12,84 mp - Compartimentat astfel: hol acces, living, bucatarie inchisa, 2 dormitoare, 2 bai, balcon generos in suprafata de 12,84mp. - Apartamentul se preda la stadiul de ALB: pereti finisati cu lavabila alba, centrala termica, incalzire in pardoseala, instalatii ternice si sanitare pe pozitie. - Exteriorul se preda LA CHEIE: jaluzele electrice la geamuri, izolatie cu vata bazaltica si piatra naturala, balcoane cu granit si sticla securizata, locuri de joaca pentru copii, terenuri pentru sport, trotuare pavate, strazi asfaltate, spatii verzi. - Zona linistita, aer curat si priveliste catre munti. - Apartamentul are 1 loc de parcare inclus in pret. Pret: 137 000 euro tva inclus 𝐃𝐚𝐕𝐢𝐧𝐜𝐢 𝐇𝐨𝐦𝐞𝐬 – 𝐂𝐚𝐫𝐭𝐢𝐞𝐫 𝐫𝐞𝐳𝐢𝐝𝐞𝐧𝐭𝐢𝐚𝐥 𝐩𝐫𝐞𝐦𝐢𝐮𝐦 𝐢𝐧 𝐳𝐨𝐧𝐚 𝐝𝐞 𝐕𝐞𝐬𝐭, 𝐒𝐢𝐛𝐢𝐮 Ansamblu modern situat în Cristian, la doar 4 minute de Zona Industrială Vest și 15 minute de centrul orașului. Apartamente de lux cu încălzire în pardoseală, jaluzele electrice, aer condiționat, finisaje la cheie, balcoane cu granit și sticlă securizată. ✔️ 45% spații verzi ✔️ Vile cu regim redus (6–12 apartamente) ✔️ Arhitectură unitară și vedere panoramică spre munți ✔️ Drumuri pavate, 4 căi de acces, 4 locuri de joacă ✔️ Predare la cheie sau mobilat și utilat 📍 Cristian – zonă aerisită, acces rapid, intimitate și confort ridicat.
Citește mai mult Citește mai puțin
Confort 1 Decomandat 1 Balcon / Terasă / Logie 1 Parcare

Detalii apartament

ID anunț: XEP41005N Copiat! 257538172 Copiat!
Actualizat în: 21 Februarie 2026
Suprafață construită: 91 mp
Nr. bucătării: 1
Nr. băi: 2
Structură rezistență: Cărămidă
Tip imobil: Bloc de apartamente
Regim înălțime: P+2E

Utilități

Izolații termice
Exterior
Utilități
Curent Apă Canalizare CATV Gaze Telefon
Internet
Cablu
Amenajare străzi
Iluminat stradal Mijloace de transport în comun Asfaltate
Comision
0%

Disponibilitate proprietate:

Imediat

Puncte de interes

Mijloace transport
bus-station
Gladiolelor
Stații autobuz aprox. 82 m
bus-station
Indes
Stații autobuz aprox. 220 m
bus-station
Liceul Independentei
Stații autobuz aprox. 227 m
bus-station
Strada Lunga
Stații autobuz aprox. 255 m
Școală
school
Scoala Generala Nr. 13
Școli aprox. 190 m
school
Colegiul Tehnic de Ind. Alimentara(L.I.A.)
Școli aprox. 217 m
kindergarten
Gradinita Nr. 18
Gradinițe aprox. 518 m
university
Facultatea de Jurnalistica
Universități aprox. 654 m
Recreere
bar
Capital
Bar aprox. 65 m
park
Parcul Maria Theresia
Parcuri aprox. 102 m
supermarket
Magazin Non-Stop
Supermarket aprox. 351 m
sports-ground
Teren sportiv
Terenuri sport aprox. 1144 m

Detalii despre preț și costuri

Costuri cu achiziția

Fără credit
7.605 RON
Credit ipotecar
9.299 RON
Noua casă
838 RON+ taxe notariale

i

Costuri adiționale mai puțin știute la achiziție: taxe notariale, comisioane etc.

Proprietăți recomandate

Detalii de contact

Era Property

AUREL Vulcu Consultant imobiliar

Era Property
PRO

Abonează-te la newsletter să fii primul care primește cele mai noi recomandări de proprietăți și sfaturi de la experți.

CONTACT

Creează alertă

Salvează căutarea ca să primești pe email ultimele anunțuri publicate

Apartamente noi cu 3 camere de vânzare în Cristian, Județul Sibiu