OX680 Dumbravita, Pozitie Exelenta, langa Nexfit&Riba

154.900 €

Dumbrăvița, Județul Timiș

Nr. cam.:
3
Sup. utilă:
63 mp
Etaj:
1 / 2
An constr.:
2020 (Finalizată)
  • • Locație aproximativă

Descriere apartament

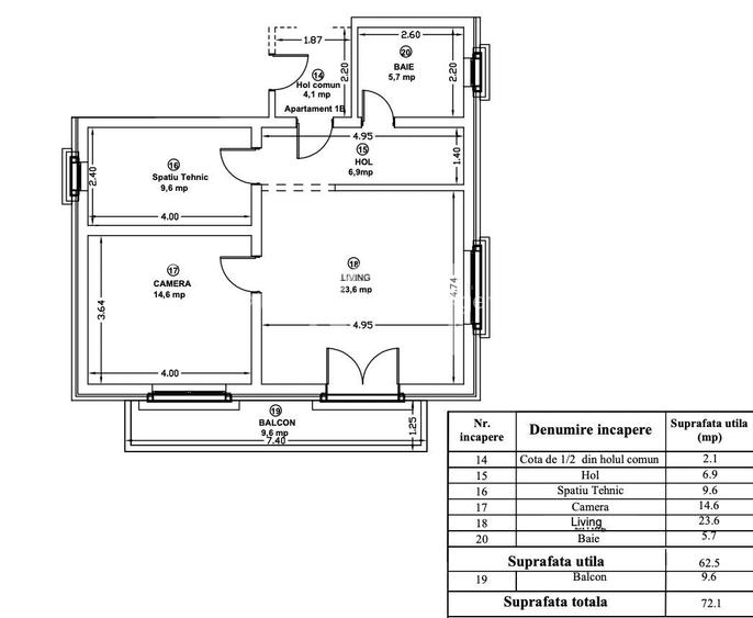
OXIA The Real Estate Agency ofera spre vanzare, in exclusivitate, un apartament elegant cu 3 camere, situat la intrare in Dumbravita, in imediata apropiere Nextfit & Riba. Proprietatea este amplasata la etajul 1 din 2 si are o suprafata de 62,5 mp utili, la care se adauga o terasa generoasa de 9,6 mp, cu acces direct din zona de living. Apartamentul este amenajat integral de catre designer, cu atentie la detalii, finisaje premium si un concept modern, armonios, fiind pregatit pentru mutare imediata sau inchiriere. Compartimentare: Bucatarie + living open space Dormitor matrimonial Dormitor secundar / birou Baie Terasa de 9,6 mp Dotari si finisaje premium: Usa de intrare metalica Usi interioare celulare Gresie si faianta de calitate superioara Parchet laminat Ferestre PVC cu geam termopan Vopsea lavabila Centrala proprie pe gaz Incalzire in pardoseala Sistem de climatizare Apartamentul se vinde complet mobilat si utilat, exact ca in fotografii. In pret sunt incluse doua locuri de parcare proprii, situate in curtea imobilului si notate in Cartea Funciara. Proprietatea este pretabila pentru investitie, datorita amplasarii si nivelului de finisare. OXIA The Real Estate Agency ofera consultanta juridica si financiara completa pe tot parcursul tranzactiei. Pret: 154 900 Euro Pentru mai multe detalii sau pentru programarea unei vizionari: 📞
Citește mai mult Citește mai puțin
Confort 1 Semidecomandat Lux 1 Balcon / Terasă / Logie Aer condiționat Centrală proprie Încălzire prin pardoseală 2 Parcări

Detalii apartament

ID anunț: XBU11028V Copiat! 273304709 Copiat!
Actualizat în: 11 Martie 2026
Suprafață construită: 73 mp
Nr. bucătării: 1
Nr. băi: 1
Structură rezistență: Cărămidă
Tip imobil: Bloc de apartamente
Regim înălțime: P+2E

Utilități

Destinație
Rezidențial
Pereți
Faianță Vopsea lavabilă
Podele
Gresie Parchet
Ușă intrare
Metal
Uși interior
Celulare
Izolații termice
Exterior
Ferestre cu geam termopan
PVC
Contorizare
Apometre Contor gaz
Bucătărie
Mobilată Utilată
Electrocasnice
Aragaz Frigider Hotă Mașină de spălat TV
Facilități imobil
Acoperiș Videointerfon
Utilități
Curent Apă Canalizare CATV Gaze Telefon
Internet
Cablu Wireless
Amenajare străzi
Iluminat stradal Mijloace de transport în comun Asfaltate
Comision
standard

Alte detalii:

https://www.youtube.com/watch?v=GiF4rbU5yo0&ab_channel=OXIAImobiliare

Disponibilitate proprietate:

Imediat

Puncte de interes

Mijloace transport
bus-station
Statie Giratie Selgros E1
Stații autobuz aprox. 992 m
bus-station
Selgros
Stații autobuz aprox. 1185 m
trolleybus-station
Statie Ion Ionescu de la Brad T14
Stații troleibuz aprox. 1271 m
bus-station
Statie Institutul Agronomic E1, T17
Stații autobuz aprox. 1293 m
Școală
kindergarten
Gradinita Scooby
Gradinițe aprox. 249 m
kindergarten
Gradinita Winnie The Pooh
Gradinițe aprox. 934 m
school
Grup Scolar Agricol Iulian Dracea
Școli aprox. 1237 m
university
Universitatea de Stiinte Agricole si Medicina Veterinara a Banatului
Universități aprox. 1466 m
Recreere
park
Parc
Parcuri aprox. 313 m
sports-ground
Teren Tenis
Terenuri sport aprox. 372 m
supermarket
Lidl
Supermarket aprox. 527 m
hypermarket
Decathlon
Hipermarket aprox. 1056 m

Detalii despre preț și costuri

Prețul pe piață

Preț cerut: 154.900 €

Preț min. zonă 38.516 €
Preț max. zonă 199.000 €

89% dintre proprietățile similare ca zonă și nr. camere au prețul cerut mai mic. mai multe...

Bine de știut: prețul unei proprietăți este influențat și de alte caracteristici, cum ar fi: vechime, localizare, vecinătăți, suprafață, compartimentare, amenajări, dotări, etc. mai puțin...

Costuri cu achiziția

Fără credit
8.221 RON
Credit ipotecar
9.991 RON
Noua casă
929 RON+ taxe notariale

i

Costuri adiționale mai puțin știute la achiziție: taxe notariale, comisioane etc.

Proprietăți recomandate

Detalii de contact

OXIA The Real Estate Agency

Bodrojan Oana Real Estate Expert

3.75(4 review-uri)

OXIA The Real Estate Agency
PRO

Abonează-te la newsletter să fii primul care primește cele mai noi recomandări de proprietăți și sfaturi de la experți.

CONTACT

Creează alertă

Salvează căutarea ca să primești pe email ultimele anunțuri publicate

Apartamente cu 3 camere de vânzare în Dumbrăvița, Județul Timiș