Apartament semifinisat, bucatarie inchisa, dressing, parcare, zona Terra

95.000 €

Florești, Județul Cluj

Nr. cam.:
2
Sup. utilă:
55 mp
Etaj:
2 / 3
An constr.:
2025 (Finalizată)
  • • Locație aproximativă

Descriere apartament

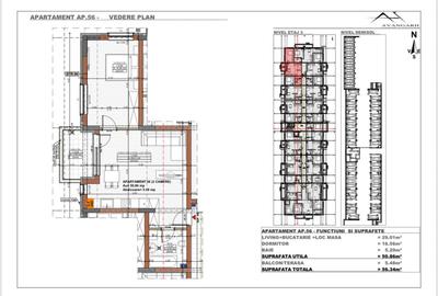
Blitz ofera spre vanzare un apartament semifinisat, 2 camere, loc de parcare. Apartamentul este amplasat la etajul 2 al unui bloc din caramida izolat termic la exterior,, dispune de centrala termica proprie, tamplarie PVC cu geam termopan, usa metalica la intrare si este compus din: hol, living, bucatarie, dormitor, dressing, baie si balcon. Locul de parcare este optional si se poate achizitiona la pretul de 4.000 euro. Pentru mai multe detalii nu ezitati sa ne contactati. Cod oferta / ID BLITZ: P153481
Citește mai mult Citește mai puțin
Semidecomandat Nemobilat 1 Balcon / Terasă / Logie Centrală proprie 1 Parcare 1 Parcare / Garaj / Parcare subterană

Detalii apartament

ID anunț: XFTI108RR Copiat! 270003903 Copiat!
Actualizat în: 23 Februarie 2026
Nr. bucătării: 1
Nr. băi: 1
Structură rezistență: Cărămidă
Tip imobil: Bloc de apartamente
Regim înălțime: D+P+3E

Utilități

Destinație
Rezidențial
Contorizare
Apometre Contor gaz
Utilități
Curent Apă Canalizare Gaze CATV
Amenajare străzi
Asfaltate Iluminat stradal Mijloace de transport în comun
Ferestre cu geam termopan
PVC
Comision
%

Disponibilitate proprietate:

imediat

Puncte de interes

Mijloace transport
bus-station
M-Cartier Terra
Stații autobuz aprox. 841 m
bus-station
M-Prof. Dumitru Mocanu
Stații autobuz aprox. 1087 m
bus-station
M-Prof. Dumitru Mocanu E
Stații autobuz aprox. 1092 m
bus-station
M-Prof. Dumitru Mocanu V
Stații autobuz aprox. 1095 m
Recreere
park
Parc
Parcuri aprox. 788 m
restaurant
Pizza Pizza
Restaurant aprox. 916 m
supermarket
Profi
Supermarket aprox. 1527 m
sports-ground
Teren Fotbal Sintetic
Terenuri sport aprox. 1682 m

Detalii despre preț și costuri

Prețul pe piață

Preț cerut: 95.000 €

Preț min. zonă 75.000 €
Preț max. zonă 147.500 €

79% dintre proprietățile similare ca zonă și nr. camere au prețul cerut mai mare. mai multe...

Bine de știut: prețul unei proprietăți este influențat și de alte caracteristici, cum ar fi: vechime, localizare, vecinătăți, suprafață, compartimentare, amenajări, dotări, etc. mai puțin...

Costuri cu achiziția

Fără credit
5.874 RON
Credit ipotecar
7.378 RON
Noua casă
624 RON+ taxe notariale

i

Costuri adiționale mai puțin știute la achiziție: taxe notariale, comisioane etc.

Proprietăți recomandate

Detalii de contact

BLITZ

BLITZ ROMANIA

4.70(107 review-uri)

BLITZ
PRO

Abonează-te la newsletter să fii primul care primește cele mai noi recomandări de proprietăți și sfaturi de la experți.

CONTACT

Creează alertă

Salvează căutarea ca să primești pe email ultimele anunțuri publicate

Apartamente noi cu 2 camere de vânzare în Florești, Județul Cluj