1

Vând apartament cu 2 camere – Str. Eroilor, Florești | Imobil nou 2025

127.000 €

Florești, Județul Cluj

Nr. cam.:
2
Sup. utilă:
56 mp
Etaj:
3 / 8
An constr.:
2025 (Finalizată)
  • • Comision 0%
  • • Locație exactă

Descriere apartament

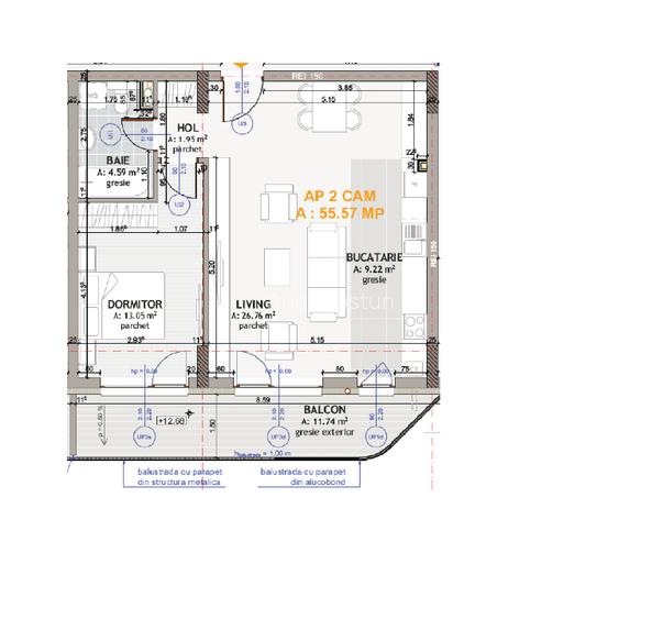
Vand apartament modern cu 2 camere, situat pe Strada Eroilor, în Florești, într-un imobil nou, construit în 2025, ideal atât pentru locuit, cât și pentru investiție. Apartamentul are suprafața utilă de 55,57 mp și beneficiază de un balcon generos de 11,74 mp, fiind amplasat la etajul 3. Compartimentarea este eficientă și practică: living cu bucătărie open-space dormitor baie hol balcon de 11,74 mp Imobilul se predă complet finisat, mobilat și utilat, fiind dotat cu: electrocasnice incorporabile încălzire în pardoseală centrală termică proprie ușă antiefracție geamuri termoizolante tripan Locație foarte bună, cu acces rapid către Cluj-Napoca, magazine, stații de autobuz și alte puncte de interes.
Citește mai mult Citește mai puțin
Confort 1 Semidecomandat

Detalii apartament

ID anunț: XV100065I Copiat! 274411877 Copiat!
Actualizat în: 23 Februarie 2026
Nr. băi: 1
Tip imobil: Bloc de apartamente
Regim înălțime: P+8E

Utilități

Comision
0%

Puncte de interes

Mijloace transport
bus-station
Profi V
Stații autobuz aprox. 163 m
bus-station
Eroilor V
Stații autobuz aprox. 419 m
bus-station
Eroilor E
Stații autobuz aprox. 497 m
bus-station
Primaria Floresti S
Stații autobuz aprox. 598 m
Recreere
supermarket
Profi
Supermarket aprox. 113 m
park
Parc
Parcuri aprox. 159 m
cafe
Adveture of Henry
Cafenea aprox. 296 m
sports-ground
Teren Fotbal Sintetic
Terenuri sport aprox. 405 m

Detalii despre preț și costuri

Prețul pe piață

Preț cerut: 127.000 €

Preț min. zonă 75.000 €
Preț max. zonă 147.500 €

70% dintre proprietățile similare ca zonă și nr. camere au prețul cerut mai mic. mai multe...

Bine de știut: prețul unei proprietăți este influențat și de alte caracteristici, cum ar fi: vechime, localizare, vecinătăți, suprafață, compartimentare, amenajări, dotări, etc. mai puțin...

Costuri cu achiziția

Fără credit
7.265 RON
Credit ipotecar
8.917 RON
Noua casă
787 RON+ taxe notariale

i

Costuri adiționale mai puțin știute la achiziție: taxe notariale, comisioane etc.

Proprietăți recomandate

Detalii de contact

Anda Lostun

Anda Lostun

Abonează-te la newsletter să fii primul care primește cele mai noi recomandări de proprietăți și sfaturi de la experți.

CONTACT

Creează alertă

Salvează căutarea ca să primești pe email ultimele anunțuri publicate

Apartamente noi cu 2 camere de vânzare în Florești, Județul Cluj