Apartament 3 camere de vanzare in Floresti

156.900 €

Florești, Județul Cluj

Nr. cam.:
3
Sup. utilă:
68 mp
Etaj:
Parter / 4
An constr.:
2017
  • • Locație aproximativă

Descriere apartament

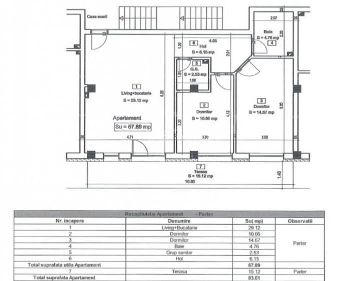
Apartament cu 3 camere si gradina la 5 minute de VIVO! Va prezentam spre vanzare un apartament cu 3 camere, 2 parcari si gradina chiar langa strada Narciselor, drum care duce direct la Vivo, evitand aglomeratia de pe Avram Iancu. Apartamentul dispune de o suprafata utila de 68 mp utili si o terasa de 15 mp, totalul fiind de 83 mp. Din terasa se coboara in curte, loc ideal de joaca pentru cei mici, dar si pentru relaxare. Cei 68 de metri patrati ne pun la dispozitie: - un living open space cu bucatarie; - un dormitor matrimonial; - un dormitor pentru copii; - o baie; - un dressing (care poate fi transformat in baie); - terasa de 15 mp cu acces in gradina; + parcare subterana; In pret intra si o parcare in subteran. Pentru mai multe detalii si consultanta imobiliara de calitate, contactati echipa Napoca Imobiliare. ID oferta: 150006
Citește mai mult Citește mai puțin
Confort 1 Semidecomandat Centrală proprie 1 Parcare 1 Garaj

Detalii apartament

ID anunț: X57Q109E7 Copiat! 251330948 Copiat!
Actualizat în: 09 Martie 2026
Suprafață construită: 83 mp
Nr. bucătării: 1
Nr. băi: 1
Tip imobil: Bloc de apartamente
Regim înălțime: P+4E

Utilități

Pereți
Faianță Vopsea lavabilă
Podele
Parchet
Ușă intrare
Metal
Uși interior
Lemn
Ferestre cu geam termopan
PVC
Utilități
Curent Apă Canalizare Gaze CATV Telefon
Internet
Cablu Fibră optică Wireless
Comision
2% + TVA

Puncte de interes

Mijloace transport
bus-station
Tautiului S
Stații autobuz aprox. 502 m
bus-station
Tautiului N
Stații autobuz aprox. 521 m
bus-station
Sub Cetate E
Stații autobuz aprox. 715 m
bus-station
Sub Cetate V
Stații autobuz aprox. 717 m
Recreere
park
Parcul Poligon
Parcuri aprox. 272 m
bar
City Cafe
Bar aprox. 1020 m
supermarket
Diana
Supermarket aprox. 1454 m
sports-ground
Teren Fotbal Sintetic
Terenuri sport aprox. 1532 m

Detalii despre preț și costuri

Prețul pe piață

Preț cerut: 156.900 €

Preț min. zonă 85.000 €
Preț max. zonă 195.000 €

74% dintre proprietățile similare ca zonă și nr. camere au prețul cerut mai mic. mai multe...

Bine de știut: prețul unei proprietăți este influențat și de alte caracteristici, cum ar fi: vechime, localizare, vecinătăți, suprafață, compartimentare, amenajări, dotări, etc. mai puțin...

Costuri cu achiziția

Fără credit
8.292 RON
Credit ipotecar
10.071 RON
Noua casă
940 RON+ taxe notariale

i

Costuri adiționale mai puțin știute la achiziție: taxe notariale, comisioane etc.

Proprietăți recomandate

Detalii de contact

Napoca Imobiliare

Admin

3.44(14 review-uri)

Napoca Imobiliare
PRO

Abonează-te la newsletter să fii primul care primește cele mai noi recomandări de proprietăți și sfaturi de la experți.

CONTACT

Creează alertă

Salvează căutarea ca să primești pe email ultimele anunțuri publicate

Apartamente cu 3 camere de vânzare în Florești, Județul Cluj