4 camere in Centru, bloc nou faza incipienta

160.000 €

Mazepa 1, Galați

Nr. cam.:
4
Sup. utilă:
85 mp
Etaj:
1 / 4
An constr.:
2024 (În construcție)
  • • Locație exactă

Descriere apartament

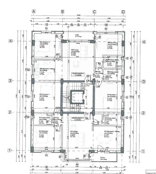
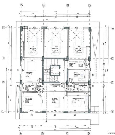
E prima data cand publicam detalii despre acest nou bloc de apartamente situat in Centrul Galati-ului, pe strada Nicolae Balcescu, la doi pasi de Facultatea de Studii Economice. Se doreste o cladire valoroasa, cu finisaje foarte bune, intr-o zona excelenta, dar mai ales cu suprafete mari, camere largi, bucatarie separata, balcoane frumoase, pe care le poti folosi pentru relaxare, nu doar o zona de uscat rufe. Un aspect, pe care eu il consider foarte important este faptul ca sunt maxim 9 apartamente. Putini vecini, putine nenorociri, atmosfera intima, liniste... Totusi sa vedem, este posibil ca in final sa ramana mai putini vecini, depinde cum vom imparti apartamentele. Prea mult nu o sa va ajute schitele atasate, insa vreau doar sa va faceti o idee despre organizarea spatiului, compartimentare, etc. Sunt doua apartamente mari, primul cu patru camere, al doilea cu trei camere, cu o mica variatie la parter, unde trebuie sa exista spatiu pentru intrarea bloc. Cladirea dispune de lift, situat in mijloc, poate fi accesat de la demisol. Chiar daca nu are multe etaje, standardul impune acest lucru. Pentru fiecare apartament exista un loc de parcare in curtea imobilului, lotul de teren este de aproximativ 800mp. In afara de parcare, va ramane ceva spatiu verde si o zona de relaxare. Cei care ne vor contacta din timp vor avea optiunea de a cumpara ambele apartamente de pe un nivel, ajungand astfel la o suprafata foarte mare de aproximativ 200mp, impartita dupa necesitatile proprii, cu ajutorul unul proiect de design interior. Bineinteles acest super apartament va beneficia de doua locuri de parcare. Ambitiile sunt foarte mari pentru aceasta cladire. Dezvoltatorul insista in ceea ce priveste nivelul de finisare, rezultatul final ar trebui sa fie peste tot ce exista la acest moment in oras. Cladiri cu apartamente putine si frumoase mai gasim si pe Faleza, pe bld. Cosbuc aproape de Papadie, dar constructii bune cu finisaje actuale si suprafete decente, nu prea s-au construit in ultimii ani in Galati. Acum e ocazia sa cumparati ceva deosebit, in contrapartida cu reactualizarea unei proprietati din cele existente. Despre posibilitati de achizitie si finantare, termeni de executie si alte detalii, vom discuta la momentul vizionarii. Sper sa va placa ideea si sa fiti deja intrigati. Personal consider acest proiect, cea mai buna optiuni din Galati, daca nu vrei sa stai la casa. Asa cum vedeti sunt foarte putine, noi credem ca se vor da repede, asa ca ar trebui sa reactionati repede daca veti dori sa aveti o optiune de cumparare. Partea pozitiva este ca momentul predarii nu este chiar atat de aproape, estimam un an de zile din acest moment. Aveti destul timp sa va aranjati bugetele in asa fel, incat sa reusiti sa faceti o achizitie buna. Numele meu este Florin Cogean, va multumim pentru ca accesati ofertele noastre, pentru alte detalii, va rugam sa ne contactati.
Citește mai mult Citește mai puțin
Confort 1 Decomandat Nemobilat 1 Balcon / Terasă / Logie Grădină Curte Aer condiționat 1 Parcare Bine întreținut (Bună)

Detalii apartament

ID anunț: X4S4000NH Copiat! 53394193 Copiat!
Actualizat în: 24 Iunie 2025
Suprafață utilă totală: 85 mp
Suprafață construită: 95 mp
Nr. bucătării: 3
Nr. băi: 2
Structură rezistență: Beton
Tip imobil: Bloc de apartamente
Regim înălțime: P+4E

Utilități

Destinație
Rezidențial
Pereți
Faianță Vopsea lavabilă
Podele
Gresie
Ușă intrare
Metal
Uși interior
Celulare
Ferestre cu geam termopan
PVC
Contorizare
Contor gaz
Alte spații utile
Terasă WC Serviciu
Facilități imobil
Lift
Utilități
Curent Apă Canalizare
Internet
Fibră optică Wireless
Comision
1,5%

Certificat energetic:

Clasa energetică: B

Puncte de interes

Mijloace transport
bus-station
Trei Star
Stații autobuz aprox. 156 m
bus-station
Agentia de Voiaj CFR
Stații autobuz aprox. 222 m
tram-station
Piata Centrala
Stații tramvai aprox. 1020 m
tram-station
Str. Posta Veche
Stații tramvai aprox. 1546 m
Școală
school
Club Alice
Școli aprox. 321 m
school
Scoala Generala nr. 2
Școli aprox. 913 m
kindergarten
Gradinita nr. 9 Sf. Nicolae
Gradinițe aprox. 1064 m
university
Universitatea Dunarea de Jos
Universități aprox. 1314 m
Recreere
restaurant
Orizont
Restaurant aprox. 91 m
supermarket
Profi
Supermarket aprox. 133 m
park
Parc Mazepa La Ceas
Parcuri aprox. 166 m
sports-ground
Five Star Bowling
Terenuri sport aprox. 1356 m

Detalii despre preț și costuri

Prețul pe piață

Preț cerut: 160.000 €

Preț min. zonă 68.500 €
Preț max. zonă 230.000 €

99% dintre proprietățile similare ca zonă și nr. camere au prețul cerut mai mic. mai multe...

Bine de știut: prețul unei proprietăți este influențat și de alte caracteristici, cum ar fi: vechime, localizare, vecinătăți, suprafață, compartimentare, amenajări, dotări, etc. mai puțin...

Costuri cu achiziția

Fără credit
20.632 RON
Credit ipotecar
22.424 RON
Noua casă
956 RON+ taxe notariale

i

Costuri adiționale mai puțin știute la achiziție: taxe notariale, comisioane etc.

Proprietăți recomandate

Detalii de contact

Abonează-te la newsletter să fii primul care primește cele mai noi recomandări de proprietăți și sfaturi de la experți.

CONTACT

Creează alertă

Salvează căutarea ca să primești pe email ultimele anunțuri publicate

Apartamente cu 4+ camere de vânzare în zona Mazepa 1, Galați