1

COPOU – GAUDEAMUS – Etaj 1, Apartament 2 camere.

127.500 €

Copou, Iași

Nr. cam.:
2
Sup. utilă:
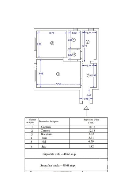
49 mp
Etaj:
1 / 9
An constr.:
1961
  • • Locație exactă

Descriere apartament

Agenția Viva Imobiliare vă propune spre achiziție în zona Copou – Gaudeamus, un apartament cu 2 camere , cu o suprafață totală de 49 mp, situat la etajul 1, construit în anii 1960 – 1962 Apartamentul este prevăzut cu centrală termică înlocuită recent, tâmplărie PVC, izolație exterioară, instalație termică pe cupru, geam la baie, parchet din lemn masiv. Spațiul din fața blocului este amenajat cu gazon și prevăzut cu un loc de joacă pentru copii Pentru mai multe detalii și vizionare contactați consilierul imobiliar Ștefan Nicolae la numărul de telefon !
Citește mai mult Citește mai puțin
Confort 1 Semidecomandat

Detalii apartament

ID anunț: X9PD001DK Copiat! 263629677 Copiat!
Actualizat în: 27 Noiembrie 2025
Suprafață utilă totală: 49 mp
Suprafață construită: 49 mp
Nr. bucătării: 1
Nr. băi: 1
Structură rezistență: Beton
Tip imobil: Bloc de apartamente
Regim înălțime: P+9E

Utilități

Destinație
Rezidențial
Utilități
Curent Apă Canalizare CATV Telefon
Internet
Cablu Fibră optică Wireless
Amenajare străzi
Asfaltate Iluminat stradal Mijloace de transport în comun

Puncte de interes

Mijloace transport
bus-station
Triumf
Stații autobuz aprox. 30 m
tram-station
Triumf
Stații tramvai aprox. 39 m
bus-station
Statia Triumf 6B 41, 42, 28, 41B,
Stații autobuz aprox. 40 m
train-station
Gara Iasi NORD
Stații tren aprox. 1577 m
Școală
school
Colegiul National "Garabet Ibraileanu"
Școli aprox. 216 m
school
Colegiul Tehnic Gheorghe Asachi
Școli aprox. 264 m
university
Universitatea de Arte "George Enescu" (en)
Universități aprox. 277 m
kindergarten
Gradinita si Scoala Paradis
Gradinițe aprox. 709 m
Recreere
sports-ground
Teren sportiv
Terenuri sport aprox. 182 m
supermarket
Supermagazin Copou
Supermarket aprox. 184 m
park
Parcul Copou
Parcuri aprox. 196 m
public-square
Piata/Square Mihai Eminescu (en)
Piețe publice aprox. 1440 m

Detalii despre preț și costuri

Prețul pe piață

Preț cerut: 127.500 €

Preț min. zonă 95.000 €
Preț max. zonă 183.000 €

65% dintre proprietățile similare ca zonă și nr. camere au prețul cerut mai mic. mai multe...

Bine de știut: prețul unei proprietăți este influențat și de alte caracteristici, cum ar fi: vechime, localizare, vecinătăți, suprafață, compartimentare, amenajări, dotări, etc. mai puțin...

Costuri cu achiziția

Fără credit
7.279 RON
Credit ipotecar
8.933 RON
Noua casă
790 RON+ taxe notariale

i

Costuri adiționale mai puțin știute la achiziție: taxe notariale, comisioane etc.

Proprietăți recomandate

Detalii de contact

Viva Imobiliare

Stefan Nicolae consilier imobiliar

Viva Imobiliare
PRO

Abonează-te la newsletter să fii primul care primește cele mai noi recomandări de proprietăți și sfaturi de la experți.

CONTACT

Creează alertă

Salvează căutarea ca să primești pe email ultimele anunțuri publicate

Apartamente cu 2 camere de vânzare în zona Copou, Iași