2 Camere | Etaj 1- 70Mp | Bloc Intabulat + Loc Parcare | Copou-Hotel Grand View

120.000 €

Copou, Iași

Nr. cam.:
2
Sup. utilă:
70 mp
Etaj:
1 / 6
An constr.:
2025 (Finalizată)
  • • Locație exactă

Descriere apartament

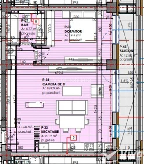
Apartament INTABULAT! Poate fi achiziționat cash sau prin credit! Vă propunem spre vânzare un apartament cu 2 camere – modelul semi-decomandat, cu suprafața totală de 70mp (57mp + 13mp balcon) , situat la etajul 1/6 a unui bloc finalizat în 2025, situat în complex nou, zona Copou- Aleea Sadoveanu, lângă Hotelul Grand View! Loc de parcare acoperit și Intabulat inclus în preț! Prețul este de 120.000€ – preț fără TVA iar vânzare se face de la persoană fizică! Dotări apartament : – aparat de aer condiționat; – centrală termică și încălzire prin pardoseală; – termostat independent pentru fiecare încăpere; – spații vitrate mari cu iluminare naturală; – ușă exterioară metalică antifurt; – interfon video inteligent; – parchet triplu stratificat cu rezistenta la trafic intens; – bloc dotat cu 2 lifturi.; Pentru mai multe detalii și vizionare contactați consilierul imobiliar Ștefan Nicolae la numărul de telefon
0759 **** Vezi tot numărul
!
Citește mai mult Citește mai puțin
Semidecomandat Nemobilat 1 Balcon / Terasă / Logie Aer condiționat Centrală proprie Încălzire prin pardoseală 1 Parcare Renovat Bine întreținut (Bună)

Detalii apartament

ID anunț: X9PD001LI Copiat! 275213185 Copiat!
Actualizat în: 06 Martie 2026
Nr. bucătării: 1
Nr. băi: 1
Structură rezistență: Cărămidă
Tip imobil: Bloc de apartamente
Regim înălțime: P+6E

Utilități

Destinație
Rezidențial
Pereți
Faianță Vopsea lavabilă
Podele
Parchet Gresie
Ușă intrare
Metal
Uși interior
Lemn
Ferestre cu geam termopan
PVC
Contorizare
Contor gaz Apometre
Facilități imobil
Lift Videointerfon
Utilități
CATV Gaze Telefon Curent Canalizare Apă
Internet
Cablu Fibră optică Wireless Dial-up
Servicii imobil
Administrare
Amenajare străzi
Asfaltate Iluminat stradal Mijloace de transport în comun

Puncte de interes

Mijloace transport
tram-station
Statia "Stadion", liniile de tramvai 1,8,13
Stații tramvai aprox. 34 m
bus-station
Stadion
Stații autobuz aprox. 52 m
bus-station
Statia "Stadion", linia de autobuz 41,41b,42
Stații autobuz aprox. 56 m
tram-station
Stadion
Stații tramvai aprox. 61 m
Școală
school
Liceu cu Program Sportiv Iasi
Școli aprox. 153 m
school
Liceul de Informatica "Grigore Moisil"
Școli aprox. 376 m
kindergarten
GRĂDINIȚA CU PROGRAM PRELUNGIT NR. 14
Gradinițe aprox. 625 m
university
Agricultural and Veterinary Medicine University (en)
Universități aprox. 745 m
Recreere
park
Parc
Parcuri aprox. 72 m
restaurant
Arena ?
Restaurant aprox. 168 m
sports-ground
Teren Sport
Terenuri sport aprox. 335 m
supermarket
Supermagazin Copou
Supermarket aprox. 872 m

Detalii despre preț și costuri

Prețul pe piață

Preț cerut: 120.000 €

Preț min. zonă 95.000 €
Preț max. zonă 183.000 €

88% dintre proprietățile similare ca zonă și nr. camere au prețul cerut mai mare. mai multe...

Bine de știut: prețul unei proprietăți este influențat și de alte caracteristici, cum ar fi: vechime, localizare, vecinătăți, suprafață, compartimentare, amenajări, dotări, etc. mai puțin...

Costuri cu achiziția

Fără credit
7.021 RON
Credit ipotecar
8.643 RON
Noua casă
751 RON+ taxe notariale

i

Costuri adiționale mai puțin știute la achiziție: taxe notariale, comisioane etc.

Proprietăți similare

Apartament cu 2 camere decomandat în Copou
129.000 €
Iași, Copou
2 camere
51 mp
Etaj 1
Apartament cu 2 camere decomandat în Copou
110.000 € + TVA
Iași, Copou
2 camere
56,11 mp
Etaj 5
Apartament cu 2 camere în Copou
114.900 €
Iași, Copou
2 camere
56 mp
Etaj 8

Detalii de contact

Viva Imobiliare

Stefan Nicolae consilier imobiliar

Viva Imobiliare
PRO

Abonează-te la newsletter să fii primul care primește cele mai noi recomandări de proprietăți și sfaturi de la experți.

CONTACT

Creează alertă

Salvează căutarea ca să primești pe email ultimele anunțuri publicate

Apartamente noi cu 2 camere de vânzare în zona Copou, Iași