3

Apartament 3 camere - reper Lac Rediu - 75mp

116.000 €

Păcurari, Iași

Nr. cam.:
3
Sup. utilă:
75 mp
Etaj:
1 / 2
An constr.:
2025 (Finalizată)
  • • Locație aproximativă

Descriere apartament

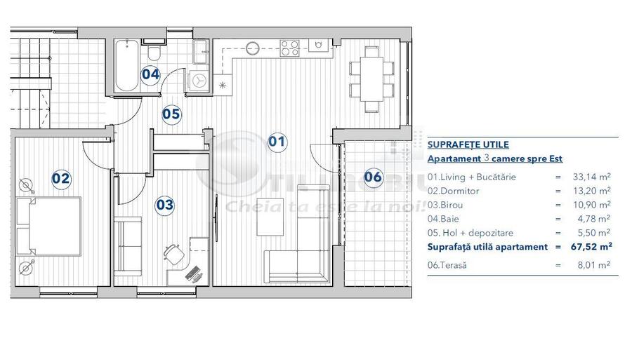
Va propunem spre achizitie un superb apartament cu 3 camere, in cadrul unui proiect rezidential ce va insuma 4 blocuri cu regim mic de inalitme P+2E, cu cate 6 apartamente in bloc. Imobilul beneficiaza de o comaprtimentare moderna, open - space living cu bucataria, cu o suprafata de 33mp, cu posibilitate de a inchide bucataria, 2 dormitoare, hol cu dressing, baie cu geam, balcon tip terasa. Apartamentul beneficiaza de incalzire in pardoseala, finisaje premium la alegere. Loc parcare 4000Euro, intabulat! Loc de joaca ce va fi amenajat in complex. Posibilitate de achizitie boxa - 5000Euro. Se accepta credit. Mutare imediata!
Citește mai mult Citește mai puțin
Confort 1 Decomandat 1 Balcon Centrală proprie Încălzire prin pardoseală 1 Parcare

Detalii apartament

ID anunț: X5AK10J3Q Copiat! 274201947 Copiat!
Actualizat în: 27 Ianuarie 2026
Suprafață construită: 85 mp
Nr. bucătării: 1
Nr. băi: 1
Structură rezistență: Cărămidă
Tip imobil: Bloc de apartamente
Regim înălțime: P+2E

Utilități

Destinație
Rezidențial
Pereți
Faianță
Podele
Gresie Parchet
Ușă intrare
Metal
Uși interior
Celulare
Contorizare
Apometre Contor căldură Contor gaz
Utilități
Curent Apă Canalizare CATV Gaze Telefon
Acces internet
Cablu
Amenajare străzi
Iluminat stradal Mijloace de transport în comun Asfaltate

Disponibilitate proprietate:

Imediat

Puncte de interes

Mijloace transport
bus-station
Statia "I.V.V Copou", linia 6b
Stații autobuz aprox. 1806 m
bus-station
Statia "Rond Politie", linia 20
Stații autobuz aprox. 1981 m
bus-station
Popasul Pacurari
Stații autobuz aprox. 1987 m
bus-station
Daewoo
Stații autobuz aprox. 1989 m
Școală
school
Scoala
Școli aprox. 1706 m
school
Scoala Normala 'Vasile Lupu'
Școli aprox. 1955 m
Recreere
sports-ground
Teren sportiv
Terenuri sport aprox. 706 m
restaurant
Casablanca (for events only)
Restaurant aprox. 874 m
sports-ground
Teren sportiv
Terenuri sport aprox. 1500 m
park
Parc
Parcuri aprox. 1968 m

Detalii despre preț și costuri

Prețul pe piață

Preț cerut: 116.000 €

Preț min. zonă 92.562 €
Preț max. zonă 179.000 €

80% dintre proprietățile similare ca zonă și nr. camere au prețul cerut mai mare. mai multe...

Bine de știut: prețul unei proprietăți este influențat și de alte caracteristici, cum ar fi: vechime, localizare, vecinătăți, suprafață, compartimentare, amenajări, dotări, etc. mai puțin...

Costuri cu achiziția

Fără credit
6.861 RON
Credit ipotecar
8.466 RON
Noua casă
731 RON+ taxe notariale

i

Costuri adiționale mai puțin știute la achiziție: taxe notariale, comisioane etc.

Proprietăți recomandate

Detalii de contact

STIL IMOBIL

Alexandru Popa Specialist Broker

STIL IMOBIL

Abonează-te la newsletter să fii primul care primește cele mai noi recomandări de proprietăți și sfaturi de la experți.

CONTACT

Creează alertă

Salvează căutarea ca să primești pe email ultimele anunțuri publicate

Apartamente noi cu 3 camere de vânzare în zona Păcurari, Iași