Apartamente cu 3 camere de vânzare în zona Nicolina, Iași
122 / 122 anunțuri- Top Listing
- Cele mai recente
- Preț (cel mai mic)
- Preț (cel mai mare)
Home Imobiliare va propune spre vanzare un apartament cu 3 camere situat intr-un bloc din zona Nicolina Prima Statie! Imobilul este situat la etajul 3 unui a unui bloc cu 4 nivele in imediata apropiere...
Proprietar, vand apartament 3 camere in zona Nicolina. Avantaje apartament: - etaj intermediar - decomandat, bloc din 80, fara risc - centrala termica, izolat exterior, geam termopan - la 2 minute de...
Activează notificările pentru a fi la curent cu cele mai noi anunțuri imobiliare.
Dezactivează notificările dacă nu vrei să mai fii la curent cu cele mai noi anunțuri imobiliare.
Va propun spre vanzare un apartament cu 3 camere decomandat suprafata 59Mp situat la etajul 2 din 4 intr-un bloc construit in 1981. Blocul se afla in planul 2 intr-o zona linistita si foarte aproape de...
casa-alba.ro - din 2001 Impartim bucuria de a fi acasa! OFERTA RECOMANDATA! Agentia Imobiliara Casa Alba va prezinta spre vanzare un apartament cu 3 camere luminos si foarte primitor, transformat din...
Apartament 3 camere, tip 3B, decomandat, suprafata 99,90 mp, compartimentat astfel: - hol acces 16,50mp - living 22,90mp - bucatarie 7,30mp - dormitor 14,80mp - dormitor 12mp - baie 4,50mp - baie 2,40mp...
Apartament 3 camere, tip 3B, decomandat, suprafata 99,90 mp, compartimentat astfel: Apartamentul este echipat cu: încălzire prin pardoseală cu sistem TECE, tavane Barrisol, tâmplărie PVC 6 camere tripan,...
Cauți un apartament în Iași, într-o zonă liniștită și accesibilă? ADAMANT ECLYPSE îți oferă variante cu 1,2,3 și 4 camere decomandate și openspace, cu suprafețe între 44,3mp și 102,9mp, amplasate in zona...
Agentia Elit Casa va propune spre vanzare un apartament cu 3 camere decomandat, in zona Nicolina, situat la etaju 2 4, cu o suprafata totala 72 mp. Apartamentul dispune de centrala termica, balcon inchis,...
Agentia Elit Casa va propune spre vanzare un apartament cu 3 camere, decomandat, in zona Nicolina, situat la etajul 34, cu o suprafata totala 70mp. Apartamentul dispune de incalzire de la centrala termica...
Apartament 3 camere, 2 bai, DECOMANDAT, mobilat si utilat, aflat la etajul 4 4, intr-un bloc din anul 1984 din zona Nicolina - prima statie. Apartamentul are o suprafata de aproximativ 72 mp si este compus...
Vă propun spre vânzare un apartament cu 3 camere, decomandat, situat într-o zonă foarte bine cotată a orașului, pe Strada Libertății, cartier Nicolina 2. Imobilul are o suprafață totală de 72 mp și este...
Cod Oferta: PG89577 Compania Imobiliara PREMIER Grup va propune spre achizitie un apartament cu 3 camere, modelul decomandat cu 2 bai, aflat intr-un bloc construit in anul 1984, neincadrat la risc seismic,...
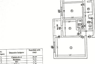
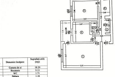
Locuința este amplasată la etajul 3 din 4, într-un bloc construit în 1987, și dispune de o suprafață utilă de 64mp, la care se adaugă un balcon generos de 12mp perfect ca și spațiu suplimentar de depozitare....
Agentia Elit Casa va propune spre vanzare un apartament cu 3 camere, decomandat, in zona Nicolina, situat la etajul 14, cu o suprafata totala 62 mp. Apartamentul dispune de balcon inchis, usa metalica,...
Cabinet Imobiliar vă propune spre vanzare un apartament cu 3 camere decomandat, etaj 78 cu o suprafata de 72 mp situat in zona Frumoasa. Apartamentul se află într-un bloc liniștit în imediata apropiere...
Cauți un apartament în Iași, într-o zonă liniștită și accesibilă? ADAMANT ECLYPSE îți oferă variante cu 1,2,3 și 4 camere decomandate și openspace, cu suprafețe între 44,3mp și 102,9mp, amplasate in zona...
Va propunem spre vanzare un apartament cu 3 camere, model decomandat, situat la etajul 3 din 4 al unui bloc construit in 1982 in Nicolina 2 Apartamentul dispune de centrala termica proprie, 2 bai, balcon...
Agentia Top Imobil va propune spre vanzare un apartament cu 3 camere decomandat situat in zona Nicolina 1, la etajul 2 din 4, intr-un bloc construit in anul 1984. Apartamentul dispune de o suprafata de...
Apartament 3 camere Nicolina 2 Nr. Tel: 0766376920 Apartament de Vanzare -72 mp, Nicolina 2 - pret 160.000 euro negociabil Proprietar, vand imobil situat in Nicolina 2, imobilul fiind din 1986,bloc fara...
Cod Oferta: PG90232 Compania Imobiliara PREMIER Grup va propune spre achizitie un apartament cu 3 camere, modelul openspace, aflat intr-un bloc relativ nou construit in anul 2009, neincadrat la risc seismic,...
Apartament decomandat de 68 mp, orientat sud, renovat integral in 2022 Compartimentare: 3 camere, 2 bai, bucatarie separata, balcon Decomandat, parter Orientare sud, lumina naturala dupa-amiaza Finisaje...
BLITZ vă propune spre vânzare un apartament cu 3 camere, decomandat, cu o compartimentare excelentă și finisaje premium, situat într-o zonă foarte liniștită, aproape de toate facilitățile necesare unui...
Apartament 3 camere Nicolina 2 Etaj 3, 72mp Totali Liber Orice formă de plată Preț: 139.500 EUR Descriere: Vă propunem spre vânzare un apartament cu 3 camere, situat într-una dintre cele mai verzi și...
Va propun spre vanzare un apartament cu 3 camere decomandat suprafata 75mp cu 2 bai si 2 balcoane situat la etajul 3 din 4 intr-un bloc construit in 1983. Blocul beneficiaza de o pozitionare excelenta,...
Va propun spre vanzare un apartament cu 3 camere decomandat suprafata 77mp situat la etajul 3 din 4 intr-un bloc construit in 1986. Blocul se afla in planul 2 intr-o zona linistita si foarte aproape de...
Imobil.Ro va propune spre vanzare un apartament cu 3 camere in zona Nicolina - Ocazie Caracteristici: Compartimentare: Decomandat Suprafata: 77 mp Etaj: 2 in bloc cu 4 etaje Constructie bloc: 1982 Avantaje:...
Agentia DHD Imobiliare va propune spre vanzare un apartament cu 3 camere decomandat, situat in Nicolina, in spate la LIDL, pe strada Salciilor. Aflat la etajul 2 intr-un bloc construit in anul 1980, dispune...
BLITZ ofera spre vanzare un apartament cu 3 camere, situat la etaj intermediar, in zona Nicolina Prima Statie, o zona foarte accesibila, cu mijloace de transport, magazine si alte puncte de interes...
Blitz vă propune spre vânzare un apartament cu 3 camere, decomandat, situat în zona Nicolina Pod, una dintre cele mai căutate zone din Iași, cu acces rapid către toate punctele de interes ale orașului....
Va propunem spre vanzare un apartament cu 3 camere, model decomandat, situat la etajul 4 din 4 al unui bloc construit in 1984 in zona Nicolina 2 - Clopotari Apartamentul dipune de centrala termica proprie,...
Căutări populare
Te-ar putea interesa și:
- Apartamente noi cu 3 camere în zona Nicolina, Iași
- Apartamente noi cu 2 camere în zona Nicolina, Iași
- Case individuale cu 4+ camere în zona Nicolina, Iași
- Apartamente cu 3 camere de vânzare în zona Primăverii, Iași
- Apartamente cu 3 camere în zona Oancea, Iași
- Apartamente cu 3 camere în zona Dancu, Iași
- Case și vile cu 4+ camere în zona Nicolina, Iași
- Apartamente cu 2 camere în Județul Iași
- Apartamente cu 3 camere de vânzare în Vișan, Județul Iași
- Apartamente în zona Dunărea, Galați
GĂSEȘTI CASA CU CARE CHIAR TE POTRIVEȘTI
GĂSEȘTI CASA CU CARE CHIAR TE POTRIVEȘTI
SERVICIILE NOASTRE
SERVICIILE NOASTRE
CONTACT
-
Sediul central - Timișoara Bulevardul Victor Babeș nr. 2, 300230, Timișoara, România Tel: +40.374.40.44.98 / Fax: +40.256.401.179 Email: suport@imobiliare.ro Luni - Vineri 08:00 - 20:00 Punct de lucru - București: Iride Business Park, Bld. Dimitrie Pompeiu 9-9A, Clădirea B2B, 020335, Sector 2, București, România
CONTACT
-
Sediul central - Timișoara Bulevardul Victor Babeș nr. 2, 300230, Timișoara, România Tel: +40.374.40.44.98 / Fax: +40.256.401.179 Email: suport@imobiliare.ro Luni - Vineri 08:00 - 20:00 Punct de lucru - București: Iride Business Park, Bld. Dimitrie Pompeiu 9-9A, Clădirea B2B, 020335, Sector 2, București, România
Creează alertă
Salvează căutarea ca să primești pe email ultimele anunțuri publicate
Apartamente cu 3 camere de vânzare în zona Nicolina, Iași