1

Apartament cu 3 camere decomandat, 2 bai - Pacurari

162.000 €

Păcurari, Iași

Nr. cam.:
3
Sup. utilă:
84 mp
Etaj:
2 / 10
An constr.:
1989 (Finalizată)
  • • Locație aproximativă
  • • Vizionare prin apel video

Descriere apartament

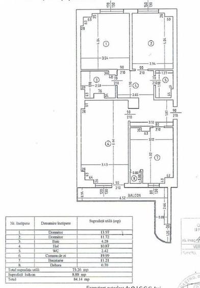
Agentia Top Imobil va propune spre vanzare un apartament cu 3 camere decomandat, model cu 2 bai, confort 1, vedere dubla, situat in zona Pacurari, la bulevard, bloc pe cadre construit construit in anul 1990. Apartamentul este situat la etajul 2, intr-un bloc cu lift, dispune de o suprafata de 84 mp, are balcon inchis cu termopan, centrala termica noua, izolatie exterioara, instalatie electrica si sanitara schimbate, usi de termopan, tamplarie pvc, usa metalica. Imobilul este situat intr-o zona cheie cu acces facil la mijloacele de transport in comun, in vecinatatea centrelor comerciale, farmaciilor, scolilor si al oricarui punct de interes. Pret: 162.000 Euro negociabil Contact:
Citește mai mult Citește mai puțin
Decomandat 1 Balcon

Detalii apartament

ID anunț: XCGV102VP Copiat! 274786753 Copiat!
Actualizat în: 05 Februarie 2026
Suprafață utilă totală: 84 mp
Suprafață construită: 84 mp
Nr. băi: 2
Structură rezistență: Altele
Tip imobil: Bloc de apartamente
Regim înălțime: P+10E

Utilități

Destinație
Rezidențial

Puncte de interes

Mijloace transport
bus-station
Rond Pacurari
Stații autobuz aprox. 368 m
bus-station
Statia "Pacurari", linia 18,20,43,43c,46
Stații autobuz aprox. 399 m
tram-station
Rond Canta
Stații tramvai aprox. 706 m
tram-station
Sergent Grigore Ioan
Stații tramvai aprox. 1097 m
Școală
school
Sc Gen Elena Cuza
Școli aprox. 1109 m
kindergarten
Gradinita cu program normal nr.15
Gradinițe aprox. 1172 m
kindergarten
Gradinita Nr. 9
Gradinițe aprox. 1204 m
school
Scoala Elena Cuza
Școli aprox. 1467 m
Recreere
sports-ground
Teren sportiv
Terenuri sport aprox. 88 m
restaurant
Restaurant Imperium Iasi (en)
Restaurant aprox. 340 m
supermarket
Kaufland (Pacurari)
Supermarket aprox. 517 m
park
Parc
Parcuri aprox. 620 m

Detalii despre preț și costuri

Prețul pe piață

Preț cerut: 162.000 €

Preț min. zonă 92.562 €
Preț max. zonă 179.000 €

63% dintre proprietățile similare ca zonă și nr. camere au prețul cerut mai mic. mai multe...

Bine de știut: prețul unei proprietăți este influențat și de alte caracteristici, cum ar fi: vechime, localizare, vecinătăți, suprafață, compartimentare, amenajări, dotări, etc. mai puțin...

Costuri cu achiziția

Fără credit
8.463 RON
Credit ipotecar
10.263 RON
Noua casă
965 RON+ taxe notariale

i

Costuri adiționale mai puțin știute la achiziție: taxe notariale, comisioane etc.

Proprietăți recomandate

Detalii de contact

TOP IMOBIL

Georgiana Moraru Consultant Imobiliar

TOP IMOBIL
PRO

Abonează-te la newsletter să fii primul care primește cele mai noi recomandări de proprietăți și sfaturi de la experți.

CONTACT

Creează alertă

Salvează căutarea ca să primești pe email ultimele anunțuri publicate

Apartamente cu 3 camere de vânzare în zona Păcurari, Iași