2

Apartament 100 m de plaja Mamaia Nord

115.000 €

Mamaia-Sat, Județul Constanța

Nr. cam.:
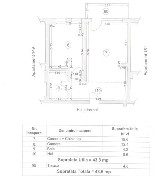
2
Sup. utilă:
50 mp
Etaj:
6 / 7
An constr.:
2022 (Finalizată)
  • • Locație exactă

Descriere apartament

Cand te gandesti sa cumperi un apartament, fie ca va fi casa ta de vacanta, fie o investitie imobiliara cu scop turistic, trebuie sa iei in considerare cateva criterii esentiale. Poate cel mai important dintre acestea este pozitia si beneficiile pe care ti le ofera zona. Apartamentul care face subiectul acestui anunt este pozitionat in proximitatea marii la doar 100m de plaja, avand mai multe spatii comerciale precum marketuri si restaurante in imediata apropiere.Pentru a spori confortul si a te scapa de o grija, imobilul beneficiaza si de un loc de parcare la subteran in proprietate,piscina in incinta blocului,imobilul se vinde mobilat si utilat exact ca in fotografii.Pret 115.000 euro / negociabil. Broker imobiliar Gabriel
Citește mai mult Citește mai puțin
Confort lux Decomandat Mobilat Mobilat Lux 1 Balcon / Terasă / Logie Piscină Aer condiționat Calorifere Centrală proprie 1 Parcare Renovat Bine întreținut (Bună)

Detalii apartament

ID anunț: XEFJ00012 Copiat! 242649033 Copiat!
Actualizat în: 26 Septembrie 2025
Suprafață utilă totală: 50 mp
Suprafață construită: 60 mp
Nr. bucătării: 1
Nr. băi: 1
Structură rezistență: Beton
Tip imobil: Bloc de apartamente
Regim înălțime: S+P+7E

Utilități

Destinație
Rezidențial Comercial De vacanță
Pereți
Faianță Vopsea lavabilă
Podele
Gresie Parchet
Ușă intrare
Metal
Uși interior
Celulare
Izolații termice
Exterior
Ferestre cu geam termopan
PVC
Contorizare
Contor gaz Apometre
Bucătărie
Mobilată Utilată
Electrocasnice
Fier de călcat Uscător păr Mașină de spălat Frigider Aragaz Hotă TV
Facilități imobil
Lift Interfon
Utilități
Curent Apă Canalizare CATV
Internet
Fibră optică
Amenajare străzi
Asfaltate Iluminat stradal
Comision
2%

Vecinătăți:

Lidl

Puncte de interes

Școală
school
Scoala Gimnaziala Tudor Arghezi
Școli aprox. 1691 m
school
Scoala Nr. 3
Școli aprox. 1692 m
school
Gr. sc. Lazar Edeleanu
Școli aprox. 1827 m
school
Scoala nr1, Navodari
Școli aprox. 1969 m
Recreere
restaurant
Restaurant Leon Beach
Restaurant aprox. 389 m
sports-ground
Teren sportiv
Terenuri sport aprox. 524 m
supermarket
Max supermarket
Supermarket aprox. 718 m
park
Parcul Ion Dobre
Parcuri aprox. 1334 m

Detalii despre preț și costuri

Prețul pe piață

Preț cerut: 115.000 €

Preț min. zonă 67.500 €
Preț max. zonă 180.000 €

64% dintre proprietățile similare ca zonă și nr. camere au prețul cerut mai mic. mai multe...

Bine de știut: prețul unei proprietăți este influențat și de alte caracteristici, cum ar fi: vechime, localizare, vecinătăți, suprafață, compartimentare, amenajări, dotări, etc. mai puțin...

Costuri cu achiziția

Fără credit
18.531 RON
Credit ipotecar
20.132 RON
Noua casă
726 RON+ taxe notariale

i

Costuri adiționale mai puțin știute la achiziție: taxe notariale, comisioane etc.

Proprietăți recomandate

Detalii de contact

REAL INVESTMENT

Gabriel Ungureanu

4.29(6 review-uri)

REAL INVESTMENT

Abonează-te la newsletter să fii primul care primește cele mai noi recomandări de proprietăți și sfaturi de la experți.

CONTACT

Creează alertă

Salvează căutarea ca să primești pe email ultimele anunțuri publicate

Apartamente noi cu 2 camere de vânzare în Mamaia-Sat, Județul Constanța