Apartament 3 camere decomandat spatios Medgidia, zona VS-uri

73.000 €

Medgidia, Județul Constanța

Nr. cam.:
3
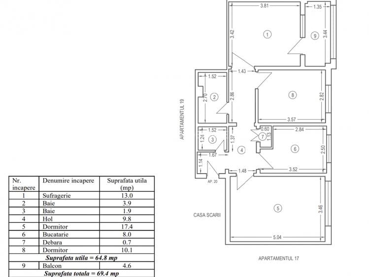
Sup. utilă:
69,6 mp
Etaj:
4 / 4
An constr.:
1980 (Finalizată)
  • • Locație aproximativă

Descriere apartament

Apartament, într-o zonă liniștită din Medgidia Locuința este amplasată la etajul 4 din 4 al unui bloc solid, oferind lumină naturală pe tot parcursul zilei și o priveliște deschisă asupra cartierului. Dispune de o compartimentare decomandată, gândită pentru confort și intimitate: living spațios, două dormitoare balcon 2 bai și 1 bucătărie separata Apartamentul necesită renovare, oferind noului proprietar libertatea de a-l amenaja exact după propriul gust și stil. Avantaje zonă: Acces rapid către centre comerciale, magazine locale, școli și stații de autobuz. Zonă liniștită, cu spații verzi între blocuri Ideal pentru familie, cuplu tânăr sau investiție pe termen lung. Un apartament cu potențial excelent, la un preț corect, într-un oraș cu istorie
Citește mai mult Citește mai puțin
Confort 1 Decomandat 1 Balcon / Terasă / Logie Centrală proprie Necesită renovare

Detalii apartament

ID anunț: XELP100EF Copiat! 273306335 Copiat!
Actualizat în: 20 Martie 2026
Nr. bucătării: 1
Nr. băi: 2
Tip imobil: Bloc de apartamente
Regim înălțime: P+4E

Utilități

Destinație
Rezidențial
Pereți
Vopsea lavabilă Faianță
Podele
Parchet Gresie
Izolații termice
Exterior
Utilități
Curent Apă Canalizare Gaze

Puncte de interes

Recreere
sports-ground
Teren sportiv
Terenuri sport aprox. 296 m
park
Parcul Posta
Parcuri aprox. 892 m
park
Parcul Central
Parcuri aprox. 938 m
sports-ground
Stadionul I.M.U.M.
Terenuri sport aprox. 1558 m

Detalii despre preț și costuri

Prețul pe piață

Preț cerut: 73.000 €

Preț min. zonă 49.900 €
Preț max. zonă 87.000 €

55% dintre proprietățile similare ca zonă și nr. camere au prețul cerut mai mare. mai multe...

Bine de știut: prețul unei proprietăți este influențat și de alte caracteristici, cum ar fi: vechime, localizare, vecinătăți, suprafață, compartimentare, amenajări, dotări, etc. mai puțin...

Costuri cu achiziția

Fără credit
4.839 RON
Credit ipotecar
6.170 RON
Noua casă
512 RON+ taxe notariale

i

Costuri adiționale mai puțin știute la achiziție: taxe notariale, comisioane etc.

Proprietăți recomandate

Detalii de contact

EVOLUT IMOBILIARE

Sibel Cherim Administrator

EVOLUT IMOBILIARE
PRO

Abonează-te la newsletter să fii primul care primește cele mai noi recomandări de proprietăți și sfaturi de la experți.

CONTACT

Creează alertă

Salvează căutarea ca să primești pe email ultimele anunțuri publicate

Apartamente cu 3 camere de vânzare în Medgidia, Județul Constanța